Mieszkanie na sprzedaż
















Szczegóły ogłoszenia
- Symbol oferty LFT-MS-8247
- Typ oferty mieszkanie na sprzedaż
- Cena 1 365 000 zł
- Charakterystyka mieszkania 73 m2, 4 pokoje
- Budynek kamienica; rok budowy: 1928
- Rozkład mieszkania 3p piętro
- Media Ogrzewanie: gazowe; Woda: ciepła - miejska; Gaz: jest
- Balkon jest
- Czynsz Czynsz letni: 400 zł
- Dojazd asfalt
- Ilość sypialni 2
- Instalacje wymienione
- Okna PCV
- Otoczenie osiedle
- Stan lokalu po generalnym remoncie
- Technologia budowlana cegła
Lokalizacja
- Adres mazowieckie, Warszawa, Ochota
Opis nieruchomości
Bliskość centrum, cisza i zieleń za oknami w połączeniu z funkcjonalnym rozkładem i wyremontowanym wnętrzem czekają na Ciebie!
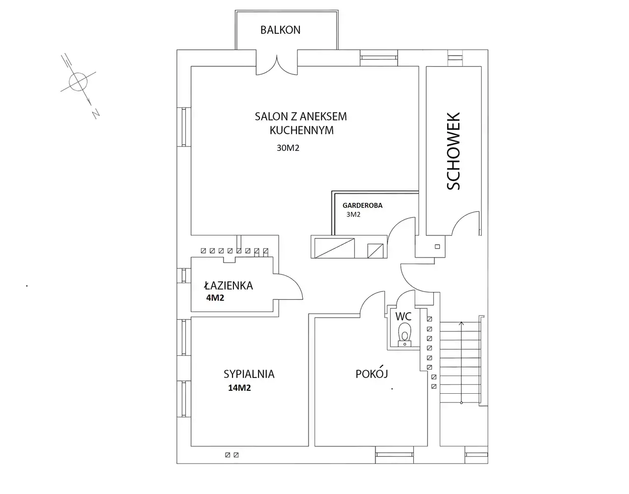
Stara Ochota • ul. Chotomowska • 73 m²
3 pokoje + garderoba + oddzielne WC • balkon • po pełnej metamorfozie
+ realna możliwość wydzielenia 4. pokóju
1. Lokalizacja
Ul. Chotomowska 3,0 km do Centrum. Tuż obok- teatr OCH TEATR, Szkoły Podstawowe, uniwersytety, przedszkola, apteki, sklepy spożywcze. Bardzo małą odległość do Centrum Handlowe Złote Tarasy, nieopodal bazarek na Banacha. 2,2 km do parku Szczęśliwice, Tramwaje: 35, 15, 1, 9, 7, 25 Autobusy: 517, 521, 154, 157
2. Opis mieszkania
Mieszkanie o powierzchni 73 m² składa się z salonu połączonego z kuchnią, 2 przestronnych pokoi, łazienki z oknem, WC i garderoby. Istnieje możliwość wydzielenia 4 pokoju. Wnętrze przeszło gruntowny remont, a każdy szczegół został starannie dopracowany, aby zapewnić przestrzeń pełną światła i elegancji, łącząc komfort z funkcjonalnością. Mieszkanie nie ma żadnego sąsiada za ścianą ani nad sobą!
3. Wykończenie
Przestronny salon połączony z kuchnią tworzy nowoczesną, otwartą strefę dzienną sprzyjającą wspólnemu spędzaniu czasu. Taki układ zapewnia doskonałą komunikację między domownikami, więcej naturalnego światła i poczucie większej przestrzeni. Z salonu wyjście na balkon , z którego rozpościera się kojący widok na zielony, zadbany dziedziniec — idealne miejsce na poranną kawę lub chwilę relaksu o każdej porze dnia.
Główna sypialnia
Przestronna ( ok15m2) ,elegancko zaaranżowana sypialnia zachwyca spokojną, harmonijną kolorystyką oraz dużą ilością naturalnego światła, które wpada przez szerokie okna. W pomieszczeniu wykonano na wymiar praktyczne zabudowy — pojemne szafy i górne półki — które zapewniają doskonałą organizację przestrzeni i pozwalają utrzymać idealny porządek.
Przestronny, jasny pokój o powierzchni 12m² stanowi idealną przestrzeń do aranżacji według własnych potrzeb. Duże okno zapewnia doskonałe doświetlenie naturalnym światłem przez cały dzień, tworząc przyjemną i ciepłą atmosferę. Neutralna kolorystyka ścian i wykończeń daje szerokie możliwości urządzenia pomieszczenia — może stać się wygodną sypialnią, pokojem dla dziecka, gabinetem do pracy lub przytulną strefą relaksu.
Łazienka:Stylowa i funkcjonalnie zaprojektowana łazienka zachwyca nowoczesnym wykończeniem oraz dbałością o każdy detal. Wyposażona w wygodną wannę z przeszkleniem prysznicowym, łączy komfort kąpieli z praktycznością codziennego użytkowania. Jasne, duże płytki o marmurowym wzorze optycznie powiększają przestrzeń, nadając jej luksusowego charakteru.
Przestronna, oddzielna garderoba to ogromny atut mieszkania — pozwala wygodnie przechowywać odzież, obuwie i dodatki w jednym miejscu, dzięki czemu w pozostałych pomieszczeniach panuje porządek i harmonia.
*4 pokój - Z części dziennej istnieje możliwość wydzielenia dodatkowego pokoju z oknem, który sprawdził się jako gabinet, pokój dziecka lub trzecia sypialnia.
4. Budynek
Mieszkanie znajduje się w kamienicy z 1928 roku z świeżo odnowioną klatce schodowej. Zabytkowy budynek oferuje urok przedwojennego budownictwa z nowoczesnymi udogodnieniami. W okolicy dużo miejsc parkingowych tylko dla mieszkańców.
5. Dodatkowe informacje
Czynsz wynosi 400zł.
Dostęp do schowka przy wejściu do mieszkania dodatkowa stanowi praktyczną, dodatkową przestrzeń.
Istnieje możliwość pozostawienia całego wyposażenia i mebli widocznych na zdjęciach.
Czy chciałbyś dowiedzieć się czegoś jeszcze lub masz jakieś pytania dotyczące mieszkania?