Mieszkanie na sprzedaż
1 379 000 zł
74 m2
















1 / 16
Szczegóły ogłoszenia
- Symbol oferty BRZ-MS-163913
- Typ oferty mieszkanie na sprzedaż
- Cena 1 379 000 zł
- Charakterystyka mieszkania 74 m2, 4 pokoje
- Budynek apartamentowiec; rok budowy: 2013
- Rozkład mieszkania parter piętro
- Media Ogrzewanie: centralne
- Stan lokalu do odświeżenia
- Technologia budowlana mieszana
- Winda Tak
Lokalizacja
- Adres mazowieckie, Warszawa, Wilanów
Opis nieruchomości
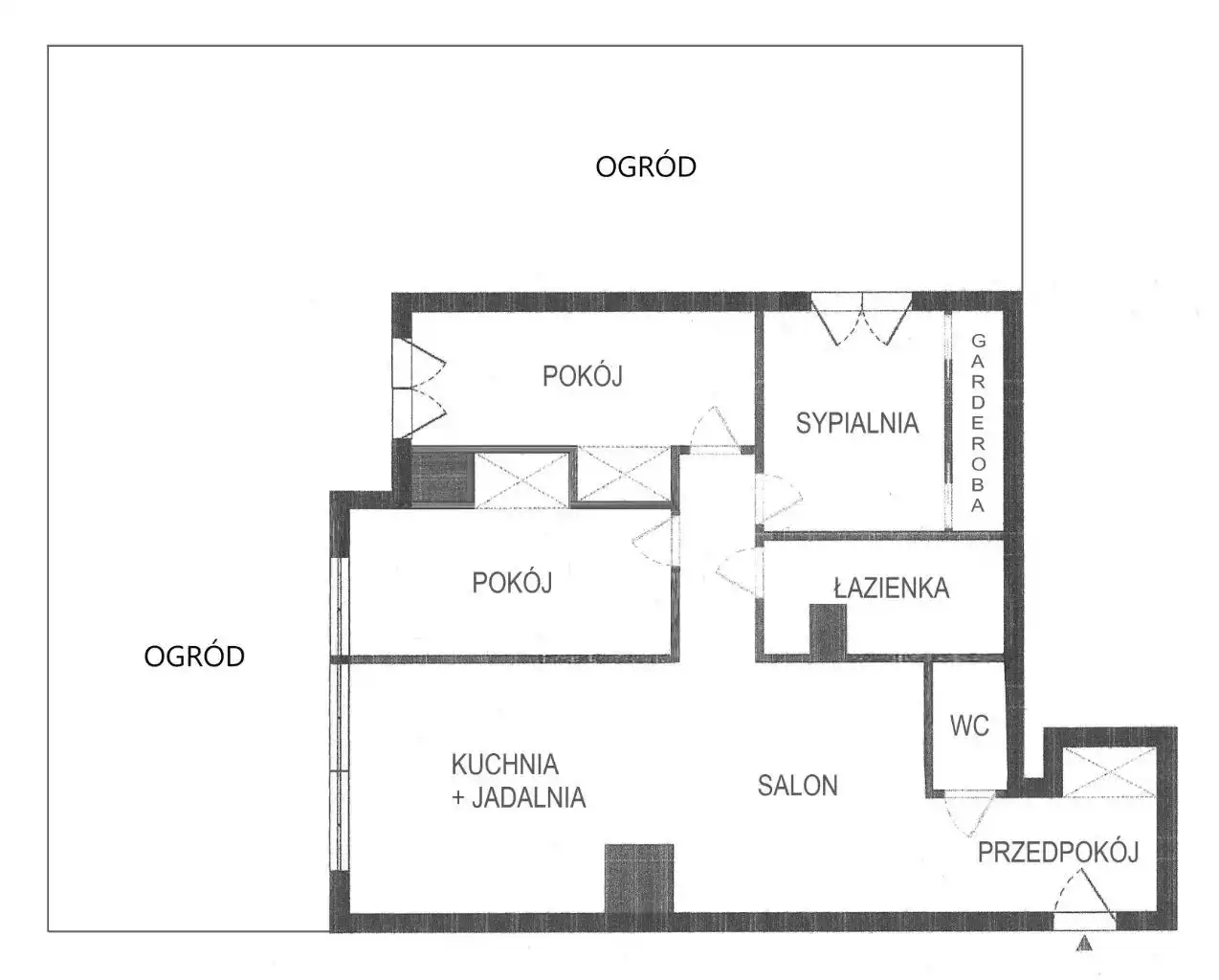
Mieszkanie o powierzchni 74 m2, 4-pokojowe, położone na parterze w 2-piętrowym budynku z 2013 r., zlokalizowanym w Wilanowie (Zawady) przy ul. Jara.
ROZKŁAD: salon połączony z kuchnią i z jadalnią (28,22 m2), z salonu wyjście do ogrodu (130 m2), trzy sypialnie (9 m2, 8,4 m2, 8,26 m2), z dwóch sypialni wyjście do wspólnego ogrodu, garderoba (2,87 m2), hol i komunika (5,22 m2).
Dwa duże miejsca parkingowe w garażu podziemnym (blisko windy) - płatne dodatkowo 80 000 zł.
Na tyłach miejsc parkingowych zabudowa tworząca dodatkowe pomieszczenie do przechowywania rowerów, opon itp. ok. 5 m2 + komórka lokatorska 3 m2 - łącznie 8 m2 dodatkowo - płatne dodatkowo 20 000 zł.
Pięknie zaprojektowany ogródek - znajduje się na nim kilkanaście dobrze utrzymanych gatunków drzew i krzewów. Wzdłuż ogrodzenia rośnie szpaler 3-metrowych zimozielonych tuj, które zapewniają prywatność i estetykę przez cały rok.
W ogródku dwa osobne tarasy, na których można ustawić meble ogrodowe oraz system nawadniania.
Całe osiedle (dwa budynki) jest ogrodzone. Na wewnętrznym patio ławeczki i pięknie zaprojektowaną zieleń.
Pod całym osiedlem parking podziemny oraz komórki lokatorskie.
ROZKŁAD: salon połączony z kuchnią i z jadalnią (28,22 m2), z salonu wyjście do ogrodu (130 m2), trzy sypialnie (9 m2, 8,4 m2, 8,26 m2), z dwóch sypialni wyjście do wspólnego ogrodu, garderoba (2,87 m2), hol i komunika (5,22 m2).
Dwa duże miejsca parkingowe w garażu podziemnym (blisko windy) - płatne dodatkowo 80 000 zł.
Na tyłach miejsc parkingowych zabudowa tworząca dodatkowe pomieszczenie do przechowywania rowerów, opon itp. ok. 5 m2 + komórka lokatorska 3 m2 - łącznie 8 m2 dodatkowo - płatne dodatkowo 20 000 zł.
Pięknie zaprojektowany ogródek - znajduje się na nim kilkanaście dobrze utrzymanych gatunków drzew i krzewów. Wzdłuż ogrodzenia rośnie szpaler 3-metrowych zimozielonych tuj, które zapewniają prywatność i estetykę przez cały rok.
W ogródku dwa osobne tarasy, na których można ustawić meble ogrodowe oraz system nawadniania.
Całe osiedle (dwa budynki) jest ogrodzone. Na wewnętrznym patio ławeczki i pięknie zaprojektowaną zieleń.
Pod całym osiedlem parking podziemny oraz komórki lokatorskie.
Infrastruktura
- przystanek autobusowy 250 m,
- sklepy typu convenience store (Żabka, Carrefour) 300 m,
- poczta/Apteka/Drogeria 600 m.
- dyskonty (Biedronka, Lidl, Carrefour) 600 m,
Przedszkole/Żłobek 250 m.
Sport/Rekreacja
- piękne, dzikie szlaki piesze nad samą Wisłą 300,m,
- ścieżka rowerowa na Wale Zawadowskim 150 m,
- plaża Wilanów 500 m,
- rezerwat Przyrody Morysin 500 m.
Nota prawna
Opis oferty zawarty na stronie internetowej sporządzany jest na podstawie oględzin nieruchomości oraz informacji uzyskanych od właściciela, może podlegać aktualizacji i nie stanowi oferty określonej w art. 66 i następnych K.C.
Kalkulator kredytowy
Formularz kontaktowy