Mieszkanie na sprzedaż




















Szczegóły ogłoszenia
- Symbol oferty WLI-MS-1303
- Typ oferty mieszkanie na sprzedaż
- Cena 1 440 000 zł
- Charakterystyka mieszkania 62.8 m2, 3 pokoje
- Budynek budynek wielorodzinny; rok budowy: 2014
- Rozkład mieszkania 3p piętro
- Media Ogrzewanie: miejskie; Woda: ciepła - miejska; Gaz: brak
- Balkon duży
- Czynsz Czynsz letni: 1100 zł
- Dojazd asfalt
- Garaż miejsce postojowe
- Ilość sypialni 2
- Instalacje ELEKTRYCZNA
- Okna PCV
- Otoczenie osiedle
- Stan lokalu bardzo dobry
- Technologia budowlana cegła
- Umeblowanie umeblowane
- Winda Tak
Lokalizacja
- Adres mazowieckie, Warszawa, Wola
Opis nieruchomości
Na sprzedaż 3-pokojowe mieszkanie w inwestycji Carré Arte przy ul. Symbolicznej - nowoczesność i komfort w sercu Woli.
Mam przyjemność zaprezentować Państwu ustawne i eleganckie 3-pokojowe mieszkanie o powierzchni 62,80 m², położone na 3. piętrze w apartamentowcu Carré Arte przy ul. Symbolicznej (wewnętrzna droga odchodząca od ul.Jana Kazimierza) na warszawskiej Woli.
Budynek z 2014 roku, zrealizowany przez renomowanego dewelopera Bouygues Immobilier Polska, wyróżnia się ponadczasową architekturą, wysoką jakością wykonania oraz zadbanym, zielonym patio. Osiedle jest monitorowane i strzeżone, a jego kameralny charakter zapewnia spokój i bezpieczeństwo mieszkańców.
Mieszkanie jest bardzo dobrze utrzymane, przytulne i sprzedawane z pełnym wyposażeniem. Wykończone materiałami wysokiej jakości, z meblami wykonanymi na wymiar przez stolarza - gotowe do wprowadzenia bez dodatkowych nakładów.
Najważniejsze atuty nieruchomości:
-
funkcjonalny układ pomieszczeń z podziałem na strefę dzienną i prywatną,
-
salon z bio-kominkiem, drewnianą podłogą i ścianą wygłuszoną od strony sąsiadów - mieszkanie jest bardzo ciche,
-
kuchnia w pełni wyposażona w sprzęt AGD: zmywarkę, lodówkę, piekarnik i płytę grzewczą,
-
sypialnia z dużym łóżkiem i szafą w zabudowie oraz dodatkowy pokój z szafą i kanapą - świetnie sprawdzi się jako gabinet lub pokój dziecięcy,
-
łazienka z wanną i WC oraz dodatkowe osobne WC,
-
dwie pojemne szafy w zabudowie w przedpokoju,
-
balkon niedzielony z innymi mieszkańcami, zapewniający prywatność.
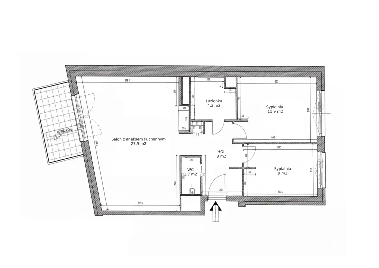
Rozkład pomieszczeń:
-
Salon z aneksem kuchennym - 27,9 m²
-
Sypialnia 1 - 11,9 m²
-
Sypialnia 2 - 9,0 m²
-
Łazienka - 4,3 m²
-
WC - 1,7 m²
-
Hol - 8,0 m²
-
Balkon - 5,8 m2
Budynek i osiedle:
Carré Arte to nowoczesny kompleks z ochroną, monitoringiem i wideodomofonami. Do dyspozycji mieszkańców są dwa niezależne wjazdy do garażu podziemnego, pełnoprawne miejsca postojowe oraz miejsca parkingowe dla gości przed budynkiem. Kameralny charakter inwestycji oraz zadbane patio sprawiają, że to doskonałe miejsce do życia.
Lokalizacja:
Ulica Jana Kazimierza to jedno z najdynamiczniej rozwijających się miejsc na warszawskiej Woli. W bezpośrednim sąsiedztwie znajdują się liczne sklepy, restauracje, kawiarnie i punkty usługowe, a także szkoła podstawowa, przedszkola i żłobki.
Okolica sprzyja rekreacji, w pobliżu znajdują się parki: Powstańców Warszawy, Sowińskiego, Szymańskiego i Moczydło. Doskonałą komunikację z centrum zapewniają linie tramwajowe i autobusowe - podróż do Śródmieścia zajmuje około 15 minut.
Informacje dodatkowe:
-
komórka lokatorska: 2,4 m² - dodatkowo płatna 30 000 zł,
-
miejsce postojowe w garażu podziemnym - 60 000 zł (zakup obligatoryjny), istnieje możliwość nabycia drugiego miejsca,
-
czynsz administracyjny: ok. 1 100 zł (w tym zaliczki na media, opłata za dwa miejsca postojowe, fundusz remontowy, utrzymanie części wspólnych, ochronę),
-
stan prawny: odrębna własność - możliwość finansowania zakupu kredytem.
Przytulne, zadbane i ciche mieszkanie będzie doskonałym wyborem zarówno dla rodziny, jak i pary, a także jako inwestycja o dużym potencjale.
Serdecznie zapraszam do kontaktu i na prezentację.
Dominika Onderska
Senior Premium Property Advisor
Real Estate License Number 28584
onderska@wli.pl
Niniejsze ogłoszenie jest wyłącznie informacją i nie stanowi oferty w rozumieniu art. 66 § 1 Kodeksu Cywilnego. Dokładamy wszelkich starań, aby informacje przedstawione w naszych ofertach były aktualne i rzetelne. Informacje zawarte w ofercie uzyskano na podstawie oświadczeń sprzedających. Załączony plan nieruchomości jest poglądowy.
Agencja WHITE LION INVESTMENTS jest objęta obowiązkiem ubezpieczenia odpowiedzialności cywilnej zawodowej. Posiadamy OC zgodne z Rozporządzeniem Ministra Finansów z dn. 26.04.2019 r. w sprawie obowiązkowego ubezpieczenia odpowiedzialności cywilnej pośrednika w obrocie nieruchomościami (Dz. U. z 2019 r., poz. 804).
Pobieramy wynagrodzenie w formie prowizji za wykonaną usługę pośrednictwa.
Bierzemy odpowiedzialność za bezpieczeństwo przeprowadzanych przez nas transakcji.