Mieszkanie na sprzedaż
1 690 000 zł
106 m2






























1 / 30
Szczegóły ogłoszenia
- Symbol oferty KOS-MS-54776
- Typ oferty mieszkanie na sprzedaż
- Cena 1 690 000 zł
- Charakterystyka mieszkania 106 m2, 3 pokoje
- Budynek apartamentowiec; rok budowy: 2005
- Rozkład mieszkania 4p piętro
- Media Ogrzewanie: miejskie; Woda: ciepła - miejska
- Czynsz Czynsz letni: 1500 zł
- Dojazd asfalt
- Garaż garaż pod budynkiem
- Ilość sypialni 2
- Instalacje nowe
- Okna nowe
- Otoczenie budynki wielorodzinne
- Plac zabaw Tak
- Stan lokalu inny
- Technologia budowlana cegła nowa
- Winda Tak
Lokalizacja
- Adres mazowieckie, Warszawa, Śródmieście
Opis nieruchomości
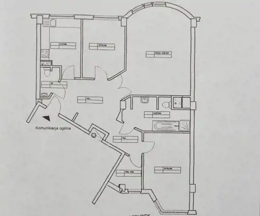
Do sprzedaży mieszkanie 3 pokojowe o pow. 105,20 m 2 z możliwością przerobienia na 4 pokoje.
- salon 27 m 2,
- sypialnia 16,5 m 2,
- sypialnia 13 m 2,
- garderoba 5 m 2,
- łazienka 10 m 2,
- WC 2.5 m 2,
- korytarz 4,5 m 2,
- holl 15 m 2,
- kuchnia 11,7 m2.
Kuchnia wyposażona, łazienka z jaccuzi i kabiną prysznicową, 2 umywalki, dodatkowo umywalka z WC w osobnym pomieszczeniu, garderoba w części sypialnej, szafy wnękowe.
Miejsce postojowe w garażu podziemnym dodatkowo płatne 90000 zł.
.
Mieszkanie usytuowane w doskonałej lokalizacji przy ul. Łuckiej w nowoczesnym budynku, 5 minut pieszo do stacji metra Rondo Daszyńskiego i biurowca Spire.
W okolicy zagłębie nowoczesnych biurowców, centra biznesowo - handlowe i rozrywkowe Fabryka Norblina, Browary Warszawskie
Nota prawna
Opis oferty zawarty na stronie internetowej sporządzany jest na podstawie oględzin nieruchomości oraz informacji uzyskanych od właściciela, może podlegać aktualizacji i nie stanowi oferty określonej w art. 66 i następnych K.C.
Kalkulator kredytowy
Formularz kontaktowy