Mieszkanie na sprzedaż
1 775 000 zł
95 m2






1 / 6
Szczegóły ogłoszenia
- Symbol oferty WS2-MS-44989
- Typ oferty mieszkanie na sprzedaż
- Cena 1 775 000 zł
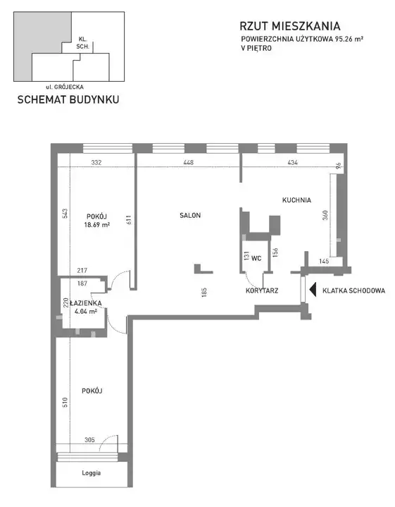
- Charakterystyka mieszkania 95 m2, 3 pokoje
- Budynek kamienica; rok budowy: 1934
- Rozkład mieszkania 5p piętro
- Media Ogrzewanie: centralne; Woda: ciepła - miejska; Gaz: jest
- Balkon średni
- Czynsz Czynsz letni: 1200 zł
- Dojazd asfalt
- Garaż brak
- Instalacje wymienione
- Okna PCV
- Otoczenie centrum miasta
- Stan lokalu bardzo dobry
- Technologia budowlana cegła stara
- Winda Tak
Lokalizacja
- Adres mazowieckie, Warszawa, Ochota
Opis nieruchomości
| Polecam do sprzedaży piękne mieszkanie o powierzchni 95 metrów kwadratowych położone na pograniczu Starej Ochoty i Śródmieścia (w sąsiedztwie Filtry) przy ul Grójeckiej. Bardzo blisko do Pl. Narutowicza, parku. Duże, przestronne, wysokie (3 m), wygodne mieszkanie w przedwojennej kamienicy z 1934 roku. Mieszkanie usytuowane na 5 piętrze w budynku 5 piętrowym z windą. Bezpośrednio nad lokalem znajduje się strych do użytku wszystkich mieszkańców. Mieszkanie zaskakująco ciche jak na centrum miasta. Dwa pokoje i kuchnia od cichej strony ( patio) jeden pokój od ul. Grójeckiej. Mieszkanie dwustronne. Pokoje rozkładowe, kuchnia z jadalnią oddzielna widna z oknem, łazienka , wc oddzielnie, przestronny hol. Okna wychodzą na północ i południe. Mieszkanie po kapitalnym remoncie ,wymieniona została instalacja elektryczna, hydrauliczna,nowe podłogi, glazury, terakoty. Mieszkanie przeszło kapitalny remont w 2023 roku.W ramach ceny pozostaje stała zabudowa w mieszkaniu oraz zabudowa kuchenna wraz ze sprzętem AGD. Stan techniczny budynku b. dobry, remont klatki schodowej zaplanowany przez wspólnotę . W pobliżu dużo sklepów, lokali usługowych, restauracji, kawiarni, terenów zielonych, Urząd gminy. Pod budynkiem przystanki autobusowe, tramwajowe. Zapraszam na prezentację w dogodnym terminie. |
Nota prawna
Opis oferty zawarty na stronie internetowej sporządzany jest na podstawie oględzin nieruchomości oraz informacji uzyskanych od właściciela, może podlegać aktualizacji i nie stanowi oferty określonej w art. 66 i następnych K.C.
Kalkulator kredytowy
Formularz kontaktowy