Mieszkanie na sprzedaż





















Szczegóły ogłoszenia
- Symbol oferty KNG-MS-7587
- Typ oferty mieszkanie na sprzedaż
- Cena 1 790 000 zł
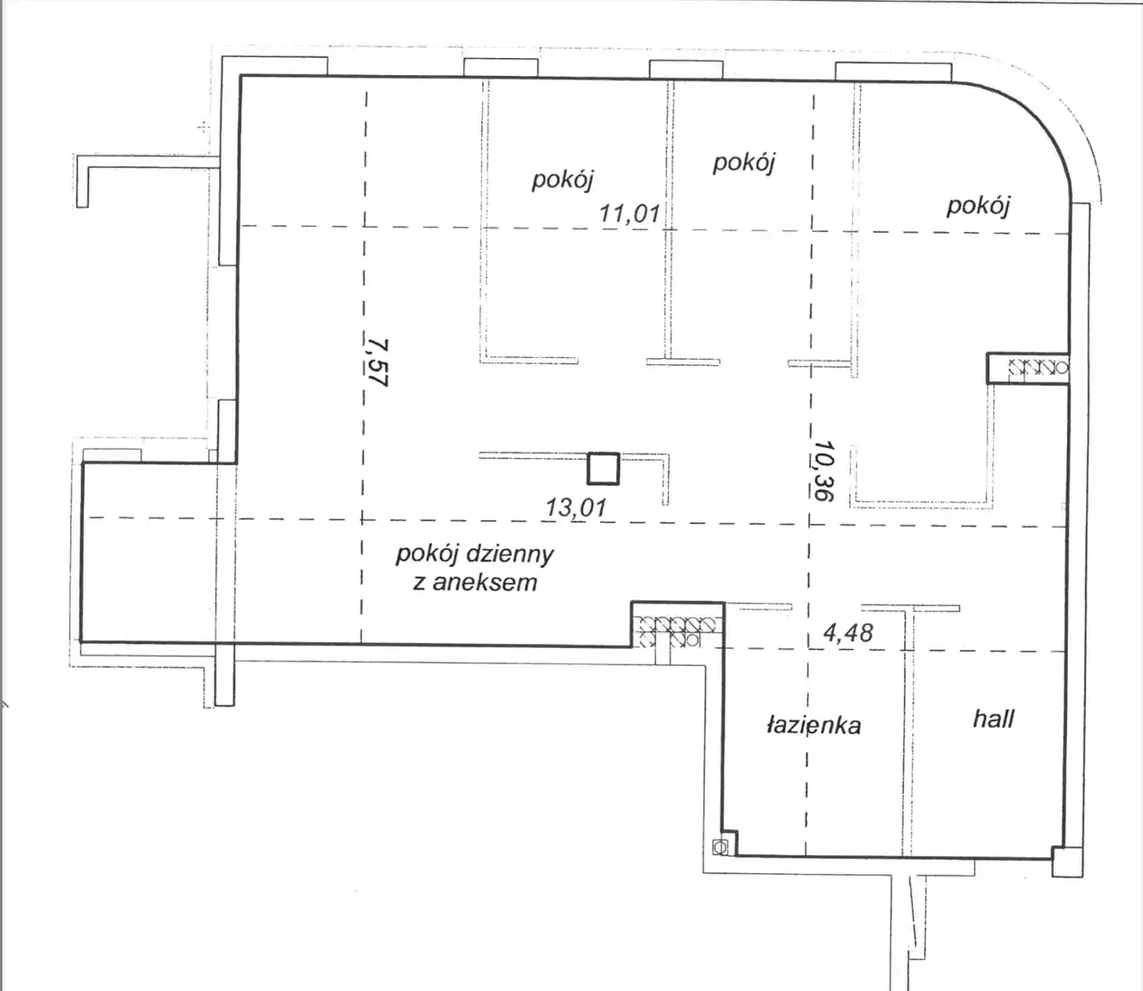
- Charakterystyka mieszkania 98.68 m2, 4 pokoje
- Budynek blok; rok budowy: 2015
- Rozkład mieszkania 1p piętro
- Media Ogrzewanie: miejskie; Woda: ciepła - miejska
- Balkon jest
- Czynsz Czynsz letni: 1200 zł
- Garaż garaż podziemny
- Okna PCV
- Stan lokalu do wprowadzenia
- Technologia budowlana beton, cegła
- Winda Tak
Lokalizacja
- Adres mazowieckie, Warszawa, Praga-Południe
Opis nieruchomości
Głównymi atutami nieruchomości są: bardzo wysoki, luksusowy standard wykończenia, duża, jasna strefa dzienna z otwartą kuchnią, bogate oświetlenie ledowe, klimatyzacja, przestronna łazienka z wanną i prysznicem, dodatkowe wc, garderoba przy wejściu, komórka lokatorska obok mieszkania oraz przestronne miejsce postojowe w garażu podziemnym; dodatkowo rozbudowana infrastruktura, bliskość sklepów, centrów handlowych, przystanków autobusowych i tramwajowych oraz stacji kolejowej.
Mieszkanie
Na 98,68 m² znajdują się:
- przestronny salon z częścią wypoczynkową i jadalnianą (duży stół przystosowany dla 6 osób),
- otwarta, w pełni wyposażona kuchnia (szafki z cichym domykiem i dożywotnią gwarancją), ledowe oświetlenie boczne, górne i spodnie,
- sypialnia z łóżkiem typu king-size 160x200cm oraz narożną szafą garderobianą,
- dwa dodatkowe pokoje (idealne jako pokoje dziecięce i/lub gabinet),
- łazienka z wanną oraz kabiną prysznicową,
- przedpokój z dużą zabudową garderobianą,
- oddzielne wc,
- orbitrek,
- biokominek,
- duży balkon ze szklaną balutradą.
Strefa dzienna jest doskonale doświetlona dzięki dużym przeszkleniom. W salonie znajduje się m.in. wygodna, rozkładana sofa ze schowkiem, biokominek, telewizor oraz kino domowe. Pomieszczenie posiada osobno doświetlane strefy, w tym led w suficie podwieszanym. Kuchnia została wyposażona w sprzęt AGD, w tym dużą zmywarkę, piekarnik, elektryczną płytę grzewczą, lodówkę oraz liczne szafki zapewniające komfort przechowywania. Dostępny ekspres do kawy, czajnik elektryczny, garnki i liczne przybory kuchenne. Szafki oraz blaty oświetlane ledami (bocznymi, spodnimi) z osobnym sterowaniem. W dwóch dodatkowych pokojach zapewniono kolejne telewizory, w sypialni wieżę audio. Pomieszczenia obu wc posiadają drzwi z systemem bezprzylgowym.
W mieszkaniu znajduje się m.in. nowa klimatyzacja z możliwością zdalnego sterowania (zainstalowana w 2025 r.), pralka, środki czyszczące oraz pełne umeblowanie. Lokal gotowy do wprowadzenia się od zaraz.
Budynek
Mieszkanie położone jest na 1. piętrze kameralnego (3-piętrowego) budynku z windą; obiekt ogrodzony, monitorowany, domofon.
Do dyspozycji właściciela jest duża komórka lokatorska (ok. 4m2) na tym samym piętrze oraz jedno, powiększone, narożne miejsce postojowe w garażu podziemnym dodatkowo płatne 70.000,00 PLN
Budynek usytuowany w odległości 4 minut od przystanków licznych linii przyspieszonych do Centrum oraz 7 minut od stacji PKP Gocławek; w pobliżu żłobek, przedszkola (w tym vis a vis Przedszkole Państwowe nr 46), szkoły, przychodnie, apteki, restauracje, CH King Cross Praga i CH Promenada oraz liczne sklepy.
Stan Prawny i Opłaty
Stan Prawny: Pełna własność (można posiłkować się kredytem przy zakupie)
Opłaty administracyjne: ok 1 200 zł miesięcznie
Dostępność: od zaraz
Jako profesjonalne biuro nieruchomości pobieramy wynagrodzenie prowizyjne za wykonanie usługi pośrednictwa.
Zapraszam do kontaktu i na prezentację