Mieszkanie na sprzedaż


























Szczegóły ogłoszenia
- Symbol oferty WLI-MS-1311
- Typ oferty mieszkanie na sprzedaż
- Cena 2 049 000 zł
- Charakterystyka mieszkania 116.97 m2, 5 pokoi
- Budynek budynek wielorodzinny; rok budowy: 1954
- Rozkład mieszkania 2p piętro
- Media Ogrzewanie: C.O. miejskie; Woda: ciepła - miejska
- Balkon jest
- Czynsz Czynsz letni: 2170 zł
- Dojazd asfalt
- Ilość sypialni 4
- Instalacje dobre
- Okna PCV
- Otoczenie bloki
- Stan lokalu do odświeżenia
- Technologia budowlana cegła
- Umeblowanie częściowo umeblowane
Lokalizacja
- Adres mazowieckie, Warszawa, Mokotów
Opis nieruchomości
Jedyne takie, wyjątkowe, przestronne i wysokie 5-pokojowe mieszkanie 129 m² (wysokość do 4,5 m) z antresolami w sercu Mokotowa.
Z ogromną przyjemnością prezentuję Państwu niezwykłą nieruchomość przy ul. Obrzeżnej 10. To dwupoziomowy apartament o łącznej, imponującej powierzchni ponad 129 m² (116,97 m² + dwie antresole 12 m²), stworzony dla osób poszukujących unikatowego stylu i ponadprzeciętnej przestrzeni z jednoczesnym dostępem do wszystkich udogodnień miasta.
NAJWAŻNIEJSZE ATYTUTY
- Niespotykana wysokość - sufity sięgające miejscami aż 4,5 metra, nadające wnętrzu loftowy i klimatyczny styl (dzięki belkom i ponadprzeciętnej wysokości).
- 5 pokoi – idealny układ dla rodziny lub osób ceniących sobie dużą przestrzeń.
- Funkcjonalny, dwupoziomowy układ z dużymi możliwościami aranżacyjnymi.
- Dwie antresole o łącznej powierzchni ponad 12 m².
- Doskonale doświetlone, jasne dwustronne wnętrza (ekspozycja wschód–zachód).
- Liczne pomieszczenia do przechowywania (niewliczone w metraż).
- Kameralny, zadbany budynek w znakomitej lokalizacji.
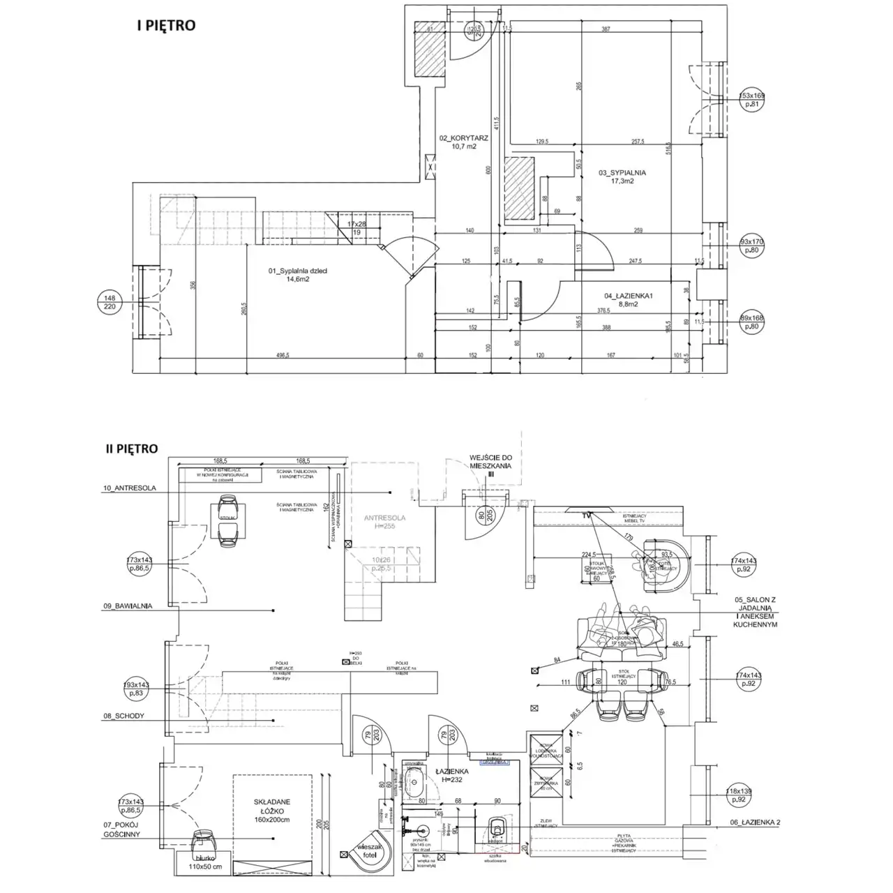
UKŁAD POMIESZCZEŃ
Poziom I (2. piętro):
- Sypialnia główna – ok. 17 m².
- Druga sypialnia z balkonem – 14,6 m² + balkon 2 m².
- Duża łazienka z oknem i prysznicem – ok. 9 m².
- Hol z zabudowanymi szafami – 10,7 m².
Poziom II (3. piętro):
- Przestronny salon z aneksem kuchennym i antresolą – ok. 37 m² (możliwość wydzielenia dodatkowej sypialni lub gabinetu).
- Sypialnia z antresolą – 11,7 m².
- Łazienka z prysznicem – 4,4 m².
LOKALIZACJA I KOMUNIKACJA
Mieszkanie znajduje się w jednej z najlepiej skomunikowanych części Mokotowa.
Dostęp do terenów zielonych oraz przestrzeni rekreacyjnych podnoszą komfort codziennego życia.
- W pobliżu liczne przystanki autobusowe i tramwajowe oraz szybki dostęp do metra (Wilanowska, Służew) zapewniają wygodne połączenie z centrum oraz innymi dzielnicami Warszawy.
- W sąsiedztwie znajdują się sklepy, restauracje, kawiarnie, punkty usługowe, szkoły i przedszkola.
- Bliskość Galerii Mokotów oraz biznesowego centrum („Mordor”) gwarantuje wygodę codziennego życia.
- Okolica oferuje również wiele terenów zielonych i rekreacyjnych – ścieżki spacerowe, rowerowe oraz szybki dojazd do Pola Mokotowskiego i Dolin Służewieckiej.
DODATKOWE INFORMACJE
- Czynsz administracyjny wraz ze wszystkimi składowymi 1750zł +420zł fundusz remontowy.
- Do mieszkania przynależą 2 piwnice o pow. 10m2 i 7m2.
- Pełna własność.
- Możliwość zakupu na kredyt.
Zapraszam z wielką przyjemnością pokażę tę niezwykłą nieruchomość, która może stać się Twoim miejscem na ziemi.
Joanna Wiercińska
Premium Property Advisor
wiercinska@wli.pl
Niniejsze ogłoszenie jest wyłącznie informacją i nie stanowi oferty w rozumieniu art. 66 § 1 Kodeksu Cywilnego. Dokładamy wszelkich starań, aby informacje przedstawione w naszych ofertach były aktualne i rzetelne. Informacje zawarte w ofercie uzyskano na podstawie oświadczeń sprzedających.
Załączony plan nieruchomości jest poglądowy.
Agencja WHITE LION INVESTMENTS jest objęta obowiązkiem ubezpieczenia odpowiedzialności cywilnej zawodowej. Posiadamy OC zgodne z Rozporządzeniem Ministra Finansów z dn. 26.04.2019 r. w sprawie obowiązkowego ubezpieczenia odpowiedzialności cywilnej pośrednika w obrocie nieruchomościami (Dz. U. z 2019 r., poz. 804).
Pobieramy wynagrodzenie w formie prowizji za wykonaną usługę pośrednictwa.
Bierzemy odpowiedzialność za bezpieczeństwo przeprowadzanych przez nas transakcji.