Mieszkanie na sprzedaż
2 457 000 zł
84 m2



1 / 3
Szczegóły ogłoszenia
- Symbol oferty BRZ-MS-163766
- Typ oferty mieszkanie na sprzedaż
- Cena 2 457 000 zł
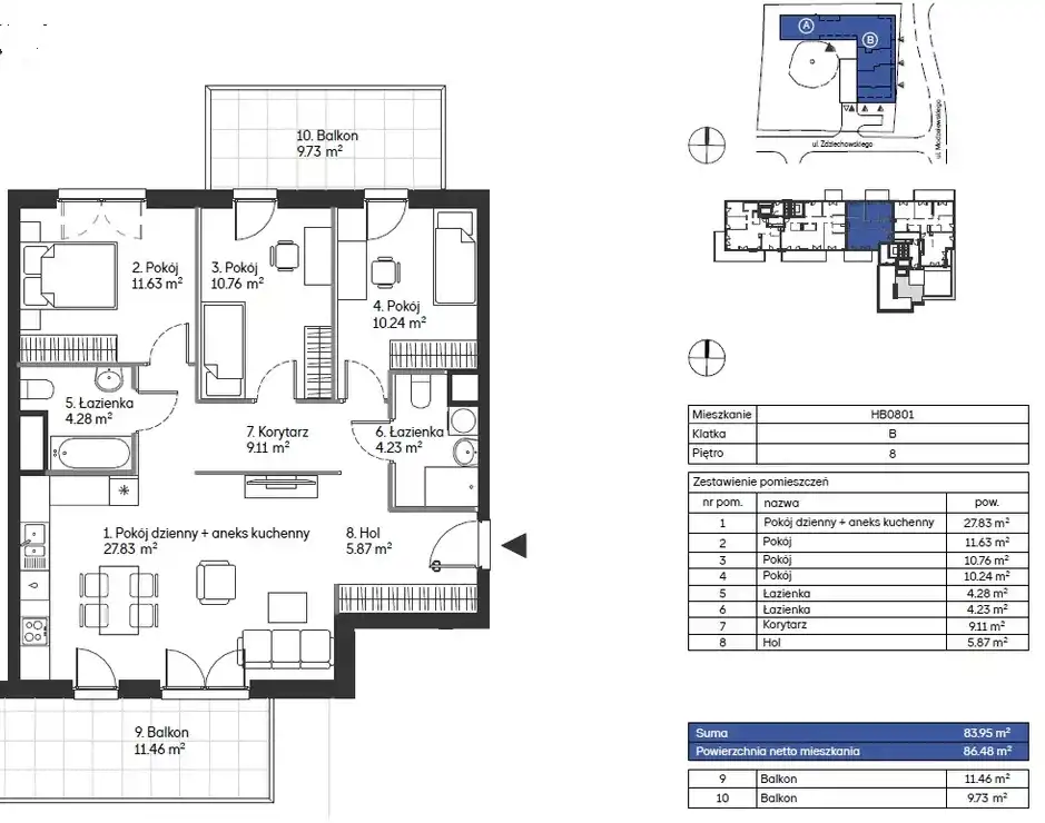
- Charakterystyka mieszkania 84 m2, 4 pokoje
- Budynek apartamentowiec; rok budowy: 2025
- Rozkład mieszkania 8p piętro
- Media Ogrzewanie: C.O. miejskie; Woda: ciepła - miejska
- Balkon loggia
- Garaż garaż pod budynkiem
- Okna PCV
- Stan lokalu do wykończenia
- Technologia budowlana mieszana
- Winda Tak
Lokalizacja
- Adres mazowieckie, Warszawa, Mokotów
Opis nieruchomości
Duże, przestronne mieszkanie o powierzchni 84 m2, 4-pokojwe, położone na 8. piętrze w 8-piętrowym w apartamentowcu z 2025 r., z widokiem na miasto, zlokalizowane na Mokotowie przy ul. Zdziechowskiego/ Domaniewska.
Wysokość pomieszczeń 2,70 m.
Tylko 2 lokale na jednej kondygnacji.
Wzorowy projekt. Część gościnna oddzielona od części sypialnej.
Dwa duże balkony z zadaszeniem i możliwością zasłonięcie w deszczowe dni.
Okna wychodzą na południe i północ.
Metro Wilanowska, tramwaje, autobusy.
Okolica biznesowa, w drugiej linii od ulicy Domaniewskiej.
Cesja sprzedaży.
Miejsce postojowe dodatkowe płatne - 80.000 zł
Boks rowerowy (komórka lokatorska) przy miejscu postojowym - 40 000 zł
Nota prawna
Opis oferty zawarty na stronie internetowej sporządzany jest na podstawie oględzin nieruchomości oraz informacji uzyskanych od właściciela, może podlegać aktualizacji i nie stanowi oferty określonej w art. 66 i następnych K.C.
Kalkulator kredytowy
Formularz kontaktowy