Mieszkanie na sprzedaż
























Szczegóły ogłoszenia
- Symbol oferty BRZ-MS-163715
- Typ oferty mieszkanie na sprzedaż
- Cena 3 049 000 zł
- Charakterystyka mieszkania 101 m2, 4 pokoje
- Budynek kamienica; rok budowy: 1939
- Rozkład mieszkania 2p piętro
- Media Ogrzewanie: C.O. GAZOWE; Woda: ciepła - miejska; Gaz: tak - miejski
- Balkon jest
- Stan lokalu bardzo dobry
- Technologia budowlana cegła
Lokalizacja
- Adres mazowieckie, Warszawa, Praga-Południe
Opis nieruchomości
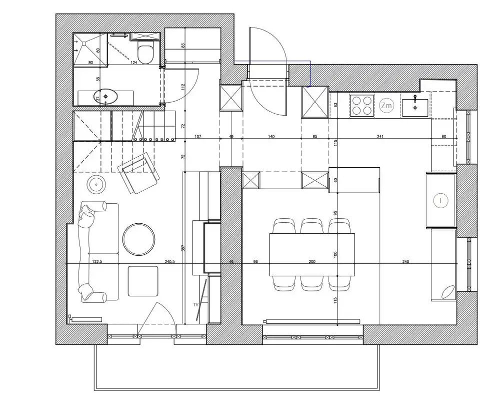
Wyjątkowy, wykończony w wysokim standardzie, dwupoziomowy apartament o powierzchni 89/101 m2, 4-pokojowyy, położony na 2. piętrze w 3-piętrowej kamienicy z 1939 r., zlokalizowanej na Saskiej Kępie przy ul. Lipskiej.
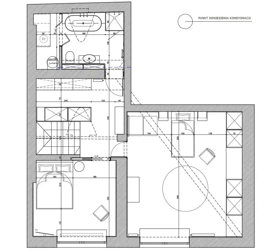
Mieszkanie znajduje się się na drugim piętrze i poddaszu. Powierzchnia mierzona po podłodze to 101 m kw.
Ze względu na skosy na drugim poziomie metraż w KW to 89 m2.
Od powierzchni 89 m2 liczony jest czynsz administracyjny.
Lokal jest cichy i bardzo słoneczny – okna od południa i wschodu (na ciche podwórko).
Wokół budynku dużo zieleni i drzew.
Niedaleko do Parku Skaryszewskiego (200 m).
Okolica bardzo dobrze skomunikowana.
W odległości 2 minut pieszo znajdują się przystanki tramwajowe i autobusowe.
W okolicy przedszkola, szkoła, kawiarnie, restauracje, apteka, sklepy.
Mieszkanie wyremontowane w 2018 roku wysokiej klasy materiałami.
Wymienione wszystkie piony, instalacja elektryczna, grzejniki.
Na podłogach położony parkiet dębowy i gres.
Meble, zabudowa kuchni i łazienek wykonane na zamówienie u stolarza.
W łazienkach ogrzewanie podłogowe.
W salonie jest kominek.
Na mieszkanie składa się:
1 POZIOM:
- kuchnia
- jadalnia
- salon z kominkiem i wyjściem na duży balkon
- łazienka
2 POZIOM:
- 1 sypialnia
- 2 sypialnia
- garderoba
- łazienka z pralnią
W 1945 roku na podstawie dekretu Bieruta kamienica przeszła na własność miasta.
Kamienica po kapitalnym remoncie, w której odnowiono elewację w 2016 r., klatkę schodową oraz wszystkie instalacje, zachowując jej historyczny klimat.