Mieszkanie na sprzedaż
3 200 000 zł
250 m2







1 / 7
Szczegóły ogłoszenia
- Symbol oferty SOL-MS-147527
- Typ oferty mieszkanie na sprzedaż
- Cena 3 200 000 zł
- Charakterystyka mieszkania 250 m2, 6 pokoi
- Budynek kamienica; rok budowy: 1930
- Rozkład mieszkania 4p piętro
- Balkon jest
- Czynsz Czynsz letni: 2500 zł
- Ilość sypialni 3
- Okna PCV
- Stan lokalu do odnowienia
- Technologia budowlana cegła
- Winda Tak
Lokalizacja
- Adres mazowieckie, Warszawa, Mokotów
Opis nieruchomości
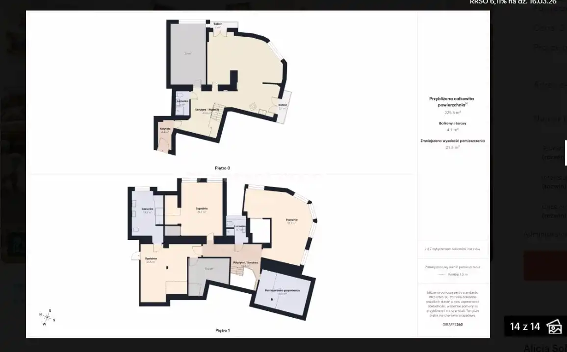
Do sprzedaży, ładne, klimatyczne dwupoziomowe mieszkanie o łącznej powierzchni 250 m 2.
Na poziomie I, znajduje się:
-Przedsionek o pow. 4,4 m 2
-Hall, aneks kuchenny, salon, jadalnia- o łącznej powierzchni 60 m 2
-Łazienka- o pow. 8 m 2.
-Gabinet o pow. 20 m 2
Wysokość I poziomu 3,5 m
Przy aneksie kuchennym i salonie usytuowane są balkony po ok. 2 m 2 każdy.
Okna PCV, w każdym oknie zamontowana jest zewnętrzna roleta.
Okna z funkcją wyciszającą, wnętrze mieszkania jest bardzo ciche.
Na podłodze w salonie, gabinecie, hallu znajduje się ładny parkiet drewniany.
Schody prowadzące na poziom II w bardzo dobrym stanie, ładne zadbane wykonane z drzewa.
Na poziomie II znajdują się:
-Trzy sypialnie o pow. 24,7 m 2 24,5 m 2 31 m 2
-Przy sypialni o pow. 24,7 m 2 znajduje się łazienka o pow. 14 m 2 oraz garderoba o pow. 11,5 m 2
-Dwa pomieszczenia gospodarcze po ok. 10 m 2 i 17 m 2
-Łazienka 4,7 m 2
Wysokość poziomu II 2,80 m
Na podłodze w sypialniach oraz hallu zadbany ładny parkiet drewniany.
W łazienkach glazura, terakota.
Duża łazienka o pow. 14 m 2 wyposażona w wannę, umywalkę, WC, w drugiej łazience o pow. 4, 7 m znajduje się prysznic, WC.
Okna wyciszające PCV z zamontowanymi roletami.
Mieszkanie jest idealnie ciche.
Dodatkowo do mieszkania przynależy piwnica.
Kamienica z 1930 roku, na klatce schodowej zachowała się przedwojenna posadzka w ciekawy modernistyczny wzór.
Budynek przeszedł pełną modernizację, zostały wymienione piony wodne, kanalizacyjne, gazowe.
Klatka schodowa odnowiona z zachowaniem modernistycznego klimatu.
JEST WINDA
Cena do negocjacji.
Na poziomie I, znajduje się:
-Przedsionek o pow. 4,4 m 2
-Hall, aneks kuchenny, salon, jadalnia- o łącznej powierzchni 60 m 2
-Łazienka- o pow. 8 m 2.
-Gabinet o pow. 20 m 2
Wysokość I poziomu 3,5 m
Przy aneksie kuchennym i salonie usytuowane są balkony po ok. 2 m 2 każdy.
Okna PCV, w każdym oknie zamontowana jest zewnętrzna roleta.
Okna z funkcją wyciszającą, wnętrze mieszkania jest bardzo ciche.
Na podłodze w salonie, gabinecie, hallu znajduje się ładny parkiet drewniany.
Schody prowadzące na poziom II w bardzo dobrym stanie, ładne zadbane wykonane z drzewa.
Na poziomie II znajdują się:
-Trzy sypialnie o pow. 24,7 m 2 24,5 m 2 31 m 2
-Przy sypialni o pow. 24,7 m 2 znajduje się łazienka o pow. 14 m 2 oraz garderoba o pow. 11,5 m 2
-Dwa pomieszczenia gospodarcze po ok. 10 m 2 i 17 m 2
-Łazienka 4,7 m 2
Wysokość poziomu II 2,80 m
Na podłodze w sypialniach oraz hallu zadbany ładny parkiet drewniany.
W łazienkach glazura, terakota.
Duża łazienka o pow. 14 m 2 wyposażona w wannę, umywalkę, WC, w drugiej łazience o pow. 4, 7 m znajduje się prysznic, WC.
Okna wyciszające PCV z zamontowanymi roletami.
Mieszkanie jest idealnie ciche.
Dodatkowo do mieszkania przynależy piwnica.
Kamienica z 1930 roku, na klatce schodowej zachowała się przedwojenna posadzka w ciekawy modernistyczny wzór.
Budynek przeszedł pełną modernizację, zostały wymienione piony wodne, kanalizacyjne, gazowe.
Klatka schodowa odnowiona z zachowaniem modernistycznego klimatu.
JEST WINDA
Cena do negocjacji.
Nota prawna
Opis oferty zawarty na stronie internetowej sporządzany jest na podstawie oględzin nieruchomości oraz informacji uzyskanych od właściciela, może podlegać aktualizacji i nie stanowi oferty określonej w art. 66 i następnych K.C.
Kalkulator kredytowy
Formularz kontaktowy