Mieszkanie na sprzedaż






Szczegóły ogłoszenia
- Symbol oferty LSW-MS-116
- Typ oferty mieszkanie na sprzedaż
- Cena 439 000 zł
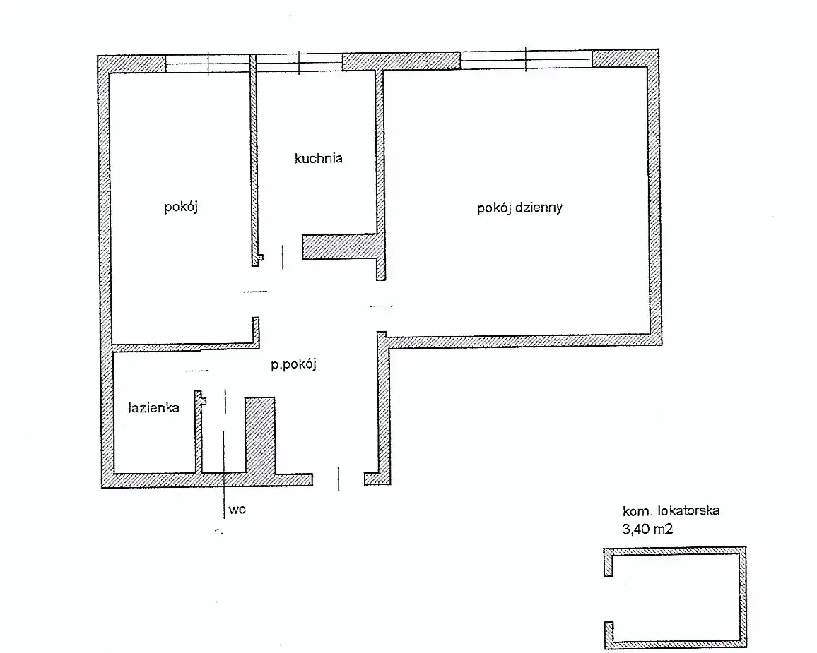
- Charakterystyka mieszkania 51.9 m2, 2 pokoje
- Budynek blok
- Rozkład mieszkania 8p piętro
- Media Ogrzewanie: centralne; Woda: ciepła - miejska; Gaz: jest
- Balkon duży
- Czynsz Czynsz letni: 690 zł
- Dojazd ASFALTOWA
- Instalacje ELEKTRYCZNA, GAZOWA, TELEFONICZNA, INTERNETOWA
- Okna PCV
- Otoczenie działki zabudowane
- Stan lokalu do generalnego remontu
- Technologia budowlana płyta
- Winda Tak
Lokalizacja
- Adres mazowieckie, Warszawa, Ursynów
Opis nieruchomości
BEZ PROWIZJI OD KUPUJĄCEGO!
Atrakcyjna oferta inwestycyjna. Do kapitalnego remontu - można wszystko zaaranżować od zera! Super cena!
MIESZKANIE
Mieszkanie 2 pokojowe - spokojnie można przerobić na 3 pokoje. Największym atutem jest przepiękny widok z balkonu i okien na Wilanów. Mieszkanie wychodzi na ulicę Rosoła, ale jest wysoko, więc hałas nie jest uciążliwy. Mieszkanie wymaga kapitalnego remontu i stąd tak atrakcyjna cena.
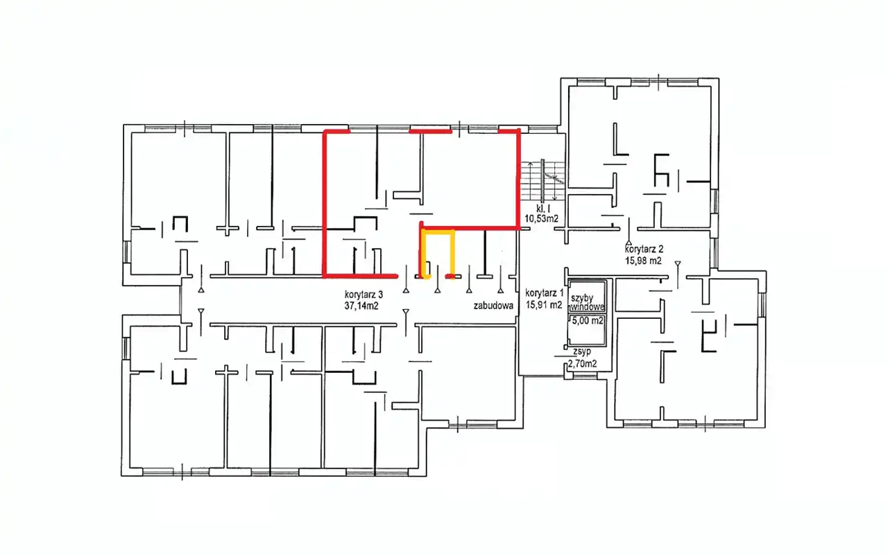
WAŻNE: Do mieszkania przynależy komórka lokatorska, która jest za ścianą. Na rzucie piętra jest zaznaczona na żółto.
BUDYNEK
Technologia - wielka płyta. Solidny, z ładną elewacją i ocieplony budynek dobrze zarządzany przez spółdzielnie. Zbudowany w latach 80tych. Budynek stoi na działce z uregulowanym stanem gruntu - można założyć księgę wieczystą i obciążyć kredytem.
LOKALIZACJA
Największym atutem tego mieszkania jest jego lokalizacja. Świetna infrastruktura i bliskość przystanków autobusowych oraz metra sprawia, że jest to jedno z najbardziej cenionych miejsc w Warszawie. Liczne skwery i bliskość lasy kabackiego jest dodatkowym atutem. Adres: Mandarynki 6.
ZAPRASZAM DO KONTAKTU!