Mieszkanie na sprzedaż




















Szczegóły ogłoszenia
- Symbol oferty LSW-MS-264
- Typ oferty mieszkanie na sprzedaż
- Cena 749 000 zł
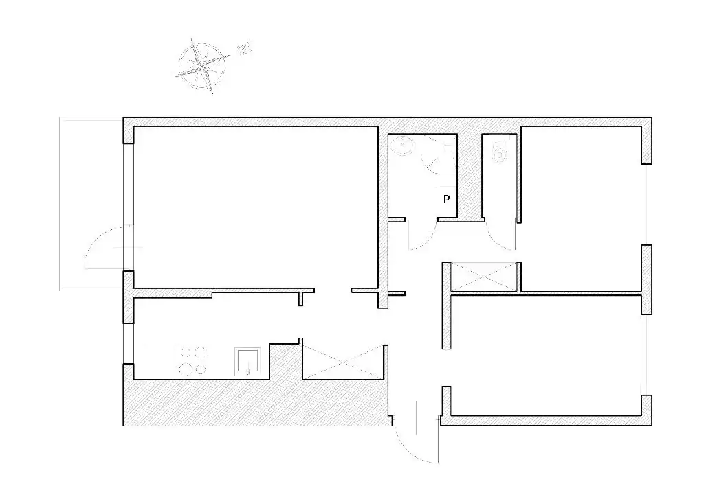
- Charakterystyka mieszkania 53.88 m2, 3 pokoje
- Budynek blok; rok budowy: 1974
- Rozkład mieszkania 6p piętro
- Balkon loggia
- Czynsz Czynsz letni: 615 zł
- Okna PCV
- Stan lokalu do generalnego remontu
- Technologia budowlana wielka płyta
- Winda Tak
Lokalizacja
- Adres mazowieckie, Warszawa m., Warszawa
Opis nieruchomości
BEZ PROWIZJI OD KUPUJĄCEGO!
(brak prowizji w przypadku klientów gotówkowych lub klientów, którzy skorzystają z specjalisty kredytowego poleconego przez nasze biuro, uregulowane grunty)
Chcesz zamieszkać i mieć widok z balkonu na park? Zależy Ci na świetnej lokalizacji w pobliżu komunikacji miejskiej, licznych punktów handlowo usługowych oraz oświatowych? Poszukujesz mieszkania, które remontujesz według własnej potrzeby? A może chcesz zainwestować i poszukujesz dobrej lokaty?
Jeżeli tak to mieszkanie jest właśnie dla Ciebie!
MIESZKANIE
Mieszkanie o powierzchni 53,88 m² położone jest na szóstym piętrze i składa się z trzech pokoi, oferując duży potencjał aranżacyjny. Centralnym punktem lokalu jest jasny salon z wyjściem na loggię o powierzchni około 3 m², z której rozpościera się przyjemny widok na park. Pomieszczenie to można połączyć z osobną kuchnią oraz częścią korytarza, tworząc otwartą, przestronną strefę dzienną o powierzchni ponad 25 m² - idealną do wspólnego spędzania czasu czy przyjmowania gości.
Mieszkanie jest dwustronne, co stanowi jego duży atut - zapewnia doskonałą cyrkulację powietrza i możliwość szybkiego przewietrzenia pomieszczeń. Okna salonu wychodzą na wschód, dzięki czemu wnętrze jest pełne porannego światła, natomiast sypialnie, skierowane na zachód, oferują przytulne, ciepłe popołudniowe słońce. Obie sypialnie są ustawne, o powierzchniach około 10 i 9 m², co pozwala na komfortowe urządzenie zarówno pokoju dziecięcego, jak i sypialni głównej lub gabinetu.
W mieszkaniu toaleta i łazienka są oddzielne, co zwiększa funkcjonalność układu. Lokal wymaga remontu, w tym wymiany instalacji elektrycznej, co daje nowemu właścicielowi możliwość dostosowania przestrzeni do własnych potrzeb i gustu. Okna PCV zostały wymienione około dziesięciu lat temu, co stanowi istotny element modernizacji.
W ostatnich latach przeprowadzono szereg ważnych prac modernizacyjnych. W 2024 roku wymieniono instalację elektryczną w częściach wspólnych, a w październiku 2025 roku zakończono wymianę instalacji wodno-kanalizacyjnej, co znacząco podnosi standard i bezpieczeństwo użytkowania budynku. Dodatkowym atutem jest obecność węzła cieplnego, który gwarantuje stabilne i efektywne ogrzewanie mieszkań.
Czynsz administracyjny, bez uwzględnienia mediów, wynosi 615 zł miesięcznie. Przy uwzględnieniu zużycia mediów przez trzyosobową rodzinę, całkowity koszt utrzymania mieszkania szacuje się na około 950 zł miesięcznie. Budynek jest zadbany i dobrze zarządzany, a przeprowadzone modernizacje sprawiają, że stanowi on solidną i komfortową bazę do zamieszkania na długie lata.
LOKALIZACJA
Okolica jest doskonale skomunikowana z resztą miasta. Stacja metra Słodowiec oddalona jest o około 10 minut spacerem, a w pobliżu znajdują się również liczne przystanki autobusowe i tramwajowe, które zapewniają szybki dojazd do centrum oraz innych dzielnic Warszawy. W zasięgu krótkiego spaceru - około 400 metrów - znajduje się dyskont Biedronka, co gwarantuje wygodny dostęp do codziennych zakupów.
Rodziny z dziećmi z pewnością docenią bliskość Szkoły Podstawowej nr 187 im. Adama Mickiewicza, położonej około 500 metrów od budynku, a także dwóch publicznych żłobków - nr 17 i nr 24.
To lokalizacja, która łączy w sobie wszystkie zalety życia w mieście - doskonałą komunikację, pełną infrastrukturę i dostęp do zieleni. Spokojne otoczenie, liczne tereny rekreacyjne i dobrze rozwinięta sieć usług czynią to miejsce idealnym do życia dla rodzin, par i osób szukających harmonii między naturą a miejską wygodą.
Zapraszam do kontaktu!