Mieszkanie na sprzedaż









Szczegóły ogłoszenia
- Symbol oferty KNG-MS-7388
- Typ oferty mieszkanie na sprzedaż
- Cena 789 000 zł
- Charakterystyka mieszkania 42 m2, 3 pokoje
- Budynek blok; rok budowy: 1975
- Rozkład mieszkania 6p piętro
- Balkon jest
- Garaż brak
- Stan lokalu bardzo dobry
- Winda Tak
Lokalizacja
- Adres mazowieckie, Warszawa, Wola
Opis nieruchomości
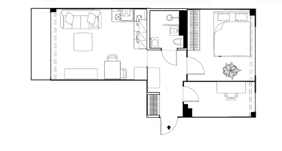
Prezentujemy 3-pokojowe mieszkanie o powierzchni 42 m², zlokalizowane w Warszawie przy ul. Skierniewickiej 1/7.To doskonała propozycja zarówno dla singla lub pary, jak i pod inwestycję pod wynajem.
Uwaga:
- prezentowane zdjęcia to wizualizacje – mieszkanie jest obecnie w trakcie remontu.
- Cena obejmuje mieszkanie po remoncie, sprzedawane bez mebli ruchomych.
- Sprzęt AGD – przyszły właściciel może wybrać modele, które zostaną zamontowane według preferencji.
Na powierzchni 42 m² zaprojektowano funkcjonalny i nowoczesny układ:
- salon z aneksem kuchennym z wyjściem na balkon (loggia) z widokiem na centrum Warszawy – szczególnie efektowny wieczorami i nocą
- sypialnię
- dodatkowy pokój (gabinet / pokój gościnny)
- łazienkę z WC
- przedpokój
Mieszkanie jest jasne i dobrze doświetlone, dzięki dużym oknom i ekspozycji na wschód oraz zachód.
Bardzo funkcjonalny rozkład, idealny do codziennego życia i pod wynajem.
Budynek:
Budynek został wybudowany w 1975 roku. Lokal znajduje się na 6 piętrze w 10 piętrowym budynku. Jest winda, domofon, monitoring.
Lokalizacja:
Komunikacyjnie idealne miejsce (autobus, tramwaj, metro), w pobliżu sklepy i usługi. Miejsce cieszy się zainteresowaniem osób młodych ceniących sobie szybkie dojazdy. W okolicy miejsca spotkań i restauracje (Browary Warszawskie, Fabryka Norblina, Muzeum Powstania Warszawskiego), obok budynku garaż wielostanowiskowy oraz parking.
Stan prawny:
Mieszkanie to pełna własność z księgą wieczystą. Przy zakupie można posiłkować się kredytem hipotecznym.
Cena mieszkania: 789.000 zł
Czynsz administracyjny: 800 zł
Dodatkowe informacje
- Decydując się na zakup tej nieruchomości, zyskujesz pełną obsługę, w tym bezpłatną pomoc w uzyskaniu kredytu hipotecznego. Współpracujemy ze sprawdzonym doradcą kredytowym.
- Współpracując z Digital Broker, otrzymujesz rabat na usługi notarialne.
- Jako profesjonalne biuro nieruchomości pobieramy wynagrodzenie prowizyjne za wykonanie usługi pośrednictwa.
- Mieszkanie jest dostępne w programie Rent2Own. Wpłać 20% i zamieszkaj od zaraz. Resztę zapłacisz za 2 do 5 lat – kiedy zbudujesz zdolność kredytową lub zbierzesz środki. O szczegóły zapytaj doradcę.
Zapraszam do kontaktu i na prezentację
Ada Zagrodzka