Mieszkanie na sprzedaż












Szczegóły ogłoszenia
- Symbol oferty KNG-MS-7434
- Typ oferty mieszkanie na sprzedaż
- Cena 789 000 zł
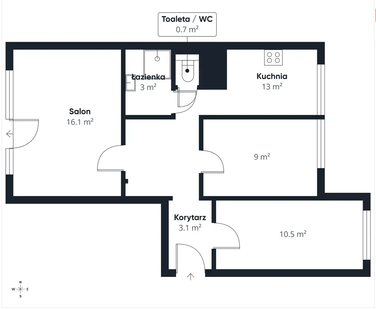
- Charakterystyka mieszkania 56.5 m2, 3 pokoje
- Budynek blok; rok budowy: 1971
- Rozkład mieszkania wysoki parter piętro
- Media Ogrzewanie: miejskie; Woda: tak - miejska
- Balkon loggia
- Czynsz Czynsz letni: 860 zł
- Garaż miejsce parkingowe przy budynku
- Instalacje dobre
- Stan lokalu do odświeżenia
- Technologia budowlana wielka płyta
- Winda Tak
Lokalizacja
- Adres mazowieckie, Warszawa, Mokotów
Opis nieruchomości
⭐️ 3 pokoje ⭐ 56,5 m² ⭐ Stegny ⭐ wysoki parter + loggia ⭐
Na sprzedaż przestronne i ustawne 3-pokojowe mieszkanie z oddzielną kuchnią, położone na warszawskich Stegnach. Lokal znajduje się na wysokim parterze zadbanego budynku i wyróżnia się funkcjonalnym układem, dobrym doświetleniem oraz dużym potencjałem do własnej aranżacji.
Świetna propozycja zarówno dla rodziny, jak i pod inwestycję.
Najważniejsze atuty nieruchomości:
-
zielona, spokojna okolica z pełną infrastrukturą
-
3 niezależne pokoje + osobna kuchnia
-
parter – idealny dla rodzin z dziećmi lub osób starszych
-
loggia o powierzchni 5 m² przy dużym pokoju
-
wymieniona instalacja wodno-kanalizacyjna (ok. 5 lat temu)
-
piwnica w cenie
-
niski czynsz – 865 zł (zawiera ogrzewanie i wodę)
Mieszkanie
Lokal o powierzchni 56,5 m² składa się z:
-
przestronnego salonu z wyjściem na loggię
-
dwóch oddzielnych pokoi
-
osobnej, w pełni wyposażonej kuchni
-
łazienki
-
przedpokoju
Kuchnia wyposażona w: piekarnik, płytę gazową, zmywarkę, lodówkę oraz kuchenkę mikrofalową.
Okna plastikowe, mieszkanie jasne i bardzo ustawne.
Dodatkowo do mieszkania przynależy piwnica.
Możliwości aranżacyjne
Istnieje możliwość przeniesienia kuchni do salonu lub drugiego przedpokoju, co pozwala na wydzielenie czwartego pokoju – doskonałe rozwiązanie inwestycyjne (np. pod wynajem).
Budynek
Zadbany budynek mieszkalny z uporządkowanymi częściami wspólnymi, położony w spokojnym otoczeniu zieleni.
Lokalizacja
Stegny – świetnie skomunikowana i rodzinna część Mokotowa.
W najbliższej okolicy:
-
przedszkole, szkoła podstawowa oraz basen – tuż obok
-
duży plac zabaw – ok. 200 m
-
przystanki tramwajowe i autobusowe – ok. 350 m
-
przystanek autobusu do metra – ok. 200 m
(4 przystanki do stacji Metro Wilanowska)
Komunikacja
Bardzo dobry dostęp do komunikacji miejskiej – szybki dojazd do centrum Warszawy, metra oraz głównych arterii miasta.
Stan PrawnySpółdzielcze własnościowe, grunty uregulowane
Zapraszam na prezentację
Bartłomiej Bala
533 861 880