Mieszkanie na sprzedaż
























Szczegóły ogłoszenia
- Symbol oferty WLI-MS-1342
- Typ oferty mieszkanie na sprzedaż
- Cena 795 000 zł
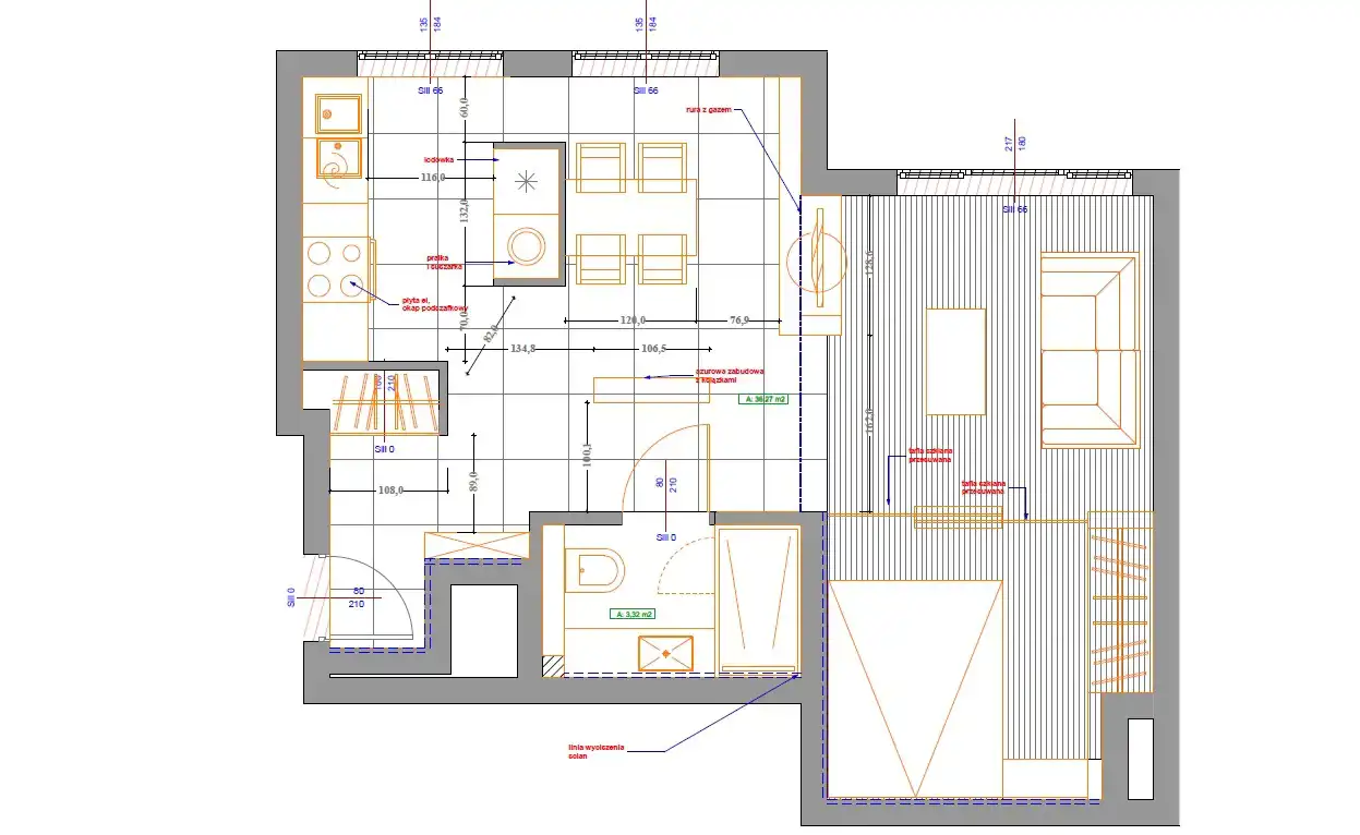
- Charakterystyka mieszkania 38.16 m2, 2 pokoje
- Budynek kamienica; rok budowy: 1930
- Rozkład mieszkania parter piętro
- Media Ogrzewanie: C.O. miejskie; Woda: ciepła - piecyk gazowy; Gaz: jest
- Czynsz Czynsz letni: 650 zł
- Dojazd ASFALTOWA
- Garaż brak
- Ilość sypialni 1
- Instalacje dobre
- Okna PCV
- Otoczenie centrum miasta
- Stan lokalu do odświeżenia
- Technologia budowlana murowana
- Umeblowanie do uzgodnienia
- Winda Tak
Lokalizacja
- Adres mazowieckie, Warszawa, Śródmieście
Opis nieruchomości
Mam przyjemność zaprezentować 2-pokojowe mieszkanie o powierzchni 38,16 m², położone na parterze zabytkowej kamienicy z 1930 roku, w jednej z najbardziej pożądanych lokalizacji Warszawy – na Powiślu. To propozycja dla osób, które chcą mieszkać w centrum miasta, a jednocześnie szukają spokoju, jakości i autentycznego klimatu przedwojennej architektury.
KAMIENICA
Budynek, w którym znajduje się mieszkanie, to przedwojenna kamienica o wyjątkowej historii. Przetrwała II wojnę światową, zachowując swój oryginalny charakter i architektoniczne detale. Przez lata zamieszkiwana była przez wiele wybitnych postaci życia publicznego, w tym m.in. Zbigniewa Religę, co podkreśla prestiż i rangę tego adresu.
Kamienica jest zadbana, a wejście do niej prowadzi przez reprezentacyjną bramę z domofonem. Klatki schodowe zlokalizowane są od strony wewnętrznego patio, co zapewnia ciszę i prywatność, mimo centralnej lokalizacji.
MIESZKANIE
Mieszkanie wyróżnia się wysokością pomieszczeń sięgającą 3 metrów, co daje poczucie przestrzeni i komfortu. Układ jest bardzo funkcjonalny i klasyczny, charakterystyczny dla przedwojennych kamienic.
W skład mieszkania wchodzą:
- przedpokój,
- kuchnia,
- łazienka,
- część dzienna z miejscem na stół oraz strefą wypoczynkową,
- sypialnia z dużym łóżkiem.
Ekspozycja północna zapewnia stabilne, przyjemne światło oraz komfort termiczny przez cały rok. Wnętrze zostało wykończone w dobrym standardzie, w nowoczesnym stylu – na podłogach znajdują się gres oraz panele. Całość tworzy spójną, harmonijną przestrzeń gotową do zamieszkania.
ATUTY NIERUCHOMOŚCI
- wysokość pomieszczeń 3 m,
- cicha ekspozycja od strony patio,
- niepowtarzalny klimat kamienicy,
- bardzo dobra lokalizacja w centrum miasta.
Do mieszkania przynależy również piwnica o powierzchni około 7 m², co stanowi dużą wartość dodaną. Istnieje także możliwość wynajęcia dedykowanego miejsca parkingowego na parkingu zlokalizowanym bezpośrednio przy kamienicy.
LOKALIZACJA – POWIŚLE
Powiśle to jedna z najbardziej prestiżowych i lubianych dzielnic Warszawy, łącząca miejski styl życia z bliskością zieleni. W najbliższej okolicy znajduje się szeroki wybór kawiarni, restauracji, butików oraz punktów usługowych, a także sklepy spożywcze, w tym Carrefour oddalony o około 100 metrów.
Ogromnym atutem tej lokalizacji jest bliskość Wisły i bulwarów wiślanych, które zachęcają do spacerów, biegania oraz jazdy na rowerze i stanowią idealne miejsce do odpoczynku po pracy.
KOMUNIKACJA
Mieszkanie jest doskonale skomunikowane z każdą częścią miasta. W pieszym dystansie znajdują się stacje metra, przystanki tramwajowe i autobusowe oraz stacja SKM Warszawa Powiśle, co pozwala na szybki i wygodny dojazd do centrum oraz innych dzielnic Warszawy.
STAN PRAWNY
- spółdzielcze własnościowe prawo do lokalu z możliwością założenia księgi wieczystej
- możliwość zakupu na kredyt
- termin wydania lokalu do ustalenia
DLA KOGO?
To idealna propozycja:
- dla singla lub pary,
- jako mieszkanie w centrum miasta,
- jako prestiżowa inwestycja pod wynajem,
- dla osób ceniących klimat, historię i ciszę.
Jeśli szukasz miejsca z duszą, w którym możesz odpocząć po intensywnym dniu w mieście, a jednocześnie korzystać z pełni życia, jakie oferuje Powiśle — ta nieruchomość zdecydowanie zasługuje na uwagę.
Serdecznie zapraszam do kontaktu i umówienia prezentacji w dogodnym dla Państwa terminie.
Weronika Pietruszka
Senior Premium Property Advisor
pietruszka@wli.pl
Niniejsze ogłoszenie jest wyłącznie informacją i nie stanowi oferty w rozumieniu art. 66 § 1 Kodeksu Cywilnego. Dokładamy wszelkich starań, aby informacje przedstawione w naszych ofertach były aktualne i rzetelne. Informacje zawarte w ofercie uzyskano na podstawie oświadczeń sprzedających. Załączony plan nieruchomości jest poglądowy.
Agencja WHITE LION INVESTMENTS jest objęta obowiązkiem ubezpieczenia odpowiedzialności cywilnej zawodowej. Posiadamy OC zgodne z Rozporządzeniem Ministra Finansów z dn. 26.04.2019 r. w sprawie obowiązkowego ubezpieczenia odpowiedzialności cywilnej pośrednika w obrocie nieruchomościami (Dz. U. z 2019 r., poz. 804).
Pobieramy wynagrodzenie w formie prowizji za wykonaną usługę pośrednictwa.
Bierzemy odpowiedzialność za bezpieczeństwo przeprowadzanych przez nas transakcji.