Mieszkanie na sprzedaż
799 000 zł
48 m2








1 / 8
Szczegóły ogłoszenia
- Symbol oferty HSH-MS-13513
- Typ oferty mieszkanie na sprzedaż
- Cena 799 000 zł
- Charakterystyka mieszkania 48 m2, 3 pokoje
- Rozkład mieszkania 4p piętro
- Czynsz Czynsz letni: 850 zł
- Stan lokalu do generalnego remontu
- Winda Tak
Lokalizacja
- Adres mazowieckie, Warszawa, Śródmieście
Opis nieruchomości
Jeśli chcesz być w Cetrum wydarzeń, to jest mieszkanie dla Ciebie!
Grzybowska, na pograniczu Śródmieścia i Woli.
Pełna infrastruktura miejska, idealny transport: autobusy, tramwaje, Metro (stacja Rondo ONZ).
Restauracje i butiki | Dworzec Centralny | Hala Mirowska | Fabryka Norblina i Browary Warszawskie | Ogród Saski, ścieżki rowerowe i tereny zielone
Budynek na monitorowanym terenie ze strzeżonym parkingiem za szlabanem i miejscami dla gości | Reprezentacyjna recepcja czynna 24/7 | Wyremontowany hol i zadbane windy | Rowerownia | Zadbany budynek z lat 70.
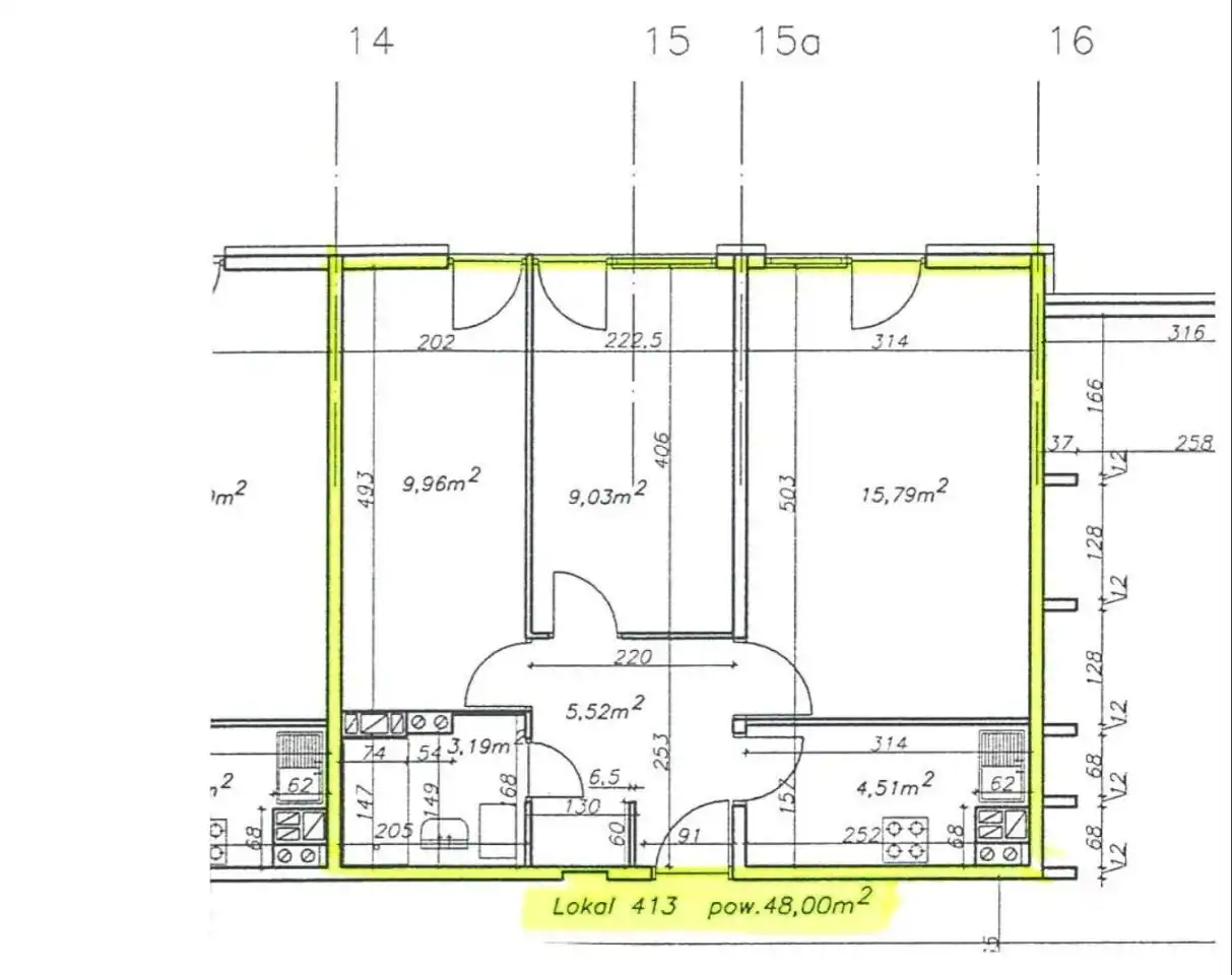
Powierzchnia całkowita mieszkania: 48,0 m² | Piętro: 4 / 15 | Liczba pokoi: 3 | Oddzielna kuchnia (z możliwością otwarcia na salon) | Balkony francuskie | Ekspozycja okien: zachodnia (jasne, słoneczne wnętrza) | Spółdzielczo-własnościowe |
Mieszkanie z dużymi możliwościami aranżacji. Mieszkanie zostało przygotowane do remontu. Zostały zamówione nowe okna. Podłoga drewniana z lat 70-tych przygotowana do cyklinowania. Do wymiany drzwi wejściowe oraz wewnętrzne. Do zrobienia elektryka, łazienka oraz kuchnia.
Rozkład pomieszczeń:
Grzybowska, na pograniczu Śródmieścia i Woli.
Pełna infrastruktura miejska, idealny transport: autobusy, tramwaje, Metro (stacja Rondo ONZ).
Restauracje i butiki | Dworzec Centralny | Hala Mirowska | Fabryka Norblina i Browary Warszawskie | Ogród Saski, ścieżki rowerowe i tereny zielone
Budynek na monitorowanym terenie ze strzeżonym parkingiem za szlabanem i miejscami dla gości | Reprezentacyjna recepcja czynna 24/7 | Wyremontowany hol i zadbane windy | Rowerownia | Zadbany budynek z lat 70.
Powierzchnia całkowita mieszkania: 48,0 m² | Piętro: 4 / 15 | Liczba pokoi: 3 | Oddzielna kuchnia (z możliwością otwarcia na salon) | Balkony francuskie | Ekspozycja okien: zachodnia (jasne, słoneczne wnętrza) | Spółdzielczo-własnościowe |
Mieszkanie z dużymi możliwościami aranżacji. Mieszkanie zostało przygotowane do remontu. Zostały zamówione nowe okna. Podłoga drewniana z lat 70-tych przygotowana do cyklinowania. Do wymiany drzwi wejściowe oraz wewnętrzne. Do zrobienia elektryka, łazienka oraz kuchnia.
Rozkład pomieszczeń:
- Salon: ok. 15,80 m²
- Kuchnia: 4,50 m²
- Sypialnia 1: 10,00 m²
- Sypialnia 2: 9,00 m²
- Przedpokój: 5,50 m²
- Łazienka: 3,20 m²
Nota prawna
Opis oferty zawarty na stronie internetowej sporządzany jest na podstawie oględzin nieruchomości oraz informacji uzyskanych od właściciela, może podlegać aktualizacji i nie stanowi oferty określonej w art. 66 i następnych K.C.
Kalkulator kredytowy
Formularz kontaktowy