Mieszkanie na sprzedaż



















Szczegóły ogłoszenia
- Symbol oferty WLI-MS-1378
- Typ oferty mieszkanie na sprzedaż
- Cena 840 000 zł
- Charakterystyka mieszkania 47 m2, 2 pokoje
- Budynek budynek wielorodzinny; rok budowy: 2018
- Rozkład mieszkania parter piętro
- Media Ogrzewanie: C.O. Z SIECI MIEJSKIEJ; Woda: ciepła - miejska
- Czynsz Czynsz letni: 650 zł
- Dojazd asfalt
- Garaż garaż pod budynkiem
- Ilość sypialni 1
- Instalacje dobre
- Okna PCV
- Otoczenie osiedle
- Plac zabaw Tak
- Stan lokalu dobry
- Technologia budowlana mieszana
- Umeblowanie umeblowane
- Winda Tak
Lokalizacja
- Adres mazowieckie, Warszawa, Włochy
Opis nieruchomości
Włochy Raków to idealna dzielnica dla osób poszukujących spokojnego miejsca do zamieszkania, z dala od zgiełku centrum miasta, a jednocześnie z doskonale rozwiniętą infrastrukturą i dostępem do wszystkich niezbędnych udogodnień. To miejsce, gdzie nowoczesność łączy się z naturą, oferując komfortowe warunki do życia.
Zapraszam do zapoznania się z wyjątkową ofertą komfortowego, 2-pokojowego mieszkania o powierzchni 47 m², usytuowanego na parterze w czteropiętrowym, nowoczesnym budynku z 2018 roku. Nieruchomość znajduje się w atrakcyjnej części warszawskich Włoch, przy ul. Klinkierowej, w spokojnej i dobrze skomunikowanej okolicy.
Mieszkanie wyróżnia się funkcjonalnym układem pomieszczeń oraz dostępem do prywatnego ogródka, który stanowi idealne miejsce do relaksu, spotkań z bliskimi czy stworzenia własnej, zielonej przestrzeni w sercu miasta. To doskonała propozycja zarówno dla singla, pary, jak i inwestora poszukującego nieruchomości stanowiącej bezpieczną i perspektywiczną lokatę kapitału.
OPIS NIERUCHOMOŚCI :
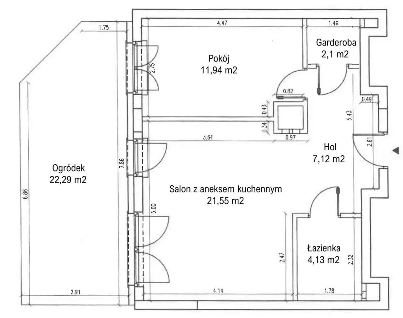
Mieszkanie wyróżnia się funkcjonalnym i przemyślanym układem pomieszczeń oraz bezpośrednim wyjściem do prywatnego ogródka, który stanowi idealną przestrzeń do relaksu, spotkań z bliskimi czy stworzenia własnej, zielonej oazy w sercu miasta. Lokal jest jednostronny o korzystnej ekspozycji południowo-wschodniej, co zapewnia dobre doświetlenie wnętrz. Dodatkowym, dużym atutem mieszkania jest wydzielona garderoba, gwarantująca wygodne i praktyczne miejsce do przechowywania.
- Salon z Aneksem kuchennym o powierzchni 21,55 m² : Salon wyposażono w wygodną sofę idealną do relaksu, szafkę rtv oraz telewizor. Aneks kuchenny oferuje wiele miejsca do przechowywania i został zaprojektowany z myślą o funkcjonalności. Na wyposażeniu znajdują się: lodówko-zamrażarka, płyta indukcyjna, piekarnik oraz zmywarka. Stół z krzesłami idealnie wpasowuje się w przestrzeń między aneksem a salonem. Kuchnia jest jasna, przestronna i ergonomiczna.
- Sypialnia o powierzchni 11,94 m²: To przytulne miejsce do odpoczynku . Duże okna zapewniają naturalne światło przez większą część dnia, a komfortowe łóżko o wymiarach 160x200, gwarantuje spokojny sen i pełen relaks. Łazienka pełna komfortu: Nowoczesna łazienka o powierzchni 4,13 m² została wyposażona w wannę, lustro, wiszącą szafkę, umywalkę oraz pralkę.
- Praktyczny Hol o powierzchni 7,21 m² : Funkcjonalna przestrzeń z dużą szafą, wieszakiem oraz domofonem, która zapewnia komfortowe i praktyczne zagospodarowanie strefy wejściowej
- Garderoba o powierzchni 2,1 m² : Funkcjonalna i dobrze zaplanowana przestrzeń do przechowywania ubrań, obuwia oraz akcesoriów. Pozwala zachować porządek w pozostałej części mieszkania, a jednocześnie zapewnia wygodny dostęp do wszystkich niezbędnych rzeczy.
- Łazienka o powierzchni 4,13 m²: Wyposażona w wannę, lutro, umywalkę, wc, szafkę oraz pralkę.
- Ogródek o powierzchni 23 m² : Przestronny i kameralny, stanowi wyjątkowe przedłużenie strefy dziennej. To idealne miejsce na poranną kawę w promieniach słońca, odpoczynek po pracy czy relaks na świeżym powietrzu w otoczeniu własnej zieleni.
LOKALIZACJA:
Osiedle, na którym znajduje się mieszkanie, to kameralny kompleks budynków o nowoczesnej architekturze. Znajdziesz tu zamknięte patio oraz plac zabaw, które sprawiają, że miejsce to jest przyjazne zarówno dla rodzin z dziećmi, jak i osób ceniących ciszę i bezpieczeństwo. Lokalizacja gwarantuje szybki i wygodny dojazd do różnych części Warszawy. W odległości zaledwie 7 minut spacerem znajdują się przystanki autobusowe, a tramwaj i stacja PKP Rakowiec oddalone są o około 15 minut pieszo . Dojazd do centrum zajmuje kilkanaście minut, a bliskość tras szybkiego ruchu ułatwia podróże poza miasto. Na osiedlu i w jego najbliższym otoczeniu znajdziesz wszystko, czego potrzebujesz na co dzień - sklepy spożywcze, restauracje, piekarnię, warzywniak, cukiernię, fryzjera, kosmetyczkę, gabinet stomatologiczny, weterynarza oraz punkt pobrań ALAB. W pobliżu znajduje się także Centrum Łopuszańska , Targowisko Bakalarska oraz liczne tereny zielone, w tym Park Szczęśliwicki oddalony o około 2 km.
OKOLICA :
- Żłobek – 300 m
- Restauracja – 400 m
- Sklep spożywczy – 250 m
- Park Szczęśliwicki – 2000 m
- Targowisko Bakalarska – 800 m
- Galeria wypieków Lubaszka – 350 m
- Siłownia ,, ZDROFIT Ochota ‘’ – 1300 m
KOMUNIKACJA:
- Przystanek SKM ,,Warszawa Rakowiec ’’ – 15 min. pieszo
- Przystanek autobusowy ,,Rakowska 01 – 7 min. pieszo
- Przystanek tramwajowy ,,Rakowiec 04 – 15 min. pieszo
DODATKOWE INFORMACJE:
- Do mieszkania przynależy: Miejsce postojowe w garażu podziemnym – płatne dodatkowo 50 000zł
- Czynsz: ok. 650 zł. Wliczona jest w nim zaliczka na wodę i ogrzewanie, wywóz nieczystości, fundusz remontowy, opłata za części wspólne i administracja
- Media: światłowodowy internet, telewizja
STAN PRAWNY:
Własność.
Można posiłkować się kredytem przy zakupie.
Jeżeli zainteresowała Państwa nasza oferta - serdecznie zapraszam do kontaktu.
Hubert Goławski
Senior Premium Property Advisor
Numer licencji zawodowej: 31022
golawski@wli.pl
Niniejsze ogłoszenie jest wyłącznie informacją i nie stanowi oferty w rozumieniu art. 66 § 1 Kodeksu Cywilnego. Dokładamy wszelkich starań, aby informacje przedstawione w naszych ofertach były aktualne i rzetelne. Informacje zawarte w ofercie uzyskano na podstawie oświadczeń sprzedających. Załączony plan nieruchomości jest poglądowy.
Agencja WHITE LION INVESTMENTS jest objęta obowiązkiem ubezpieczenia odpowiedzialności cywilnej zawodowej. Posiadamy OC zgodne z Rozporządzeniem Ministra Finansów z dn. 26.04.2019 r. w sprawie obowiązkowego ubezpieczenia odpowiedzialności cywilnej pośrednika w obrocie nieruchomościami (Dz. U. z 2019 r., poz. 804).
Pobieramy wynagrodzenie w formie prowizji za wykonaną usługę pośrednictwa. Bierzemy odpowiedzialność za bezpieczeństwo przeprowadzanych przez nas transakcji.