Mieszkanie na sprzedaż



















Szczegóły ogłoszenia
- Symbol oferty PWN-MS-506
- Typ oferty mieszkanie na sprzedaż
- Cena 849 000 zł
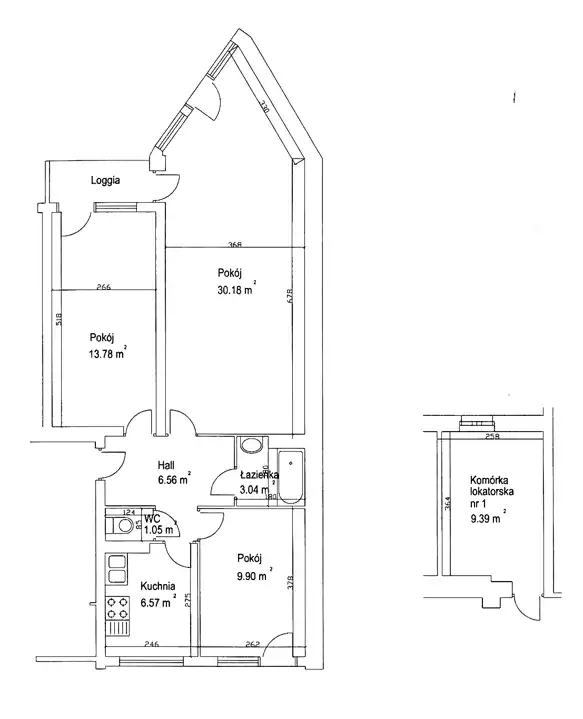
- Charakterystyka mieszkania 71.08 m2, 3 pokoje
- Budynek blok; rok budowy: 1974
- Rozkład mieszkania parter piętro
- Media Ogrzewanie: C.O. GAZOWE; Woda: tak - miejska; Gaz: tak - miejski
- Balkon średni
- Czynsz 1450 zł
- Dojazd asfalt
- Ilość sypialni 2
- Instalacje wymienione
- Otoczenie osiedle
- Stan lokalu do odświeżenia
- Technologia budowlana cegła
Lokalizacja
- Adres mazowieckie, Warszawa, Wawer
Opis nieruchomości
Przestronne 3-pokojowe mieszkanie 71,08 m² z tarasem i ogródkiem przy lesie | Anin, Warszawa
Na sprzedaż funkcjonalne 3-pokojowe mieszkanie o powierzchni 71,08 m², położone w jednej z najbardziej zielonych i urokliwych części Warszawy – Aninie, w dzielnicy Wawer. Okolica słynie z kameralnej zabudowy, dużej ilości zieleni oraz wyjątkowo spokojnego charakteru, dzięki czemu stanowi idealne miejsce do życia dla osób ceniących ciszę i bliskość natury.
Nieruchomość wyróżnia się przestronnym salonem z wyjściem na taras i ogródek oraz widokiem na las, co zapewnia poczucie prywatności i wyjątkowy klimat.
Dodatkowym atutem mieszkania jest duża komórka lokatorska o powierzchni 9,39 m², idealna do przechowywania rowerów, sprzętu sportowego czy rzeczy sezonowych.
Funkcjonalny układ pomieszczeń
Mieszkanie składa się z:
-
przestronnego salonu (30,18 m²) z wyjściem na taras i ogródek
-
dwóch oddzielnych sypialni (13,78 m² oraz 9,90 m²)
-
jedna z sypialni posiada wyjście na loggię
-
oddzielnej kuchni z oknem (6,57 m²)
-
łazienki z wanną
-
osobnego WC
-
funkcjonalnego hallu
Układ mieszkania jest bardzo praktyczny i zapewnia wygodę codziennego życia.
Salon z tarasem i ogródkiem
Centralnym punktem mieszkania jest ponad 30-metrowy salon, który dzięki dużym oknom jest doskonale doświetlony naturalnym światłem. Z salonu prowadzi bezpośrednie wyjście na taras oraz ogródek, stanowiące idealne miejsce do odpoczynku, porannej kawy czy spotkań z rodziną i przyjaciółmi.
Dodatkowym atutem jest widok na las, który zapewnia wyjątkowy klimat oraz kontakt z naturą.
Lokalizacja – zielony Anin
Mieszkanie znajduje się w Aninie – jednej z najbardziej zielonych i prestiżowych części dzielnicy Wawer. Okolica charakteryzuje się dużą ilością terenów zielonych, niską zabudową oraz spokojną atmosferą.
W pobliżu znajdują się:
- liczne tereny spacerowe i rekreacyjne
- sklepy oraz punkty usługowe
- szkoły i przedszkola
- dogodna komunikacja z centrum Warszawy
- Pod względem prawnym - mieszkanie spółdzielcze własnościowe bez księgi wieczystej.
ZAPRASZAM DO OBEJRZENIA ZDJĘĆ I WIRTUALNEGO SPACERU PO MIESZKANIU.
NIE SZUKAJ WIĘCEJ !
ZADZWOŃ TERAZ I UMÓW SPOTKANIE ABY OBEJRZEĆ TO WYJĄTKOWE MIESZKANIE W DOGODNYM DLA CIEBIE TERMINIE.