Mieszkanie na sprzedaż












Szczegóły ogłoszenia
- Symbol oferty VES-MS-4626
- Typ oferty mieszkanie na sprzedaż
- Cena 849 900 zł
- Charakterystyka mieszkania 61.6 m2, 3 pokoje
- Budynek budynek wielorodzinny
- Rozkład mieszkania 8p piętro
- Balkon duży
- Czynsz Czynsz letni: 1500 zł
- Instalacje częściowo wymienione
- Okna PCV
- Stan lokalu dobry
- Technologia budowlana płyta po termomodernizacji
- Winda Tak
Lokalizacja
- Adres mazowieckie, Warszawa, Praga-Południe
Opis nieruchomości
Na sprzedaż przestronne 3-pokojowe mieszkanie z balkonem – Warszawa, Gocław, ul. Guderskiego 3
Na sprzedaż funkcjonalne, ustawne mieszkanie o powierzchni 61,6 m², położone na 8. piętrze w 10-piętrowym budynku z windą, na warszawskim Gocławiu przy ul. Guderskiego 3.
Mieszkanie stanowi odrębną własność z księgą wieczystą, co umożliwia zakup na kredyt.
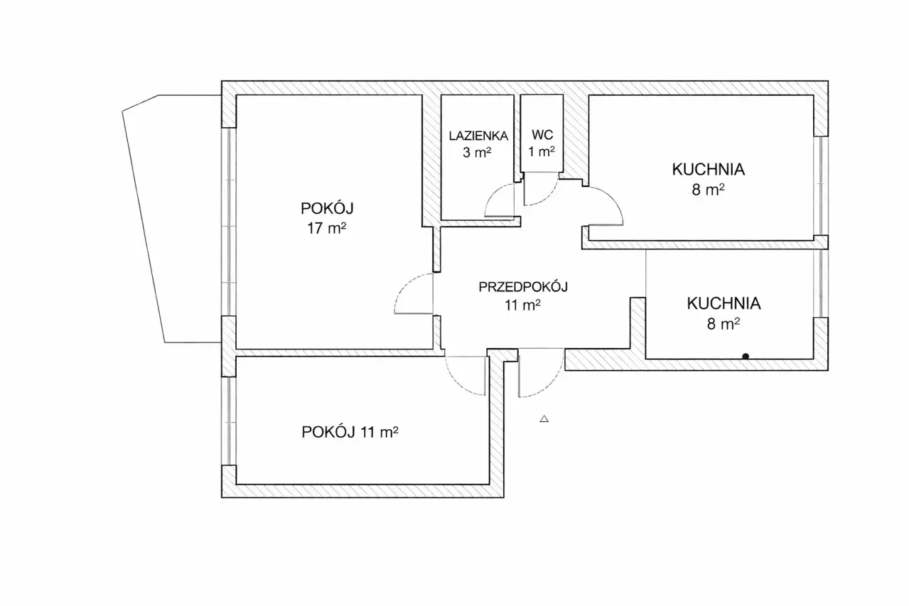
Układ i metraże pomieszczeń:
Mieszkanie ma bardzo praktyczny, dwustronny rozkład, zapewniający dobre doświetlenie wnętrz.
-
Salon – 17 m²
Przestronny i jasny pokój dzienny z wyjściem na balkon, idealny do wypoczynku i spotkań. -
Sypialnia – 11 m²
Ustawna, z miejscem na duże łóżko i szafę. -
Pokój / gabinet – 11 m²
Doskonały jako pokój dziecięcy, gabinet lub druga sypialnia. -
Kuchnia – 8 m²
Oddzielna, widna kuchnia po remoncie, w pełni funkcjonalna. -
Przedpokój – 11 m²
Przestronny, z szafą typu Komandor w zabudowie. -
Łazienka – 3 m²
Po generalnym remoncie, nowoczesna aranżacja. -
WC – 1 m²
Oddzielne, co znacząco podnosi komfort użytkowania. -
Balkon
Dodatkowa przestrzeń do relaksu z widokiem na okolicę.
Dodatkowo:
-
do mieszkania przynależy piwnica,
-
możliwość korzystania z wózkowni.
Stan techniczny:
-
kuchnia oraz łazienka po remoncie,
-
wycyklinowane podłogi,
-
mieszkanie zadbane, gotowe do zamieszkania lub lekkiego odświeżenia.
Budynek:
-
blok z wielkiej płyty (przełom lat 70./80.),
-
zadbana klatka schodowa,
-
nowa winda,
-
spokojni, życzliwi sąsiedzi.
Lokalizacja i okolica:
Atrakcyjna lokalizacja na Gocławiu — cicha i spokojna okolica, a jednocześnie pełna infrastruktura:
-
Jezioro Balaton w pobliżu – idealne miejsce na spacery i rekreację,
-
sklepy, restauracje, apteki, punkty usługowe,
-
CH Gocław, siłownie, szkoły, przedszkola,
-
przychodnie lekarskie i weterynaryjne.
Komunikacja:
-
dojazd do centrum w ok. 20 minut,
-
w planach linia metra, co dodatkowo zwiększy atrakcyjność lokalizacji.