Mieszkanie na sprzedaż































Szczegóły ogłoszenia
- Symbol oferty WLI-MS-1335
- Typ oferty mieszkanie na sprzedaż
- Cena 850 000 zł
- Charakterystyka mieszkania 63 m2, 3 pokoje
- Budynek blok; rok budowy: 1984
- Rozkład mieszkania 4p piętro
- Media Ogrzewanie: C.O. Z SIECI MIEJSKIEJ; Woda: ciepła - miejska; Gaz: brak
- Balkon loggia
- Czynsz Czynsz letni: 1161.2 zł
- Dojazd ASFALTOWA
- Garaż miejsce parkingowe przy budynku
- Ilość sypialni 2
- Instalacje ELEKTRYCZNA, WODNA, GAZOWA
- Okna PCV
- Otoczenie bloki
- Stan lokalu do remontu
- Technologia budowlana rama H
- Umeblowanie do uzgodnienia
Lokalizacja
- Adres mazowieckie, Warszawa, Włochy
Opis nieruchomości
Na sprzedaż przytulne mieszkanie przy ul. Komitetu Obrony Robotników, Warszawa – Włochy
Mam przyjemność zaprezentować Państwu mieszkanie na sprzedaż z olbrzymim potencjałem aranżacyjnym, położone w bardzo atrakcyjnej biznesowo i komunikacyjnie części Warszawy.
Przedmiotem oferty jest trzypokojowe mieszkanie zlokalizowane na czwartym piętrze (bez windy) budynku mieszkalnego przy ul. Komitetu Obrony Robotników 39D w Warszawie. Doskonała lokalizacja Okęcie/Włochy to świetna baza inwestycyjna.
To idealna propozycja zarówno dla singla, pary, jak i inwestora poszukującego bezpiecznej i dochodowej nieruchomości, która świetnie sprawdzi się zarówno w najmie krótko, jak i długoterminowym.
NAJWAŻNIEJSZE ATUTY
- Powierzchnia 63 m² z funkcjonalnym układem i loggią 4,8 m².
- Ekspozycja wschód/zachód - zapewnia doskonałe doświetlenie mieszkania.
- Świetna lokalizacja - szybki dostęp do przystanków autobusowych i tramwajowych. Bliskość lotniska Chopina.
- Wyjątkowy widok - panoramiczny widok z 4. piętra na tereny zielone i w dalszej części na otwartą przestrzeń lotniska.
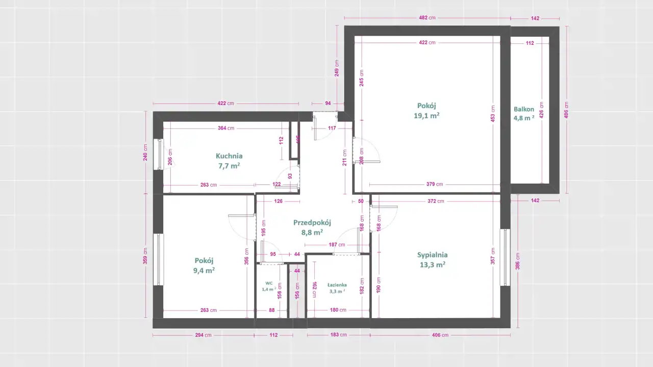
UKŁAD POMIESZCZEŃ
Mieszkanie posiada funkcjonalny i komfortowy układ pomieszczeń:
- Salon - 19,1 m²
- Sypialnia - 13,3 m²
- Pokój - 9,4 m²
- Kuchnia - 7,7 m²
- Łazienka - 3,3 m²
- Osobne WC - 1,4 m²
- Przedpokój - 8,8 m²
- Loggia - 4,8 m²
OPIS NIERUCHOMOŚCI
Mieszkanie w stanie do remontu, co daje nowym właścicielom możliwość aranżacji wnętrza według własnych potrzeb i gustu.
Lokal jest zadbany, utrzymany w czystości, z zachowanym oryginalnym układem pomieszczeń.
Dwustronna ekspozycja okien w kierunku wschodnio-zachodnim zapewnia optymalne doświetlenie wnętrza naturalnym światłem przez większą część dnia.
W sypialni znajduje się przestronna szafa wykonana na wymiar. Na podłodze w pokojach oraz w przedpokoju jest położony parkiet.
BUDYNEK I ELEMENTY TECHNICZNE
- Technologia szkieletowa ( Rama H ) - konstrukcja zapewniająca duże możliwości przearanżowania układu ścian.
- Okna PCV w dobrym stanie.
- Instalacja gazowa i elektryczna , ogrzewanie miejskie, ciepła woda z sieci miejskiej, Internet.
- Wymienione piony wodne i kanalizacyjne.
LOKALIZACJA WŁOCHY/OKĘCIE
Nieruchomość położona jest w jednej z najbardziej pożądanych i dynamicznie rozwijających się części Warszawy, na granicy Włoch i Okęcia. Lokalizacja ta łączy spokój osiedla z dostępem do pełnej infrastruktury największego centrum biznesowego stolicy.
- Lotnisko Chopina: około 5 minut pieszo.
- Biurowce Służewca: około 5-7 minut pieszo.
- Przystanki autobusowe: około 2-3 minuty pieszo (ul. Hynka , Al. Krakowska).
- Centrum Handlowe Okęcie: około 5 minut samochodem.
- Pełna infrastruktura: szkoła , sklepy , punkty usługowe.
- Wjazd na S2/A2: bardzo szybki dostęp do obwodnicy i wylotówek z Warszawy.
STAN PRAWNY NIERUCHOMOŚCI I DODATKOWE INFORMACJE
- Forma własności: własność.
- Budynek bez windy.
- Zakup mieszkania możliwy także z wykorzystaniem kredytu hipotecznego.
- Do mieszkania przynależy piwnica 4,8 m² i prywatne miejsce postojowe za szlabanem.
- Czynsz administracyjny: ok. 1160 PLN
Serdecznie zapraszam do kontaktu i prezentacji mieszkania – jest to wyjątkowa okazja zarówno dla osób poszukujących komfortowego lokum, jak i dla inwestorów szukających atrakcyjnej nieruchomości pod wynajem lub lokatę kapitału.
Jestem do Państwa dyspozycji przez 7 dni w tygodniu.
Katarzyna Wiśniewska-Kolwas
Premium Property Advisor
Numer licencji zawodowej 31696
wisniewska-kolwas@wli.pl
Niniejsze ogłoszenie jest wyłącznie informacją i nie stanowi oferty w rozumieniu art. 66 § 1 Kodeksu Cywilnego. Dokładamy wszelkich starań, aby informacje przedstawione w naszych ofertach były aktualne i rzetelne. Informacje zawarte w ofercie uzyskano na podstawie oświadczeń sprzedających. Załączony plan nieruchomości jest poglądowy.
Agencja WHITE LION INVESTMENTS jest objęta obowiązkiem ubezpieczenia odpowiedzialności cywilnej zawodowej. Posiadamy OC zgodne z Rozporządzeniem Ministra Finansów z dn. 26.04.2019 r. w sprawie obowiązkowego ubezpieczenia odpowiedzialności cywilnej pośrednika w obrocie nieruchomościami (Dz. U. z 2019 r., poz. 804).
Pobieramy wynagrodzenie w formie prowizji za wykonaną usługę pośrednictwa.
Bierzemy odpowiedzialność za bezpieczeństwo przeprowadzanych przez nas transakcji.