Mieszkanie na sprzedaż









Szczegóły ogłoszenia
- Symbol oferty MKI-MS-59955
- Typ oferty mieszkanie na sprzedaż
- Cena 870 000 zł
- Charakterystyka mieszkania 47 m2, 3 pokoje
- Budynek blok; rok budowy: 1967
- Rozkład mieszkania 3p piętro
- Media Ogrzewanie: C.O. miejskie; Woda: ciepła - miejska; Gaz: brak
- Bezpieczeństwo Rolety antywłamaniowe
- Balkon jest
- Dojazd asfaltowa/kostka
- Garaż miejsce postojowe przed budynkiem
- Ilość sypialni 2
- Instalacje wymienione
- Okna PCV
- Otoczenie działki zabudowane
- Plac zabaw Tak
- Stan lokalu wysoki standard
- Technologia budowlana rama H
- Winda Tak
Lokalizacja
- Adres mazowieckie, Warszawa, Mokotów
Opis nieruchomości
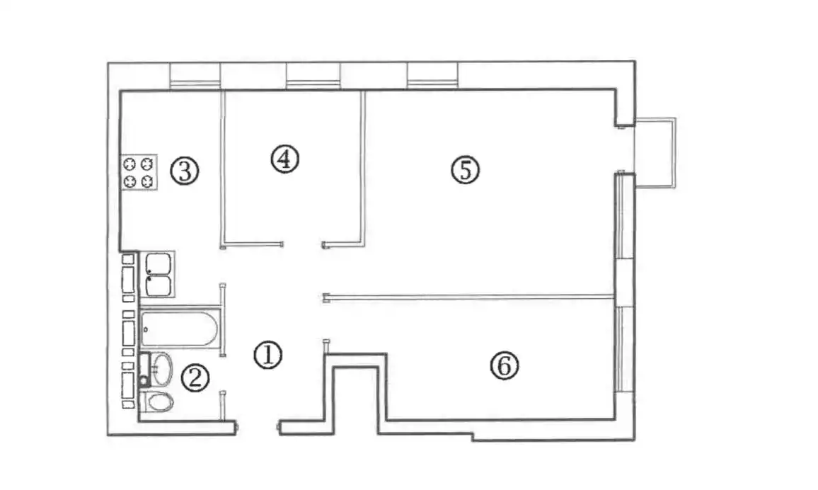
Na sprzedaż trzypokojowe mieszkanie z oddzielną kuchnią o powierzchni 47m2 wraz z całym wyposażeniem.
- Mieszkanie znajduje się na 3 piętrze.
- Klatka schodowa wraz z wejściem do bloku została wyremontowana w kwietniu tego roku, w bloku znajdują się dwie windy.
- Dookoła jest bardzo dużo terenów zielonych: Park Morskie Oko, Park Arkadia, Królikarnia, Warszawianka, korty tenisowe, Łazienki Królewskie – wszystko ok 10 minut spacerem.
- W pobliżu znajduję się szkoła podstawowa oraz przedszkole. Sklepy spożywcze takie jak Biedronka, Żabka, Carrefour Expres, warzywniaki.
- Idealnie skomunikowane, nowo powstała linia tramwajowa oraz autobusy.
--- W 2022 r. zrobiony był generalny remont mieszkania wraz z wymianą całej instalacji elektrycznej.
- W mieszkaniu znajdują się szafy w zabudowie wykonane na wymiar oraz sprzęt najwyższej klasy m.in. piekarnik Samsung Dual Cook, płyta indukcyjna oraz lodówka firmy Samsung, zmywarka Bosh.
- Całe wyposażenie mieszkania wraz z kanapą, łóżkiem sypialnianym, szafką RTV (bez telewizorów), stołem z krzesłami - zostaje w mieszkaniu.
- Także nie muszą się Państwo martwić o koszta związane z jego wyposażeniem.
- Mieszkanie jest gotowe do wprowadzenia od zaraz.
- Mieszkanie jest usytuowane bardziej na uboczu klatki, dalej od windy więc wszelkie odgłosy nie są słyszalne co zapewnia jego komfort.
- Drzwi zewnętrzne były wymieniane na wygłuszające hałasy z zewnątrz.
- Do mieszkania przynależy piwnica.
- Mieszkanie jest perełką, dużo zostało włożone w niego serca przy urządzaniu i planowaniu każdego kąta. Mam nadzieję że i Państwu przypadnie do gustu.
Serdecznie polecam i zapraszam na prezentację nieruchomości. Kontakt Wojciech Wodnicki, tel.: 501 100 545.