Mieszkanie na sprzedaż
890 000 zł
41 m2














1 / 14
Szczegóły ogłoszenia
- Symbol oferty ISP-MS-9615
- Typ oferty mieszkanie na sprzedaż
- Cena 890 000 zł
- Charakterystyka mieszkania 41 m2, 2 pokoje
- Budynek apartamentowiec
- Rozkład mieszkania 3p piętro
- Balkon jest
- Garaż garaż
- Ilość sypialni 1
- Winda Tak
Lokalizacja
- Adres mazowieckie, Warszawa, Bielany
Opis nieruchomości
Bielany | 2-pokoje | 41 m2 | Metro Młociny | Garaż
Na sprzedaż atrakcyjne 2-pokojowe mieszkanie o pow. 41 m2 przy ul. Jana Kasprowicza tuż obok stacji Metra Młociny.
Osiedle strzeżone i zamknięte z 2014 roku. Piętro 3/6 z windą.
Mieszkanie wykończone oraz umeblowane jak na zdjęciach.
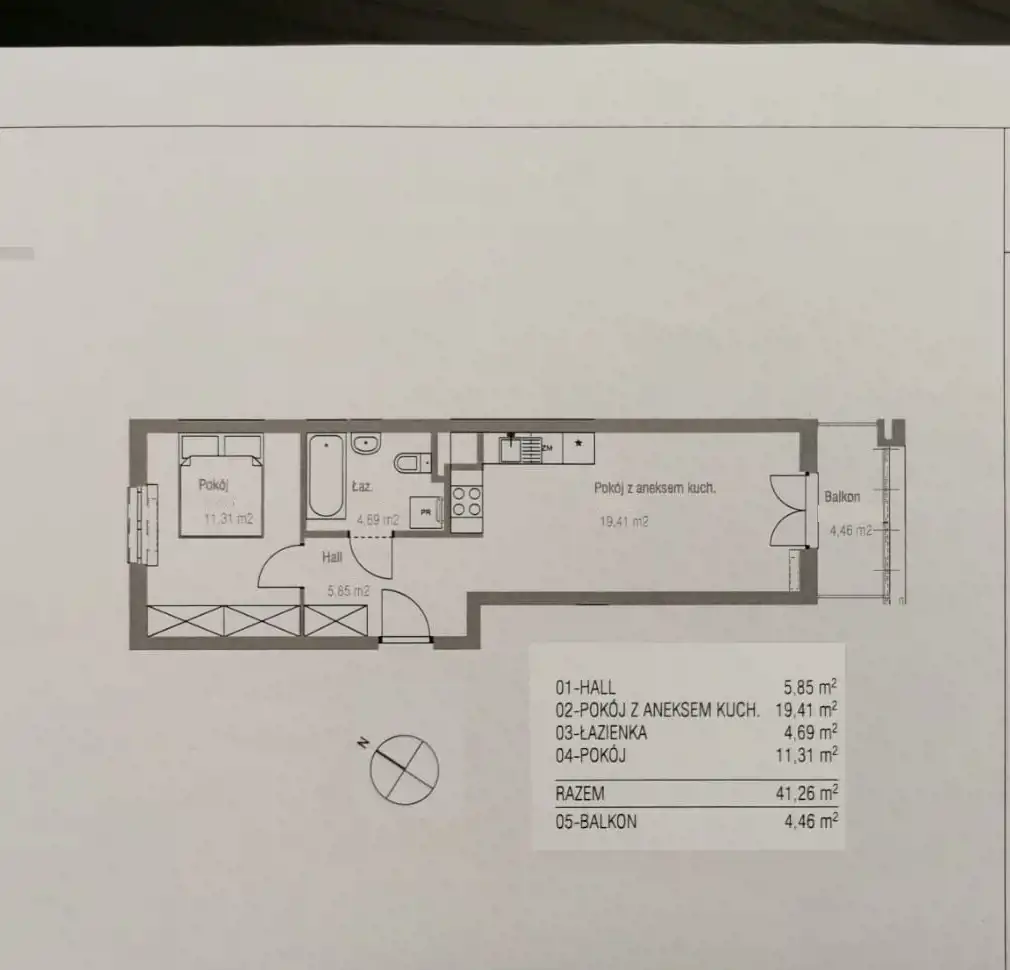
Układ pomieszczeń:
-Salon pow. 19,41 m2 wyposażony w rozkładaną narażoną kanapę, regał RTV. stół z krzesłami oraz wyjściem na balkon o pow. 4,46 m2.
-Aneks kuchenny wyposażony w szafki w zabudowie na wymiar, lodówko-zamrażarkę, płytę indukcyjną, mikrofalówkę, zmywarkę, okap kuchenny. Nie ma piekarnika - ale jest miejsce na jego wstawienie.
-Sypialnia pow. 11,31 m2- wyposażona rozkładaną narożną sofę, regał RTV oraz dużą, głęboką szafę w zabudowie.
-Łazienka pow. 4,69 m2- wyposażona w kabinę prysznicową, pralkę, umywalkę. WC.
-Przedpokój pow. 5,85 m2- wyposażony w szafę w zabudowie oraz szafkę na buty.
Lokalizacja:
Idealna lokalizacja tuż obok Metra Młociny, Galerii Młociny. Obok osiedla są również liczne przystanku autobusowe oraz tramwajowe. Blisko jest również sklep Lidl. W niedalekiej odległości znajduje się również Las Bielański.
Cena mieszkania - 890.000 PLN.
Mieszkanie posiada księgę wieczystą.
Opcjonalny zakup (nieobligatoryjny):
- 70 000 PLN 1-miejsce postojowe w garażu podziemnym na poziomie -1.
Miejsce parkingowe ma osobną księgę wieczystą.
Czynsz adm. wynosi 503 PLN - 1 osoba.
Zapraszamy na prezentację mieszkania!
Powyższa oferta ma charakter informacyjny i nie stanowi oferty handlowej w rozumieniu art. 66 §1 Kodeksu Cywilnego.
Na sprzedaż atrakcyjne 2-pokojowe mieszkanie o pow. 41 m2 przy ul. Jana Kasprowicza tuż obok stacji Metra Młociny.
Osiedle strzeżone i zamknięte z 2014 roku. Piętro 3/6 z windą.
Mieszkanie wykończone oraz umeblowane jak na zdjęciach.
Układ pomieszczeń:
-Salon pow. 19,41 m2 wyposażony w rozkładaną narażoną kanapę, regał RTV. stół z krzesłami oraz wyjściem na balkon o pow. 4,46 m2.
-Aneks kuchenny wyposażony w szafki w zabudowie na wymiar, lodówko-zamrażarkę, płytę indukcyjną, mikrofalówkę, zmywarkę, okap kuchenny. Nie ma piekarnika - ale jest miejsce na jego wstawienie.
-Sypialnia pow. 11,31 m2- wyposażona rozkładaną narożną sofę, regał RTV oraz dużą, głęboką szafę w zabudowie.
-Łazienka pow. 4,69 m2- wyposażona w kabinę prysznicową, pralkę, umywalkę. WC.
-Przedpokój pow. 5,85 m2- wyposażony w szafę w zabudowie oraz szafkę na buty.
Lokalizacja:
Idealna lokalizacja tuż obok Metra Młociny, Galerii Młociny. Obok osiedla są również liczne przystanku autobusowe oraz tramwajowe. Blisko jest również sklep Lidl. W niedalekiej odległości znajduje się również Las Bielański.
Cena mieszkania - 890.000 PLN.
Mieszkanie posiada księgę wieczystą.
Opcjonalny zakup (nieobligatoryjny):
- 70 000 PLN 1-miejsce postojowe w garażu podziemnym na poziomie -1.
Miejsce parkingowe ma osobną księgę wieczystą.
Czynsz adm. wynosi 503 PLN - 1 osoba.
Zapraszamy na prezentację mieszkania!
Powyższa oferta ma charakter informacyjny i nie stanowi oferty handlowej w rozumieniu art. 66 §1 Kodeksu Cywilnego.
Nota prawna
Opis oferty zawarty na stronie internetowej sporządzany jest na podstawie oględzin nieruchomości oraz informacji uzyskanych od właściciela, może podlegać aktualizacji i nie stanowi oferty określonej w art. 66 i następnych K.C.
Kalkulator kredytowy
Formularz kontaktowy