Mieszkanie na sprzedaż
890 000 zł
63 m2




















1 / 20
Szczegóły ogłoszenia
- Symbol oferty SOL-MS-147595
- Typ oferty mieszkanie na sprzedaż
- Cena 890 000 zł
- Charakterystyka mieszkania 63 m2, 3 pokoje
- Budynek blok; rok budowy: 1981
- Rozkład mieszkania 1p piętro
- Balkon jest
- Czynsz Czynsz letni: 790 zł
- Okna PCV
- Stan lokalu do remontu
- Technologia budowlana wielka płyta
- Winda Tak
Lokalizacja
- Adres mazowieckie, Warszawa, Ursynów
Opis nieruchomości
3 Pokoje przy samym Metrze Imielin – Idealne dla Rodziny lub pod Inwestycję!
- Lokalizacja : Tuż przy stacji Metra Imielin oraz Urzędu Dzielnicy Ursynów.
- Dwustronny Układ: Mieszkanie bardzo widne z ekspozycją wschód-zachód, co gwarantuje naturalne światło przez cały dzień.
- Komfortowe 1. Piętro: Idealne rozwiązanie w 10-piętrowym bloku.
- Infrastruktura: Dosłownie pod ręką szkoła, przedszkole oraz tętniący życiem pasaż sklepów przy Al. KEN.
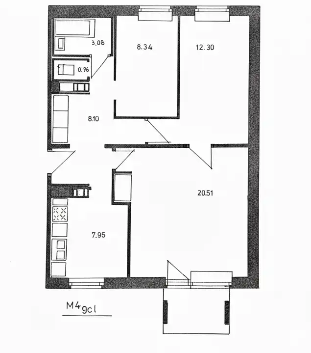
Mieszkanie jest niezwykle ustawne i funkcjonalne:
- Salon (20,5 m²): Przestronny, z bezpośrednim wyjściem na duży balkon.
- Sypialnia 1 (12,30 m²): Idealna na sypialnię główną.
- Sypialnia 2 (8,34 m²): Doskonała jako pokój dziecięcy lub gabinet.
- Kuchnia (7,95 m²): Oddzielna i widna.
- Łazienka (3 m²) & Osobna Toaleta (0,95 m²): Wygoda dla domowników.
- Przedpokój (10 m²): Z dużą przestrzenią do przechowywania.
Nota prawna
Opis oferty zawarty na stronie internetowej sporządzany jest na podstawie oględzin nieruchomości oraz informacji uzyskanych od właściciela, może podlegać aktualizacji i nie stanowi oferty określonej w art. 66 i następnych K.C.
Kalkulator kredytowy
Formularz kontaktowy