Mieszkanie na sprzedaż
















Szczegóły ogłoszenia
- Symbol oferty KNG-MS-7282
- Typ oferty mieszkanie na sprzedaż
- Cena 895 000 zł
- Charakterystyka mieszkania 70.7 m2, 4 pokoje
- Budynek blok; rok budowy: 1981
- Rozkład mieszkania 4p piętro
- Media Ogrzewanie: C.O. Z SIECI MIEJSKIEJ; Woda: ciepła - miejska; Gaz: tak - miejski
- Balkon jest
- Czynsz Czynsz letni: 1455 zł
- Instalacje częściowo wymienione
- Okna PCV
- Plac zabaw Tak
- Stan lokalu częściowo po remoncie
- Technologia budowlana beton, płyta
- Umeblowanie umeblowane
Lokalizacja
- Adres mazowieckie, Warszawa, Ursynów
Opis nieruchomości
Prezentuję przestronne, 4 pokojowe mieszkanie na warszawskim Ursynowie przy spokojnej, osiedlowej uliczce Miklaszewskiego. To świetne mieszkanie dla dużej rodziny. Sprawdzi się również jako rentowna inwestycja na wynajem.
MIESZKANIE
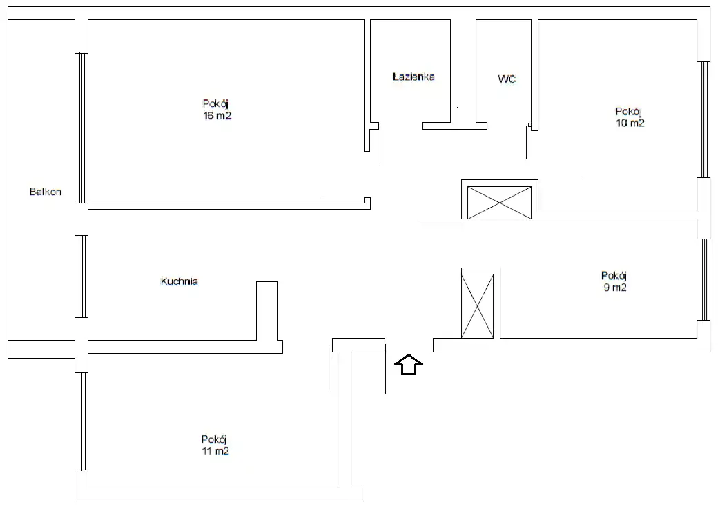
Na 70,70 m2 znajdują się:
- 1 pokój 16 m2 z balkonem,
- 1 pokój 11 m2,
- 1 pokój 10 m2,
- 1 pokój 9 m2,
- duża kuchnia z jadalnią,
- łazienka z prysznicem,
- WC z pralnią,
- centralny przedpokój z szafą wnękową.
Mieszkanie jest przestronne i bardzo funkcjonalnie rozplanowane. Układ pomieszczeń i ścian działowych umożliwia wykonanie zmian zgodnie z preferencją nowego właściciela. Możliwe jest np. otwarcie kuchni na salon dzięki czemu uzyskamy dużą i widną strefę dzienną, przy zachowaniu trzech sypialni. W lokalu w 2021 r. zmodernizowano instalację elektryczną i wyremontowano kuchnię oraz przedpokój. Po odświeżeniu lokal jest gotowy do zamieszkania.
Dostępność: ze względu na trwające umowy najmu lokal będzie dostępny dla nabywcy indywidualnego od 1 września 2026 r. lub "od zaraz" w przypadku inwestora zainteresowanego przejęciem umów najmu.
Uregulowany stan prawny: 1 właściciel, spółdzielcze własnościowe prawo do lokalu z księgą wieczystą i możliwością zakupu na kredyt.
Łatwe parkowanie: dla mieszkańców dostępny jest monitorowany parking osiedlowy zamykany szlabanem.
BUDYNEK
Mieszkanie usytuowane jest na IV piętrze w IV piętrowym, dobrze utrzymanym budynku bez windy, który jest zlokalizowany z dala od zgiełku ruchliwych ulic i w otoczeniu osiedlowej zieleni. Budynek wybudowano w 1981 roku, a następnie zmodernizowano i ocieplono. Poprowadzono również nową instalację gazową. Tylko 2 mieszkania na piętrze zapewniają prywatność i komfort. Do dyspozycji mieszkańców jest pomieszczenie na rowery i wózki oraz piwnica.
OKOLICA
Ursynów, a w szczególności okolica ulicy Miklaszewskiego to przestrzeń stworzona dla rodzin z dziećmi. Oferuje bezpieczne sąsiedztwo, liczne przedszkola i szkoły oraz pełną infrastrukturę sportowo-edukacyjną, w tym basen kryty w zasięgu krótkiego spaceru. Codzienną wygodę zapewnia bliskość stacji metra Imielin, która pozwala na błyskawiczne dotarcie do centrum miasta oraz bogatej oferty handlowo-kulturalnej dzielnicy.
Dla inwestora to lokalizacja strategiczna, gwarantująca stały popyt najemców dzięki sąsiedztwu SGGW i Uczelni VISTULA oraz szybkiemu połączeniu z biznesowym sercem Mokotowa. Stabilność zysku i atrakcyjna cena czyni tę nieruchomość bezpieczną lokatą kapitału.
Nie zwlekaj, zadzwoń i umów się na prezentację! Oferta na wyłączność Digital Broker.
- Decydując się na zakup tej nieruchomości, zyskujesz kompleksową obsługę, w tym bezpłatną pomoc w uzyskaniu kredytu hipotecznego.
- Współpracując z Digital Broker, otrzymujesz rabat na usługi notarialne.