Mieszkanie na sprzedaż





















Szczegóły ogłoszenia
- Symbol oferty WLI-MS-1309
- Typ oferty mieszkanie na sprzedaż
- Cena 899 000 zł
- Charakterystyka mieszkania 55.85 m2, 2 pokoje
- Budynek apartamentowiec; rok budowy: 2020
- Rozkład mieszkania 1p piętro
- Media Ogrzewanie: C.O. GAZOWE; Woda: ciepła - miejska
- Balkon duży
- Czynsz Czynsz letni: 800 zł
- Dojazd ASFALTOWA
- Garaż garaż podziemny
- Ilość sypialni 1
- Instalacje ELEKTRYCZNA, WODNA, GAZOWA
- Okna PCV 3 szyby, ciepły montaż
- Otoczenie las
- Stan lokalu bardzo dobry
- Technologia budowlana mieszana
- Umeblowanie pełne
- Winda Tak
Lokalizacja
- Adres mazowieckie, Warszawa, Wawer
Opis nieruchomości
Mam przyjemność zaprezentować Państwu wyjątkowe, dwupokojowe mieszkanie o powierzchni 55,85 m², zlokalizowane na pierwszym piętrze kameralnego, dwupiętrowego apartamentowca z windą przy ul. Kościuszkowców 7 w Warszawie – na pograniczu dzielnic Wawer i Anin.
NAJWAŻNIEJSZE ATUTY
- Funkcjonalny układ pomieszczeń oraz ponad 12-metrowy taras z eleganckimi zasłonami zapewniającymi komfort i prywatność.
- Wysoki standard wykończenia – piękny dębowy parkiet, wysokiej klasy sprzęt AGD.
- Kameralna inwestycja – tylko 12 lokali, zadbane części wspólne, eleganckie wykończenia.
- Zielony ogród do dyspozycji mieszkańców.
- Lokalizacja łącząca bliskość natury z pełną miejską infrastrukturą.
- Dwa miejsca postojowe w garażu podziemnym oraz komórka lokatorska.
OPIS MIESZKANIA
Przytulna, elegancka przestrzeń została zaprojektowana z myślą o wygodzie i estetyce. Mieszkanie jest w pełni umeblowane i gotowe do zamieszkania.
W skład lokalu wchodzą:
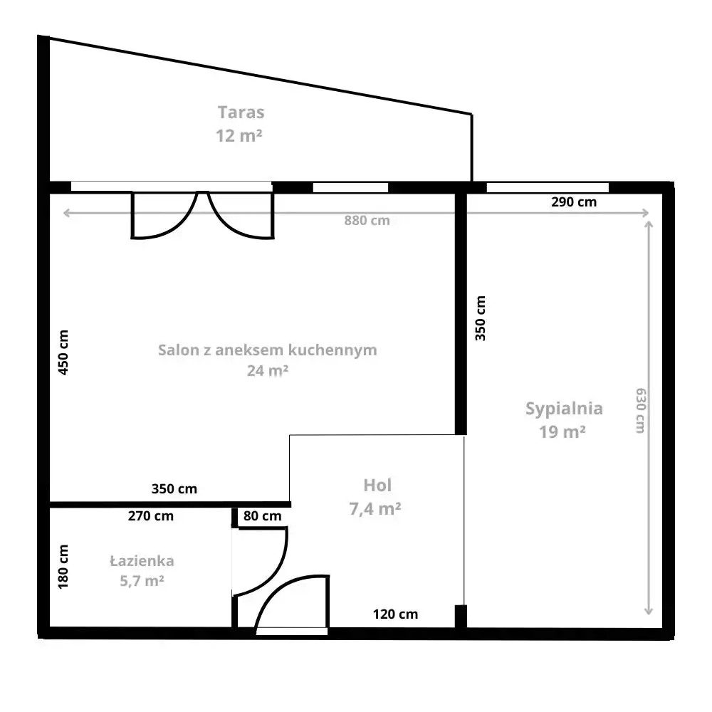
- Salon z aneksem kuchennym – ok. 24 m².
- Sypialnia – ok. 19 m², z możliwością wydzielenia garderoby lub miejsca do pracy.
- Łazienka z prysznicem – ok. 5,7 m².
- Hol – ok. 7,4 m².
- Taras – ponad 12 m², częściowo osłonięty zasłonami, tworzący dodatkową przestrzeń do relaksu, posiłków lub pracy w ciepłe dni.
To idealna propozycja dla singla, pary lub – po drobnych zmianach – rodziny 2+1.
OPIS INWESTYCJI
Nowoczesny, kameralny apartamentowiec z 2020 roku, w którym znajduje się zaledwie 12 lokali. Budynek położony jest tuż przy Rezerwacie im. Jana III Sobieskiego. Teren jest ogrodzony, chroniony i posiada pięknie utrzymany ogród dla mieszkańców.
OPIS LOKALIZACJI
To idealne miejsce dla osób ceniących ciszę, naturę i komfort życia, z doskonałą infrastrukturą i szybkim dojazdem do centrum.
- W pobliżu znajdują się przystanki autobusowe oraz stacja Warszawa Gocławek (ok. 8 minut pieszo), skąd kolejką SKM dojazd do Śródmieścia zajmuje ok. 17 minut.
- Bliskość Trasy Siekierkowskiej i Wału Miedzeszyńskiego gwarantuje świetne połączenia z pozostałymi dzielnicami miasta.
- Okolica obfituje w tereny zielone – bliskość Mazowieckiego Parku Krajobrazowego, liczne ścieżki rowerowe i lasy zachęcają do aktywnego wypoczynku i spacerów. To idealna lokalizacja dla rodzin, miłośników natury i osób poszukujących relaksu z dala od zgiełku centrum.
- W sąsiedztwie znajdują się szkoły, przedszkola, sklepy, restauracje, apteki i punkty usługowe. W pobliżu zlokalizowane są również większe centra handlowe oraz placówki medyczne, co zapewnia wygodę codziennego życia.
KOMUNIKACJA
Linie autobusowe, które kursują w pobliżu: 115, 173, 402, 502, 520, 125.
Stacja Warszawa - Gocławek — ok. 8 minut pieszo — linie S1 (SKM / szybka kolej miejska, R1,R3).
INFORMACJE DODATKOWE
- Dwa miejsca postojowe w garażu podziemnym + komórka lokatorska - płatne dodatkowo 100 000zł.
- Czynsz administracyjny ok. 800zł (obejmuje opłaty za miejsca postojowe, komórkę, wodę, ogrzewanie, fundusz remontowy, wywóz odpadów, ochronę i administracje).
- Budynek z windą.
STAN PRAWNY
- Pełna własność - możliwość zakupu kredytowanego.
Z prawdziwą przyjemnością przedstawię Państwu to eleganckie mieszkanie – idealne dla osób ceniących ponadczasowy styl i najwyższy komfort życia.
Joanna Wiercińska
Premium Property Advisor
wiercinska@wli.pl
Niniejsze ogłoszenie jest wyłącznie informacją i nie stanowi oferty w rozumieniu art. 66 § 1 Kodeksu Cywilnego. Dokładamy wszelkich starań, aby informacje przedstawione w naszych ofertach były aktualne i rzetelne. Informacje zawarte w ofercie uzyskano na podstawie oświadczeń sprzedających. Załączony plan nieruchomości jest poglądowy.
Agencja WHITE LION INVESTMENTS jest objęta obowiązkiem ubezpieczenia odpowiedzialności cywilnej zawodowej. Posiadamy OC zgodne z Rozporządzeniem Ministra Finansów z dn. 26.04.2019 r. w sprawie obowiązkowego ubezpieczenia odpowiedzialności cywilnej pośrednika w obrocie nieruchomościami (Dz. U. z 2019 r., poz. 804).
Pobieramy wynagrodzenie w formie prowizji za wykonaną usługę pośrednictwa.
Bierzemy odpowiedzialność za bezpieczeństwo przeprowadzanych przez nas transakcji.