Mieszkanie na sprzedaż
910 000 zł
55 m2
















1 / 16
Szczegóły ogłoszenia
- Symbol oferty DAS-MS-2505
- Typ oferty mieszkanie na sprzedaż
- Cena 910 000 zł
- Charakterystyka mieszkania 55.26 m2, 2 pokoje
- Budynek nowe budownictwo; rok budowy: 2001
- Rozkład mieszkania 3p piętro
- Media Ogrzewanie: C.O. miejskie; Woda: tak - miejska; Gaz: tak - miejski
- Balkon jest
- Czynsz Czynsz letni: 930 zł
- Dojazd asfalt
- Garaż garaż pod budynkiem
- Ilość sypialni 1
- Instalacje nowe
- Okna PCV
- Plac zabaw Tak
- Stan lokalu wysoki standard
- Technologia budowlana cegła
- Winda Tak
Lokalizacja
- Adres mazowieckie, Warszawa m., Warszawa
Opis nieruchomości
URSYNÓW – Kabaty ul. Stryjeńskich
Atrakcyjne dwupokojowe mieszkanie położone 9 min od stacji metra Kabaty. Lokalizacja na zamkniętym i chronionym osiedlu w pobliżu lokalnego bazarku, około 700 m od lasu Kabackiego.
Mieszkanie o przyjemnej aranżacji, widne i słoneczne. Spokojne i kulturalne sąsiedztwo.
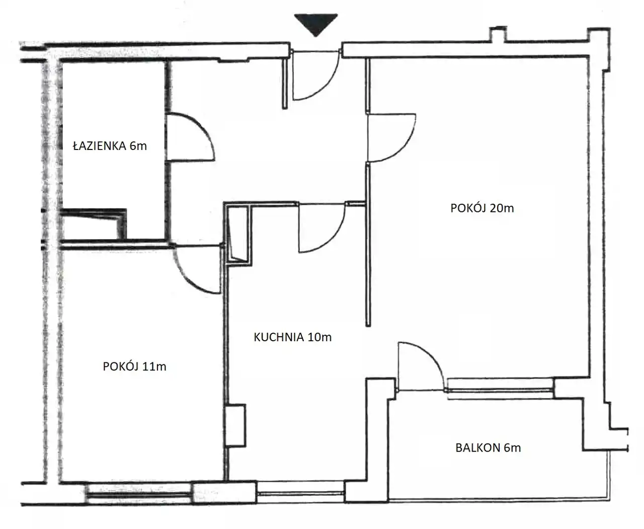
ROZKŁAD POMIESZCZEŃ
Pokoje 20m i 11m (okna od zachodu) - na podłogach panele podłogowe, z większego wyjście na balkon 6m.
Kuchnia 10m (okna od zachodu) - glazura, terakota, meble pod wymiar z AGD: lodówko-zamrażarka, zmywarka, kuchnia gazowo-elektryczna, okap, stół + 3 taborety. Do kuchni wejście z przedpokoju, dodatkowe przejście z kuchni do salonu (wnęka wielkości drzwi).
Łazienka 6m - glazura, terakota, wanna, szafkoumywalka, wc.
Przedpokój 7m - terakota, szafa w stałej zabudowie.
MIEJSCE POSTOJOWE
Do mieszkania przynależy miejsce postojowe w hali garażowej pod budynkiem (płatne dodatkowo 40.000 PLN).
BUDYNEK
Budynek (2001 rok, cegła, winda, osiedle zamknięte i chronione) w bardzo dobrym stanie, z bardzo zadbanym wewnętrznym patio.
Spokojne sąsiedztwo, czysta i przestronna klatka schodowa.
STAN PRAWNY i OPŁATY EKSPLOATACYJNE
Pełna własność - księga wieczysta bez obciążeń (możliwość sfinansowania zakupu kredytem hipotecznym).
Grunt pod budynkiem we własności.
Czynsz za mieszkanie wynosi 930,31 PLN z zawartym funduszem remontowym, opłatą za miejsce parkingowe oraz zaliczkami na media (woda + ogrzewanie + wywóz śmieci).
Pełna galeria zdjęć nieruchomości na stronie www daszkiewicz pl
OFERTA NA WYŁĄCZNOŚĆ - pośrednik odpowiedzialny: Marcin Daszkiewicz 504-217-464 (Licencja Zawodowa nr 6537).
Powyższa informacja nie stanowi oferty w rozumieniu Kodeksu Cywilnego.
Atrakcyjne dwupokojowe mieszkanie położone 9 min od stacji metra Kabaty. Lokalizacja na zamkniętym i chronionym osiedlu w pobliżu lokalnego bazarku, około 700 m od lasu Kabackiego.
Mieszkanie o przyjemnej aranżacji, widne i słoneczne. Spokojne i kulturalne sąsiedztwo.
ROZKŁAD POMIESZCZEŃ
Pokoje 20m i 11m (okna od zachodu) - na podłogach panele podłogowe, z większego wyjście na balkon 6m.
Kuchnia 10m (okna od zachodu) - glazura, terakota, meble pod wymiar z AGD: lodówko-zamrażarka, zmywarka, kuchnia gazowo-elektryczna, okap, stół + 3 taborety. Do kuchni wejście z przedpokoju, dodatkowe przejście z kuchni do salonu (wnęka wielkości drzwi).
Łazienka 6m - glazura, terakota, wanna, szafkoumywalka, wc.
Przedpokój 7m - terakota, szafa w stałej zabudowie.
MIEJSCE POSTOJOWE
Do mieszkania przynależy miejsce postojowe w hali garażowej pod budynkiem (płatne dodatkowo 40.000 PLN).
BUDYNEK
Budynek (2001 rok, cegła, winda, osiedle zamknięte i chronione) w bardzo dobrym stanie, z bardzo zadbanym wewnętrznym patio.
Spokojne sąsiedztwo, czysta i przestronna klatka schodowa.
STAN PRAWNY i OPŁATY EKSPLOATACYJNE
Pełna własność - księga wieczysta bez obciążeń (możliwość sfinansowania zakupu kredytem hipotecznym).
Grunt pod budynkiem we własności.
Czynsz za mieszkanie wynosi 930,31 PLN z zawartym funduszem remontowym, opłatą za miejsce parkingowe oraz zaliczkami na media (woda + ogrzewanie + wywóz śmieci).
Pełna galeria zdjęć nieruchomości na stronie www daszkiewicz pl
OFERTA NA WYŁĄCZNOŚĆ - pośrednik odpowiedzialny: Marcin Daszkiewicz 504-217-464 (Licencja Zawodowa nr 6537).
Powyższa informacja nie stanowi oferty w rozumieniu Kodeksu Cywilnego.
Nota prawna
Opis oferty zawarty na stronie internetowej sporządzany jest na podstawie oględzin nieruchomości oraz informacji uzyskanych od właściciela, może podlegać aktualizacji i nie stanowi oferty określonej w art. 66 i następnych K.C.
Kalkulator kredytowy
Formularz kontaktowy