Mieszkanie na sprzedaż












Szczegóły ogłoszenia
- Symbol oferty LFT-MS-8214
- Typ oferty mieszkanie na sprzedaż
- Cena 917 000 zł
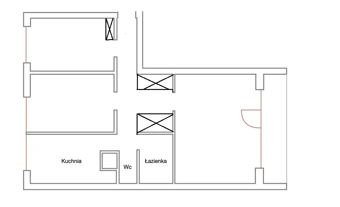
- Charakterystyka mieszkania 54 m2, 3 pokoje
- Budynek blok; rok budowy: 1976
- Rozkład mieszkania 5p piętro
- Media Ogrzewanie: centralne; Woda: ciepła - miejska; Gaz: brak
- Balkon duży
- Czynsz Czynsz letni: 690 zł
- Dojazd asfalt
- Ilość sypialni 2
- Instalacje nowe
- Okna PCV
- Otoczenie działki zabudowane
- Plac zabaw Tak
- Stan lokalu do wprowadzenia
- Technologia budowlana płyta
- Winda Tak
Lokalizacja
- Adres mazowieckie, Warszawa m., Warszawa
Opis nieruchomości
Dlaczego to mieszkanie jest dla Was?
- Po generalnym remoncie – gotowe do wprowadzenia
Mieszkanie zostało świeżo wyremontowane – z dbałością o detale i jakość materiałów. Na podłogach został położony parkiet. Nowe okna PCV, została wymieniona instalacja elektryczna. Nowoczesna zabudowa, neutralna kolorystyka. Sprzęty AGD są nowe i objęte gwarancją – wchodzicie i mieszkacie bez dodatkowych kosztów.
W CENIE WYKONANIE NA ŻYCZENIE KUPUJĄCEGO DRUGIEJ SZAFY ZABUDOWANEJ W PRZEDPOKOJU, SZAFY W MAŁEJ SYPIALNI ORAZ DO WYBORU W SALONIE LUB DUŻEJ SYPIALNI
-- Bliskość stacji metra M1 Wilanowska (12 min spacerkiem) zapewnia bezproblemowe połączenie komunikacyjne z każdą częścią miasta;
- Dzięki położeniu budynku, oraz usytuowaniu mieszkania będziesz mógł cieszyć oko otaczającym okolicę starodrzewem, oraz spokojnym sąsiedztwem;
- Rozkład mieszkania (do każdego z pokoi prowadzi osobne wejście) zapewni prywatność i komfort życia codziennego;
- Jasne, przestronne wnętrza
Dzięki dużej ilości okien do mieszkania wpada mnóstwo naturalnego światła. Jasne kolory wykończenia i funkcjonalny układ pomieszczeń sprawiają, że wnętrze wydaje się jeszcze bardziej przestronne.
- Funkcjonalny układ pomieszczeń
- Salonu z wyjściem na loggię ;
- Pokoju nr 1 ;
- Pokoju nr 2 ;
- Oddzielnej Kuchni ;
- Łazienki z wanną i funkcją prysznica
- WC;
- Przedpokoju.- Lokalizacja – wygodna i zielona
KOMUNIKACJA: oprócz stacji metra Wilanowska, w pobliżu są przystanki tramwajowe (linie 4,10), oraz autobusowe (linie 165, 174, 218).
INFRASTRUKTURA HANDLOWO-USŁUGOWA: w pieszym zasięgu jest kilka marketów (Carrefour, Biedronka), oraz małych sklepów spożywczych; Rossmann, piekarnie, kawiarnia, apteka, siłownia, a także niezbędne punkty usługowe.
Dojazd do Galerii Mokotów zajmuje jedynie 8 min autobusem.
Rodzice natomiast z pewnością docenią bliskość kilku placów zabaw, oraz przedszkola. Na weekendowe spacery można wybrać się do pobliskiego Potoku Służewieckiego.- Budynek
klatki schodowe są po remoncie. Windy zostały wymienione. Instalacje (piony wodno-kanalizacyjne), również są po wymianie. Budynek został objęty monitoringiem.
Jednym słowem - cicho, schludnie i bezpiecznie.
Budynkiem zarządza Wspólnota Mieszkaniowa.- Czynsz: 680 zł
STAN PRAWNY: odrębna własność z Księgą Wieczystą (przy zakupie możesz posiłkować się kredytem).
Do mieszkania przynależy piwnica.