Mieszkanie na wynajem




















Szczegóły ogłoszenia
- Symbol oferty SOL-MW-146843
- Typ oferty mieszkanie na wynajem
- Czynsz wynajmu 3 000 zł / miesiąc
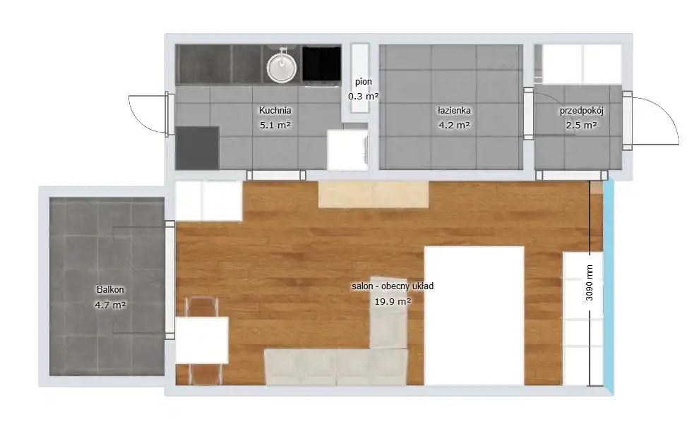
- Charakterystyka mieszkania 31.96 m2, 1 pokój
- Budynek apartamentowiec; rok budowy: 2013
- Rozkład mieszkania 2p piętro
- Media Ogrzewanie: C.O. miejskie; Woda: tak - miejska
- Balkon jest
- Czynsz Czynsz letni: 700 zł
- Kaucja 4000 zł
- Okna DREWNIANE NOWY TYP
- Otoczenie osiedle
- Winda Tak
Lokalizacja
- Adres mazowieckie, Warszawa, Bielany
Opis nieruchomości
Kawalerka znajduje się w apartamentowcu przy ul. Sokratesa 9 z dużym balkonem w super lokalizacji przy Metrze Młociny na Bielanach.
Największym atutem mieszkania jest jego doskonała lokalizacja w bardzo dobrze skomunikowanym miejscu:
Metro Młociny 850 m, tramwaj 200 m, autobus 200 m.
Dojazd metrem do Centrum zajmuje tylko 20 minut !
Jednocześnie w pobliżu jest wszystko co potrzebne do życia, sklepy, piekarnie, kawiarnie, restauracje, usługi, Biedronka, Rossmann i Lidl w pobliżu, do Galerii Młociny 2 przystanki tramwajem.
Dodatkowo jest bardzo blisko do zielonych terenów rekreacyjnych: Stawy Brustmana 400 m, Las Lindego 1 km, Las Bielański 2 km, Puszcza Kampinoska 5 km.
Doskonała lokalizacja dla studentów, szybki dojazd do różnych uczelni dzięki doskonałej komunikacji. Przykładowo metrem dojedziemy do stacji Metro Nowy Świat - Uniwersytet Warszawski, Metro Politechnika - Politechnika Warszawska, Metro Pole Mokotowskie- SGH, dodatkowo tramwaj i autobus do UKSW.
Mieszkanie znajduje się w apartamentowcu z 2013 roku o podwyższonym standardzie na zamkniętym osiedlu z ochroną i recepcją. Do wyłącznej dyspozycji mieszkańców jest sauna i siłownia. Na terenie osiedla jest bardzo zadbane zielone patio, oraz miejsce do przechowywania rowerów.
Mieszkanie o powierzchni 31,93 m2 znajduje się na 2 piętrze z windą. Ekspozycja południowa.
Składa się z pokoju dziennego 20 m2, kuchni 5 m2, łazienki 4 m2, oraz przedpokoju 2,6 m2 .
Mieszkanie jest słoneczne, zadbane, a przede wszystkim funkcjonalne. Gotowe do zamieszkania.
Czynsz wynosi 3000 pln + opłaty eksploatacyjne:
czynsz administracyjny do Wspólnoty 700 pln + energia według faktury.
Kaucja 4000 pln. Umowa na minimum 12 miesięcy, najem okazjonalny. Wynajem bez zwierząt.
Można wynająć dodatkowo miejsce parkingowe w garażu podziemnym.
Zapraszam do prezentacji mieszkania. Klucze w Agencji.