Mieszkanie na sprzedaż


















Szczegóły ogłoszenia
- Symbol oferty ARE-MS-825
- Typ oferty mieszkanie na sprzedaż
- Cena 540 000 zł
- Charakterystyka mieszkania 45.1 m2, 2 pokoje
- Budynek blok; rok budowy: 2007
- Rozkład mieszkania 2p piętro
- Media Ogrzewanie: C.O. miejskie; Woda: tak - miejska; Gaz: tak - miejski
- Balkon średni
- Czynsz Czynsz letni: 487 zł
- Okna PCV
- Stan lokalu po remoncie
Lokalizacja
- Adres podlaskie, Wasilków, Wasilków
Opis nieruchomości
Komfortowe mieszkanie 2-pokojowe po remoncie | 45,1 m² | Wasilków, ul. Krucza
Na sprzedaż przytulne i funkcjonalne mieszkanie o powierzchni 45,1 m², zlokalizowane na II piętrze w nowoczesnym budynku z 2007 roku w spokojnej części Wasilkowa przy ul. Kruczej.
Nieruchomość przeszła remont. W sypialni i przedpokoju znajdują się duże szafy garderobiane. Kuchnia jest przygotowana do własnej aranżacji. Łazienka duża z wanną połączona z WC.
To doskonała propozycja zarówno dla osób szukających pierwszego mieszkania, jak i dla inwestorów poszukujących nieruchomości pod wynajem.
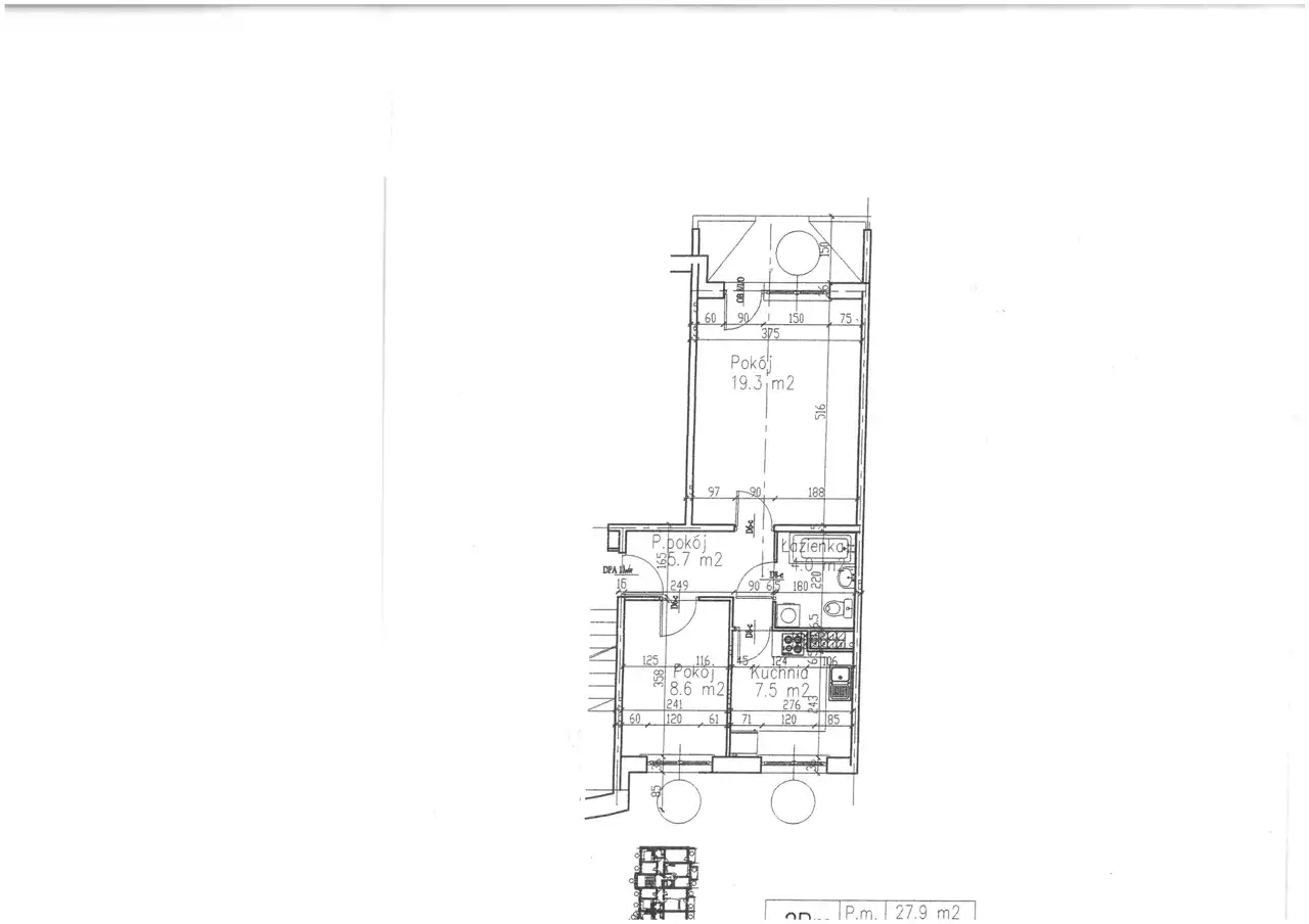
Układ pomieszczeń
Mieszkanie wyróżnia się funkcjonalnym i wygodnym rozkładem pomieszczeń:
-
przestronny salon – 19,3 m²
-
komfortowa sypialnia – 8,6 m²
-
oddzielna kuchnia – 7,5 m²
-
przedpokój – 5,7 m²
-
łazienka z WC – 4 m²
Atuty nieruchomości
✔ mieszkanie po remoncie – gotowe do wprowadzenia
✔ niski czynsz – 487 zł
✔ budynek z 2007 roku
✔ funkcjonalny rozkład pomieszczeń
✔ dostępne od ręki
Lokalizacja
Nieruchomość znajduje się w przyjaznej i zielonej okolicy. W najbliższym otoczeniu znajdują się sklepy (m.in. Żabka), place zabaw, skatepark oraz liczne tereny zielone sprzyjające spacerom i aktywnemu wypoczynkowi. Lokalizacja zapewnia komfort życia oraz szybki dostęp do codziennej infrastruktury.
Cena: 540 000 zł (do negocjacji)
Oferta dostępna wyłącznie w naszym biurze nieruchomości.
Zapraszam serdecznie do kontaktu oraz na bezpłatną prezentację mieszkania, podczas której będzie można w pełni poznać potencjał tej nieruchomości.