Mieszkanie na sprzedaż
439 000 zł
44 m2















1 / 15
Szczegóły ogłoszenia
- Symbol oferty YNK-MS-2666
- Typ oferty mieszkanie na sprzedaż
- Cena 439 000 zł
- Charakterystyka mieszkania 44.4 m2, 2 pokoje
- Budynek blok
- Rozkład mieszkania 1p piętro
- Media Ogrzewanie: miejskie; Woda: tak - miejska
- Balkon jest
- Dojazd asfalt
- Instalacje wymienione
- Okna PCV
- Plac zabaw Tak
- Stan lokalu do wprowadzenia
Lokalizacja
- Adres pomorskie, Wejherowo
Opis nieruchomości
Przytulne 2 pokoje w sercu Wejherowa – po remoncie, z balkonem, gotowe do zamieszkania!
Szukasz mieszkania, do którego możesz wprowadzić się od razu – bez remontów, stresu i dodatkowych kosztów?
Ta oferta spełni oczekiwania zarówno singla, pary, jak i inwestora pod wynajem.
Na sprzedaż funkcjonalne, słoneczne mieszkanie 2-pokojowe o powierzchni 44,40 m², położone w centrum Wejherowa, przy ul. Osiedle Kaszubskie 13.
Lokalizacja, która daje wygodę na co dzień
Ścisłe centrum miasta zapewnia szybki dostęp do wszystkiego, co potrzebne:
- stacja SKM i przystanki autobusowe
- sklepy, punkty usługowe, Centrum Kaszuby
- szkoły, przedszkola, przychodnia
- tereny spacerowe i pełna infrastruktura miejska
Mieszkanie znajduje się na 1. piętrze czteropiętrowego, ocieplonego bloku z lat 70.
Do lokalu przynależy piwnica (3,20 m²), a mieszkańcy mają dostęp do suszarni oraz rowerowni.
Standard – gotowe do zamieszkania
Lokal przeszedł kapitalny remont w 2021r.:
- wymienione wszystkie instalacje
- nowe okna PCV
- nowoczesne, spójne wykończenie
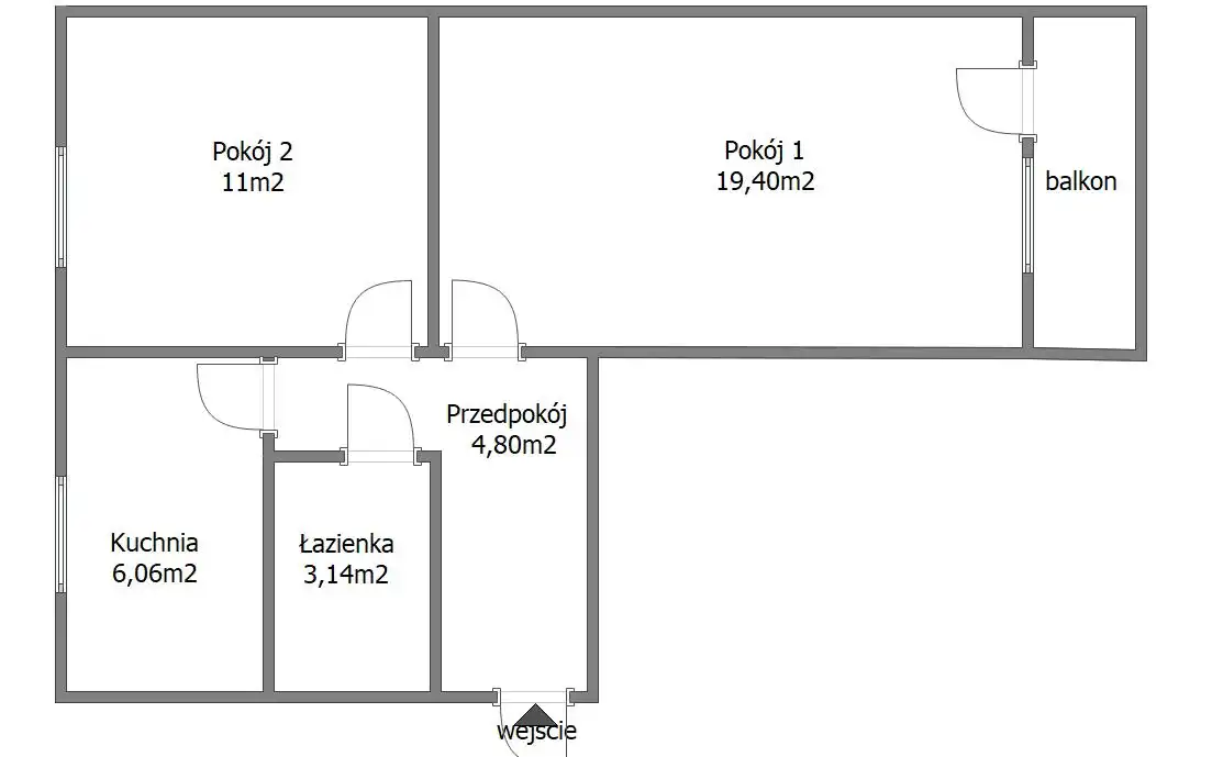
Przemyślany układ pomieszczeń
- przestronny salon (19,40 m²) z wyjściem na balkon
- ustawna sypialnia (11 m²)
- oddzielna kuchnia z oknem (6,06 m²) – w pełni wyposażona w AGD
- łazienka (3,14 m²) z kabiną prysznicową
- funkcjonalny przedpokój (4,80 m²) z zabudową
Informacje praktyczne
- forma własności: pełna własność, brak obciążeń w KW
- ogrzewanie i ciepła woda: miejskie
- koszty eksploatacyjne:
- ok. 570 zł latem
- ok. 340 zł zimą (dodatkowo za ogrzewanie) – po okresie grzewczym zwroty
(w tym: woda, śmieci, fundusz remontowy, sprzątanie klatki)
Zapewniamy kompleksową obsługę transakcji, bezpieczeństwo prawne oraz pomoc w uzyskaniu kredytu hipotecznego – współpracujemy z kilkoma bankami i przeprowadzimy Cię przez cały proces.
Nie zwlekaj – takie mieszkania w tej lokalizacji sprzedają się szybko!
Zadzwoń i umów się na prezentację:
Beata – 730 980 150
Ogłoszenie ma charakter informacyjny i nie stanowi oferty w rozumieniu Kodeksu Cywilnego.
Nota prawna
Opis oferty zawarty na stronie internetowej sporządzany jest na podstawie oględzin nieruchomości oraz informacji uzyskanych od właściciela, może podlegać aktualizacji i nie stanowi oferty określonej w art. 66 i następnych K.C.
Kalkulator kredytowy
Formularz kontaktowy