Mieszkanie na sprzedaż
599 000 zł
59 m2


















1 / 18
Szczegóły ogłoszenia
- Symbol oferty YNK-MS-2625
- Typ oferty mieszkanie na sprzedaż
- Cena 599 000 zł
- Charakterystyka mieszkania 58.5 m2, 3 pokoje
- Budynek blok
- Rozkład mieszkania 2p piętro
- Media Ogrzewanie: miejskie; Woda: tak - miejska
- Balkon duży
- Dojazd asfalt
- Okna PCV
- Stan lokalu do wprowadzenia
Lokalizacja
- Adres pomorskie, pucki, Władysławowo
Opis nieruchomości
Słoneczne 3-pokojowe mieszkanie z dużym balkonem i widokiem na panoramę Władysławowa – tylko 300 m od plaży!
Władysławowo, ul. Abrahama
Powierzchnia: 58,46 m²
Piętro: 2/3 | 3 pokoje | Parking ogólnodostępny | Piwnica: 9,21 m²
Gotowe do wprowadzenia – idealne dla rodziny lub pod wynajem!
Na sprzedaż komfortowe, słoneczne mieszkanie w spokojnej i świetnie skomunikowanej części Władysławowa. Zaledwie 300 metrów od morza, z przepięknym widokiem na panoramę miasta z dużego balkonu!
Lokal po remoncie (2021r.), sprzedawany z pełnym wyposażeniem widocznym na zdjęciach – gotowy do zamieszkania od zaraz. Budynek z lat 90., zadbany, z domofonem i uporządkowanym otoczeniem.
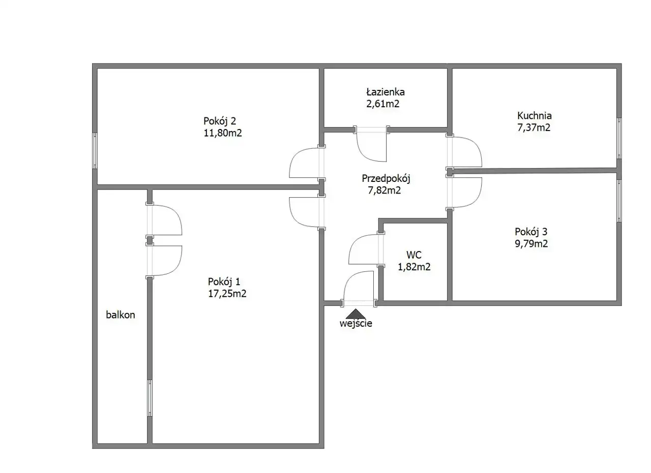
Rozkład pomieszczeń:
- Salon (17,25 m²) z wyjściem na słoneczny balkon
- Sypialnia (11,80 m²)
- Pokój (9,79 m²) – idealny na gabinet lub pokój dziecięcy
- Kuchnia (7,37 m²) – oddzielna, z zabudową i AGD
- Łazienka (2,61 m²) – z prysznicem i pralką
- Osobne WC (1,82 m²)
- Przestronny przedpokój (7,82 m²) z pojemnymi szafami
Atuty nieruchomości:
Duży balkon z widokiem na panoramę WładysławowaŚwietna lokalizacja – blisko plaży i pełnej infrastruktury
Spokojna okolica – idealna do życia lub wypoczynku
Miejskie ogrzewanie
Koszty eksploatacyjne – ok. 600 zł/mies., zimą dodatkowo 300 zł – koszty ogrzewania
Własność – bez obciążeń w KW
Ogólnodostępne miejsca parkingowe
Idealne jako:
- Mieszkanie dla rodziny z dziećmi
- Lokum wakacyjne nad morzem
- Gotowiec inwestycyjny pod wynajem krótko- lub długoterminowy
Cena: 599 000 zł
Zadzwoń i umów się na prezentację! Beata – tel. 730 980 150
Zapewniamy pełne bezpieczeństwo transakcji oraz pomoc w uzyskaniu kredytu hipotecznego – współpracujemy z największymi bankami!
Ogłoszenie ma charakter informacyjny i nie stanowi oferty w rozumieniu Kodeksu Cywilnego.
Nota prawna
Opis oferty zawarty na stronie internetowej sporządzany jest na podstawie oględzin nieruchomości oraz informacji uzyskanych od właściciela, może podlegać aktualizacji i nie stanowi oferty określonej w art. 66 i następnych K.C.
Kalkulator kredytowy
Formularz kontaktowy