Lokal na sprzedaż




Szczegóły ogłoszenia
- Symbol oferty ALFM-LS-3947
- Typ oferty lokal na sprzedaż
- Cena 2 200 000 zł
- Charakterystyka mieszkania 166 m2, 3 pokoje
- Budynek blok
- Rozkład mieszkania parter piętro
- Okna PCV
- Stan lokalu deweloperski
Lokalizacja
- Adres dolnośląskie, Wrocław m., Wrocław
Opis nieruchomości
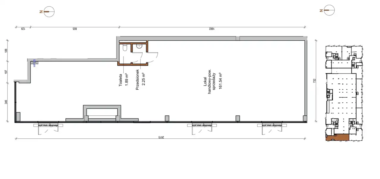
Polecamy lokal użytkowy ( handel, usługi, biuro ) o powierzchni 166 m2 położony na parterze nowego budynku mieszkalnego.
Lokal posiada duże witryny,3 wejścia.
W skład lokalu wchodzi sala sprzedaży +część socjalno - sanitarna.
Stan deweloperski, do własnej aranżacji.
Termin przekazywania kluczy:grudzień 26'.
Lokal usługowo-handlowy znajduje się w samym sercu nowo wybudowanych osiedli. Pobliskie osiedla zamieszkuje kilka tysięcy ludzi.
Osiedle stale rozwijające się, świetnie skomunikowane, w odległości spacerowej od wrocławskiego rynku.
W pobliżu liczne przystanki komunikacji miejskiej (tramwaj, autobus).
Lokal:
Lokal w stanie deweloperskim - do własnej aranżacji.
Lokal świetnie nadający się na biuro, galerię sztuki, pracownię projektową,klub fitness, kawiarnię, salon kosmetyczny, fryzjerski, gabinet medyczny, sklep, etc.
Do lokalu doprowadzone są wszystkie niezbędne media : woda , ogrzewanie, prąd.
Przygotowane miejsce na klimatyzację oraz światłowód.
Idealna propozycja na własny biznes lub w celach inwestycyjnych.
Serdecznie polecam i zapraszam na prezentację.
Cena sprzedaży
2200.000 PLN brutto
Bez podatku PCC, bez prowizji.
W inwestycji dostępne są jeszcze lokale o innych metrażach-113m2,122m2 oraz 248m2.
Polecam i zapraszam na prezentację.
Kasia Chajec
Powyższa oferta ma charakter informacyjny i nie stanowi oferty handlowej w rozumieniu art. 66 §1 Kodeksu Cywilnego.