Lokal na sprzedaż






Szczegóły ogłoszenia
- Symbol oferty NHM-LS-37401
- Typ oferty lokal na sprzedaż
- Cena 300 000 zł
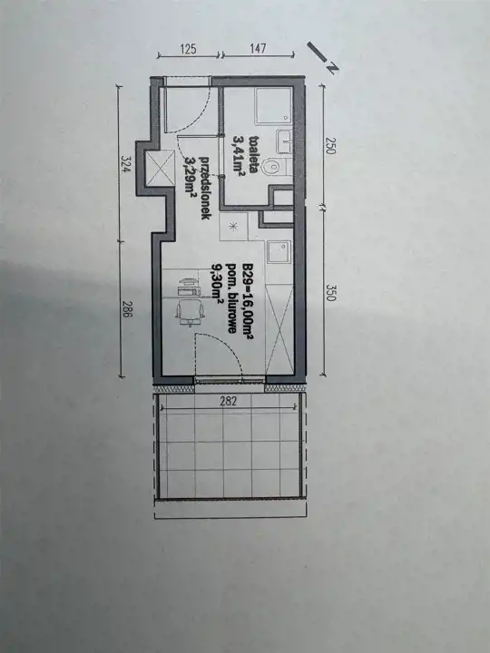
- Charakterystyka mieszkania 16 m2, 1 pokój
- Budynek apartamentowiec; rok budowy: 2026
- Rozkład mieszkania 3p piętro
- Media Ogrzewanie: C.O. miejskie
- Balkon średni
- Dojazd ASFALTOWA
- Okna PCV 3 szyby, ciepły montaż
- Stan lokalu do wykończenia
- Technologia budowlana porotherm
- Winda Tak
Lokalizacja
- Adres dolnośląskie, Wrocław, Krzyki
Opis nieruchomości
Cesja lokalu użytkowego – Traugutta Vita | Balkon | Centrum miasta
Na sprzedaż cesja umowy lokalu użytkowego w nowoczesnej inwestycji Traugutta Vita zlokalizowanej w dynamicznie rozwijającej się części miasta.
Lokal idealny pod wynajem lub działalność usługową, biuro, gabinet
Powierzchnia i układ:
-
powierzchnia lokalu: ok. 16 m²
-
pomieszczenie główne: 9,30 m²
-
toaleta: 3,41 m²
-
przedsionek: 3,29 m²
-
-
duży balkon o powierzchni 6,6 m²
-
3. piętro
Funkcjonalny układ pozwala na wygodne prowadzenie działalności lub atrakcyjny wynajem.
Inwestycja:
-
Traugutta Vita
-
planowane zakończenie budowy: przełom września–grudnia 2026 r.
-
nowoczesna architektura, wysoki standard części wspólnych
-
atrakcyjna lokalizacja blisko centrum
Warunki cesji:
-
90 000 zł – płatne przy podpisaniu umowy cesji
-
210 000 zł – płatne po przeniesieniu własności
-
płatność wyłącznie gotówkowa
Zapraszam do kontaktu
Chętnie udzielę dodatkowych informacji, przekażę szczegóły inwestycji oraz warunki cesji.
Prezentowana oferta nie stanowi oferty dostępnej w wersji Art. 66§1 Kodeksu Cywilnego, a dane, które zawierają charakter informacyjny, mogą zostać zmienione.