Lokal na wynajem



















Szczegóły ogłoszenia
- Symbol oferty NHM-LW-36706
- Typ oferty lokal na wynajem
- Czynsz wynajmu 10 000 zł / miesiąc
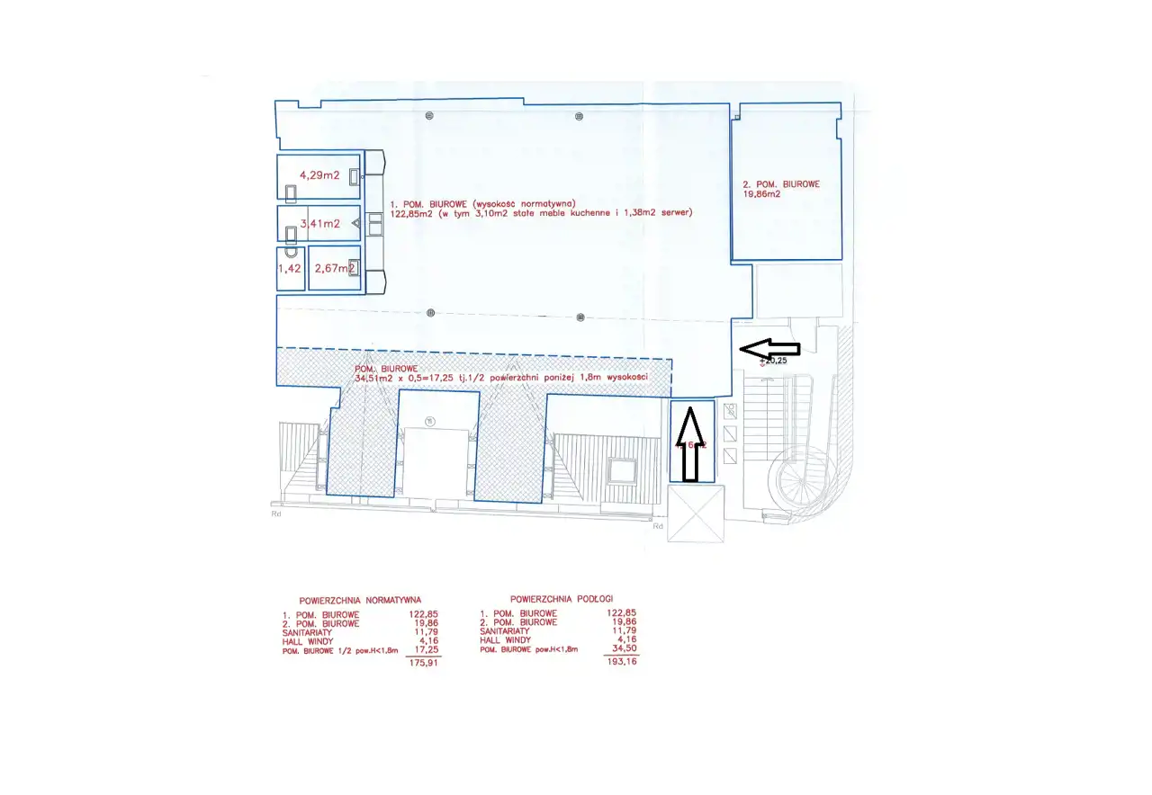
- Charakterystyka mieszkania 193 m2
- Budynek kamienica
- Rozkład mieszkania 5p piętro
- Media Ogrzewanie: C.O. miejskie
- Dojazd asfalt
- Instalacje dobre
- Kaucja dwumiesięczna, 20000 zł
- Okna PCV
- Stan lokalu bardzo dobry
- Winda Tak
Lokalizacja
- Adres dolnośląskie, Wrocław, Stare Miasto
Opis nieruchomości
Do wynajęcia przestrzeń biurowa (całe piętro) o powierzchni 175,91 m2 (powierzchnia całkowita 193,16 M2). Wysokość pomieszczenia 3 m.
Powierzchnia dostępna od 1 stycznia 2026 r lub wcześniej po indywidualnym ustaleniu.
Lokal znajduje się w w zadbanej kamienicy przeznaczonej na biura przy pl. Wolności.
Na podłodze wykładzina i kafelki.
Lokal z klimatyzacją, windą oraz światłowodem.
Idealne pod działalność biurową. Przestrzeń zlokalizowana na 5. piętrze w budynku biurowym z windą.
Czynsz: 10 000 zł NETTO (zawiera opłatę za lokal oraz za opłatę za części wspólne)
Kaucja: dwumiesięczny czynsz
Media dodatkowo płatne według zużycia:
- woda
- energia elektryczna
- energia cieplna
- wywóz śmieci
Serdecznie Polecam i zapraszam do kontaktu.
Warto z nami współpracować ponieważ
- pomożemy we wszystkich formalnościach
*Prezentowana oferta nie stanowi oferty handlowej w rozumieniu Art. 66§1 Kodeksu Cywilnego, a dane w niej zawarte mają charakter jedynie informacyjny i mogą ulec zmianie.