Lokal na wynajem










Szczegóły ogłoszenia
- Symbol oferty IGM-LW-19148
- Typ oferty lokal na wynajem
- Czynsz wynajmu 11 440 zł / miesiąc
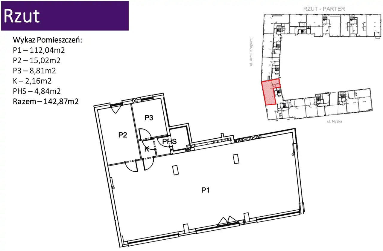
- Charakterystyka mieszkania 143 m2
- Budynek apartamentowiec; rok budowy: 2020
- Rozkład mieszkania parter piętro
- Media Ogrzewanie: centralne
- Miejsce parkingowe Tak
- Dojazd asfalt
- Kaucja trzymiesięczna
- Okna aluminiowe
- Stan lokalu deweloperski
- Umeblowanie brak
- Winda Tak
Lokalizacja
- Adres dolnośląskie, Wrocław, Krzyki
Opis nieruchomości
Zapraszamy do składania ofert najmu lokalu z przeznaczeniem na działalność handlową, usługową, gabinety lekarskie czy dowolne usługi.
Lokal spełnia również wymogi branży gastronomicznej. Jest przygotowany (jako jedyny w budynku) do montażu okapów wywiewnych. Lokal ma osobny szacht wentylacyjny o dużej średnicy, który spełnia wymogi dla instalacji wyciągów gastronomicznych.
Trzy duże witryny frontowe (od ziemi do sufitu) o całkowitej długości 16m gwarantują doskonałe doświetlenie wnętrza światłem dziennym. Pomieszczenie zasadnicze/sala sprzedaży ma powierzchnię 112m2 . Od strony dziedzińca budynku znajduje się dodatkowe wyjście.
Lokal usytuowany jest na fasadzie frontowej nowo powstałego budynku mieszkalno usługowego przy al. Armii Krajowej, przy skrzyżowaniu z ul. Nyską. W bezpośrednim sąsiedztwie obwodnicy śródmiejskiej i skrzyżowania ul. Bardzka/Hubska z al. Armii Krajowej
.
Bezpośrednio przed wejściem do lokalu znajduje się szeroki ciąg pieszy (możliwość wygrodzenia ogródka), pas zieleni oraz kolejny chodnik pieszy ze ścieżką rowerową. Wzdłuż ul. Nyskiej dostępny jest darmowy parking dla samochodów osobowych.
Osiedle Tarnogaj w południowej części Wrocławia w ostatnich latach rozwija się bardzo dynamicznie a nowo powstałe inwestycje deweloperskie (w obrębie ulic Nyska, Piękna, Jesionowa) stają się domem dla dużej liczby mieszkańców – obserwujemy jednak brak adekwatnej oferty handlowo/usługowo/gastronomicznej co zwiększa potencjał prezentowanego lokalu.
Według statystyk UM Wrocław (Marzec 21’) na pobliskich osiedlach (Tarnogaj, Gaj, Huby) zameldowanych jest
48.000 mieszkańców – jednak prawdziwa wielkość rynku zdecydowanie przewyższa tą liczbę - biorąc pod uwagę mieszkańców nie zameldowanych, pracowników pobliskich biur oraz ruch generowany przez al. Armii Krajowej.
Zapraszamy do kontaktu!
Iglica Nieruchomości
50-110 Wrocław
ul. Kiełbaśnicza 24
T/ 71 7966600