Lokal na wynajem
11 475 zł
255 m2













1 / 13
Szczegóły ogłoszenia
- Symbol oferty ASO-LW-40845
- Typ oferty lokal na wynajem
- Czynsz wynajmu 11 475 zł / miesiąc
- Charakterystyka mieszkania 255 m2
- Budynek biurowiec
- Rozkład mieszkania przyziemie piętro
- Instalacje dobre
- Kaucja do uzgodnienia
- Okna aluminiowe
- Stan lokalu dobry
- Winda Tak
Lokalizacja
- Adres dolnośląskie, Wrocław, Fabryczna
Opis nieruchomości
Kompleks biurowy usytuowany jest w zachodniej części Wrocławia.
Biurowiec Klasy B
Parking naziemny
Proponowana powierzchnia 255 m2
Współczynnik części wspólnych -20%
Dostępność: 1.09.2025r.
Czynsz najmu powierzchni biurowej – 45,00 PLN/ 1m2/m-c
Opłata service charge – 21,50 PLN/ 1m2 /m-c
Miejsca postojowe w cenie czynszu najmu
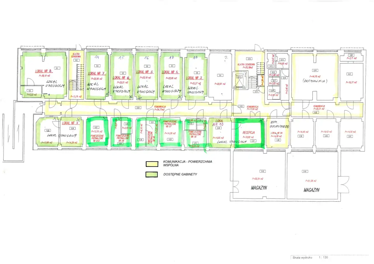
Prezentowana powierzchnia to lokal o powierzchni 255 m2 usytuowany na niskim parterze.
Sekretariat ,9 gabinetów , łazienki.
Przyłącze wody w gabinetach.
Kanalizacja.
Łazienki w częściach wspólnych.
Niezależne wejście.
Standard:
- powierzchnia wykończona
- systemy wentylacji mechanicznej
- instalacja elektryczna
- ogrzewanie
Dostęp do powierzchni 24 h na dobę, 7 dni w tygodniu
Anna Skwarciak ASK OFFICE
+48 609 842 932
a.skwarciak@askhome.pl
Biurowiec Klasy B
Parking naziemny
Proponowana powierzchnia 255 m2
Współczynnik części wspólnych -20%
Dostępność: 1.09.2025r.
Czynsz najmu powierzchni biurowej – 45,00 PLN/ 1m2/m-c
Opłata service charge – 21,50 PLN/ 1m2 /m-c
Miejsca postojowe w cenie czynszu najmu
Prezentowana powierzchnia to lokal o powierzchni 255 m2 usytuowany na niskim parterze.
Sekretariat ,9 gabinetów , łazienki.
Przyłącze wody w gabinetach.
Kanalizacja.
Łazienki w częściach wspólnych.
Niezależne wejście.
Standard:
- powierzchnia wykończona
- systemy wentylacji mechanicznej
- instalacja elektryczna
- ogrzewanie
Dostęp do powierzchni 24 h na dobę, 7 dni w tygodniu
Anna Skwarciak ASK OFFICE
+48 609 842 932
a.skwarciak@askhome.pl
Nota prawna
Opis oferty zawarty na stronie internetowej sporządzany jest na podstawie oględzin nieruchomości oraz informacji uzyskanych od właściciela, może podlegać aktualizacji i nie stanowi oferty określonej w art. 66 i następnych K.C.
Formularz kontaktowy