Lokal na wynajem
12 040 zł
172 m2













1 / 13
Szczegóły ogłoszenia
- Symbol oferty ASO-LW-38207
- Typ oferty lokal na wynajem
- Czynsz wynajmu 12 040 zł / miesiąc
- Charakterystyka mieszkania 172 m2
- Budynek biurowiec
- Rozkład mieszkania 5p piętro
- Media Ogrzewanie: miejskie
- Czynsz Czynsz letni: 695 zł
- Instalacje wymienione
- Kaucja jednomiesięczna, 12040 zł
- Okna nowe drewniane
- Stan lokalu luksusowy
- Winda Tak
Lokalizacja
- Adres dolnośląskie, Wrocław, Stare Miasto
Opis nieruchomości
Prowizje pokrywa Właściciel nieruchomości
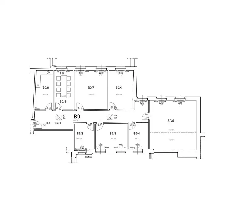
Przedmiotem oferty jest lokal usytuowany na V piętrze luksusowej kamienicy biurowej posadowionej w bliskim sąsiedztwie wrocławskiego Rynku. Lokal o powierzchni 172 m2. Wymieniona powierzchnia składa się z holu, siedmiu gabinetów, kuchni, łazienki. Lokal posiada okablowanie strukturalne, instalacje wentylacyjno-klimatyzacyjną. Na tym samym poziomie komfortowe łazienki. Stylowy obiekt wyposażony w windę. Na parterze recepcja. Oferta skierowana do wymagających klientów. Współczynnik części wspólnych 15%. Opłata eksploatacyjna 7,00 zł/ m2 + opłaty za media.
Zapraszam na prezentacje. ASK OFFICE, Anna Skwarciak, nr tel. 609 842 932,
Wszelkie podane przez Pośrednika informacje nie są ofertą w rozumieniu Kodeksu Cywilnego
Przedmiotem oferty jest lokal usytuowany na V piętrze luksusowej kamienicy biurowej posadowionej w bliskim sąsiedztwie wrocławskiego Rynku. Lokal o powierzchni 172 m2. Wymieniona powierzchnia składa się z holu, siedmiu gabinetów, kuchni, łazienki. Lokal posiada okablowanie strukturalne, instalacje wentylacyjno-klimatyzacyjną. Na tym samym poziomie komfortowe łazienki. Stylowy obiekt wyposażony w windę. Na parterze recepcja. Oferta skierowana do wymagających klientów. Współczynnik części wspólnych 15%. Opłata eksploatacyjna 7,00 zł/ m2 + opłaty za media.
Zapraszam na prezentacje. ASK OFFICE, Anna Skwarciak, nr tel. 609 842 932,
Wszelkie podane przez Pośrednika informacje nie są ofertą w rozumieniu Kodeksu Cywilnego
Nota prawna
Opis oferty zawarty na stronie internetowej sporządzany jest na podstawie oględzin nieruchomości oraz informacji uzyskanych od właściciela, może podlegać aktualizacji i nie stanowi oferty określonej w art. 66 i następnych K.C.
Formularz kontaktowy