Lokal na wynajem
12 145 zł
347 m2














1 / 14
Szczegóły ogłoszenia
- Symbol oferty OFN-LW-13671
- Typ oferty lokal na wynajem
- Czynsz wynajmu 12 145 zł / miesiąc
- Charakterystyka mieszkania 347 m2
- Budynek biurowo-usługowy
- Kaucja dwumiesięczna
- Stan lokalu do wprowadzenia
Lokalizacja
- Adres dolnośląskie, Wrocław, Fabryczna
Opis nieruchomości
Lokal dla branży IT, biuro projektowe, handel, usługi, szkoła, noclegownia, trener personalny, call center, sprzedaż internetowa itp.
Obejrzyj film który jest załączony do oferty!!!
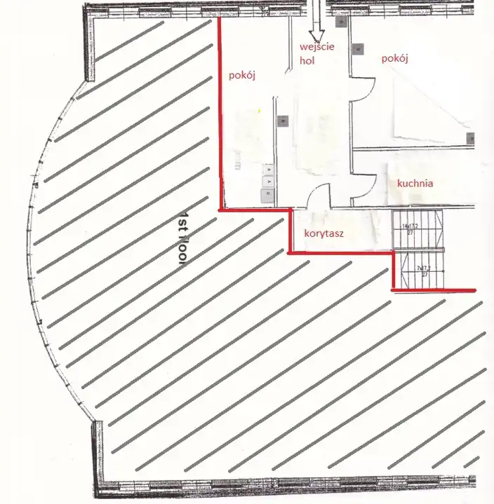
Samodzielny dwukondygnacyjny lokal użytkowy o łącznej powierzchni 347 m2 na którą składa się:
Teren ogrodzony, monitorowany, komunikacja miejska, blisko do zjazdu na AOW
Obowiązujący mpzp
Czynsz najmu 12145 zł netto /mc
Dodatkowo najemca pokrywa koszt zużycia mediów.
Kaucja 2 miesięczna. Termin wydania do uzgodnienia
Numer oferty w biurze OFN-LW-13671
Niniejsza oferta, nie jest ofertą handlową w rozumieniu Kodeksu Cywilnego
OFFICIUM-NIERUCHOMOŚCI, Pośrednik prowadzący Dorota Kamecka tel. 502 504 710
więcej ofert www.officium-nieruchomosci.pl
Wszystkie prawa autorskie zastrzeżone. Kopiowanie, publikowanie, publiczne rozpowszechnianie czy powielanie wszelkich materiałów - w tym zdjęć, grafik, tekstów bez pisemnej zgody Officium Nieruchomości jest zabronione.
zapewniamy bezpłatne wsparcie kredytowe, wyceniamy nieruchomości
Officium Nieruchomości jest na Facebooku.
POLUB NAS! https://www.facebook.com/pages/Officium-Nieruchomosci
Obejrzyj film który jest załączony do oferty!!!
Samodzielny dwukondygnacyjny lokal użytkowy o łącznej powierzchni 347 m2 na którą składa się:
- PARTER: wejście do budynku, holl, sala konferencyjna, kuchnia, pokój
- PIĘTRO: open space, pokój socjalny, 2 łazienki, duży holl z możliwością urządzenia recepcji lub poczekalni
Teren ogrodzony, monitorowany, komunikacja miejska, blisko do zjazdu na AOW
Obowiązujący mpzp
Czynsz najmu 12145 zł netto /mc
Dodatkowo najemca pokrywa koszt zużycia mediów.
Kaucja 2 miesięczna. Termin wydania do uzgodnienia
Numer oferty w biurze OFN-LW-13671
Niniejsza oferta, nie jest ofertą handlową w rozumieniu Kodeksu Cywilnego
OFFICIUM-NIERUCHOMOŚCI, Pośrednik prowadzący Dorota Kamecka tel. 502 504 710
więcej ofert www.officium-nieruchomosci.pl
Wszystkie prawa autorskie zastrzeżone. Kopiowanie, publikowanie, publiczne rozpowszechnianie czy powielanie wszelkich materiałów - w tym zdjęć, grafik, tekstów bez pisemnej zgody Officium Nieruchomości jest zabronione.
zapewniamy bezpłatne wsparcie kredytowe, wyceniamy nieruchomości
Officium Nieruchomości jest na Facebooku.
POLUB NAS! https://www.facebook.com/pages/Officium-Nieruchomosci
Nota prawna
Opis oferty zawarty na stronie internetowej sporządzany jest na podstawie oględzin nieruchomości oraz informacji uzyskanych od właściciela, może podlegać aktualizacji i nie stanowi oferty określonej w art. 66 i następnych K.C.
Formularz kontaktowy