Lokal na wynajem












Szczegóły ogłoszenia
- Symbol oferty ASO-LW-40680
- Typ oferty lokal na wynajem
- Czynsz wynajmu 12 291 zł / miesiąc
- Charakterystyka mieszkania 241 m2
- Budynek biurowiec
- Rozkład mieszkania 4p piętro
- Media Ogrzewanie: miejskie
- Miejsce parkingowe Tak
- Instalacje wymienione
- Kaucja dwumiesięczna
- Okna nowe drewniane
- Stan lokalu idealny
- Winda Tak
Lokalizacja
- Adres dolnośląskie, Wrocław, Krzyki
Opis nieruchomości
Wynagrodzenie pokrywa Właściciel nieruchomości
Kamienica biurowa usytuowana przy ul. Powstańców Śląskich
Biurowiec Klasy B+
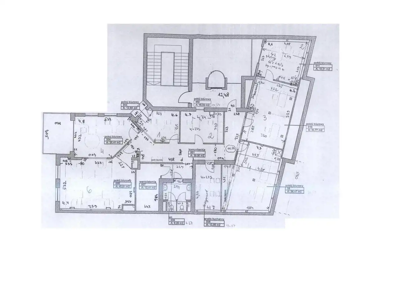
Proponowana powierzchnia 241 m2
Współczynnik części wspólnych -0 %
Dostępność: maja 2026 r.
Czynsz najmu powierzchni biurowej – 51,00 PLN/ 1m2/m-c
Opłata service charge – 15,00 -22,00 PLN/ 1m2 /m-c
Prezentowana powierzchnia to lokal o powierzchni 241 m2.
Sekretariat, 3 pokoje, dwa gabinety, salka konferencyjna, 2 toalety, kuchnia
Standard:
- powierzchnia wykończona
- instalacja SAP
- system wentylacji
- klimatyzacja
- instalacja elektryczna z pełnym osprzętem elektroinstalacyjnym
- ogrzewanie miejskie
- parking
Dostęp do powierzchni 24 h na dobę, 7 dni w tygodniu
Anna Skwarciak ASK OFFICE
+48 609 842 932
Wszelkie podane przez Pośrednika informacje nie są ofertą w rozumieniu Kodeksu Cywilnego