Lokal na wynajem















Szczegóły ogłoszenia
- Symbol oferty IGM-LW-21152
- Typ oferty lokal na wynajem
- Czynsz wynajmu 12 376 zł / miesiąc
- Charakterystyka mieszkania 193.84 m2
- Budynek biurowiec; rok budowy: 2012
- Rozkład mieszkania 4p piętro
- Miejsce parkingowe Tak
- Dojazd asfalt
- Kaucja trzymiesięczna
- Stan lokalu do wprowadzenia
- Winda Tak
Lokalizacja
- Adres dolnośląskie, Wrocław, Krzyki
Opis nieruchomości
Powierzchnia biurowa w Sky Tower – ul. Powstańców Śląskich, Wrocław
Oferujemy do wynajęcia atrakcyjną powierzchnię biurową zlokalizowaną w prestiżowym kompleksie Sky Tower przy ul. Powstańców Śląskich – jednej z głównych arterii Wrocławia.
Budynek zapewnia doskonały dostęp zarówno do centrum miasta, jak i do obwodnicy Wrocławia, a lokalizacja gwarantuje prestiżową ekspozycję oraz komfort pracy w jednej z najbardziej rozpoznawalnych inwestycji w Polsce.
Powierzchnia
-
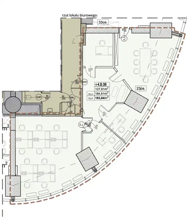
Powierzchnia brutto: 193,84 m²
-
Powierzchnia netto: 184,61 m² (z uwzględnieniem udziału w częściach wspólnych)
-
Powierzchnia użytkowa: 130 m²
Opis powierzchni
Prezentowana powierzchnia biurowa to funkcjonalnie zaprojektowane biuro z wydzielonymi gabinetami, oferujące wiele możliwości aranżacyjnych i wysoki standard wykończenia.
W aktualnym układzie przestrzeń obejmuje:
-
reprezentacyjny hol z indywidualnym, niewielkim aneksem kuchennym,
-
pięć wydzielonych gabinetów z eleganckimi, przeszklonymi ściankami,
-
dostęp do aneksu kuchennego oraz toalet zlokalizowanych w częściach wspólnych budynku.
Dzięki dużym przeszkleniom wnętrza są jasne i pełne naturalnego światła, co sprzyja efektywnej i komfortowej pracy. Z okien rozpościera się imponujący widok na panoramę Wrocławia, podkreślający prestiż i wyjątkowy charakter tego miejsca.
Istnieje możliwość modyfikacji układu pomieszczeń – właściciel dopuszcza adaptację powierzchni do indywidualnych potrzeb przyszłego najemcy.
Warunki najmu
-
Czynsz bazowy: 15,50 EUR / m²
-
Opłaty eksploatacyjne: 32 PLN / m²
-
Miejsca parkingowe w garażu podziemnym: 85 EUR / miejsce (liczba miejsc do ustalenia)
-
Współczynnik powierzchni wspólnych: 5%
Podane stawki mają charakter netto i stanowią punkt wyjścia do dalszych negocjacji.
Lokalizacja
Kompleks Sky Tower to symbol nowoczesnego Wrocławia i jeden z najbardziej prestiżowych adresów biznesowych w mieście.
Obiekt znajduje się w sercu dzielnicy Krzyki, przy doskonale skomunikowanej ul. Powstańców Śląskich – w bezpośrednim sąsiedztwie przystanków tramwajowych i autobusowych, z szybkim dojazdem do Rynku oraz Dworca Głównego PKP.
W budynku i jego najbliższym otoczeniu znajdują się restauracje, kawiarnie, sklepy, centrum handlowe Sky Tower Shopping Gallery, a także liczne punkty usługowe, co zapewnia wygodę codziennego funkcjonowania pracowników i klientów.
Powierzchnie biurowe w Sky Tower to propozycja dla firm i instytucji poszukujących komfortu, nowoczesnego standardu oraz reprezentacyjnego adresu, który buduje prestiż marki i ułatwia relacje biznesowe.