Lokal na wynajem
1 250 zł
25 m2













1 / 13
Szczegóły ogłoszenia
- Symbol oferty ASO-LW-37768
- Typ oferty lokal na wynajem
- Czynsz wynajmu 1 250 zł / miesiąc
- Charakterystyka mieszkania 25 m2
- Budynek biurowiec
- Rozkład mieszkania parter piętro
- Media Ogrzewanie: miejskie
- Instalacje częściowo wymienione
- Kaucja jednomiesięczna, 1250 zł
- Okna częściowo wymienione
- Stan lokalu do odświeżenia
Lokalizacja
- Adres dolnośląskie, Wrocław, Stare Miasto
Opis nieruchomości
Proponowana powierzchnia 35-400 m2
Współczynnik części wspólnych -0 %
Dostępność: 1.07.2024r.
Czynsz najmu powierzchni biurowej – 55,00 PLN/ 1m2/m-c
Opłata service charge – 15,00 PLN/ 1m2 /m-c
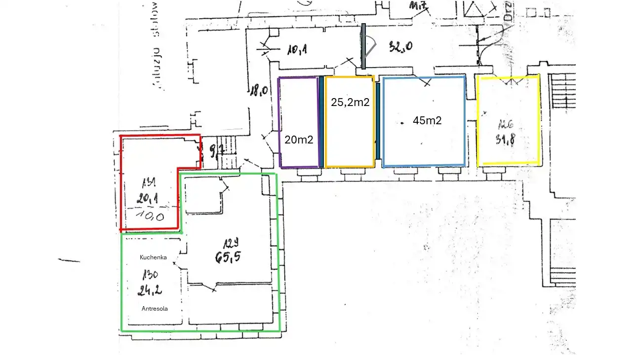
Prezentowana powierzchnia to lokal o powierzchni 25m2.
Toaleta w częściach współnych
W obiekcie dostępne lokale:
-20m2
-25m2
-30m2
-45 m2
-56m2
-74 m2
-100m2
-200m2
Standard:
- powierzchnia wykończona
- wysokość pomieszczeń: 4m
- sztukateria
- stylowe żyrandole
- klimatyzacja
- instalacja elektryczna
- Internet światłowodowy
- ogrzewanie miejskie Fortum
Dostęp do powierzchni 24 h na dobę, 7 dni w tygodniu
Anna Skwarciak ASK OFFICE
+48 609 842 932
a.skwarciak@askhome
Więcej ofert na stronie: www.askhome.pl
Wszelkie podane przez Pośrednika informacje nie są ofertą w rozumieniu Kodeksu Cywilnego
Współczynnik części wspólnych -0 %
Dostępność: 1.07.2024r.
Czynsz najmu powierzchni biurowej – 55,00 PLN/ 1m2/m-c
Opłata service charge – 15,00 PLN/ 1m2 /m-c
Prezentowana powierzchnia to lokal o powierzchni 25m2.
Toaleta w częściach współnych
W obiekcie dostępne lokale:
-20m2
-25m2
-30m2
-45 m2
-56m2
-74 m2
-100m2
-200m2
Standard:
- powierzchnia wykończona
- wysokość pomieszczeń: 4m
- sztukateria
- stylowe żyrandole
- klimatyzacja
- instalacja elektryczna
- Internet światłowodowy
- ogrzewanie miejskie Fortum
Dostęp do powierzchni 24 h na dobę, 7 dni w tygodniu
Anna Skwarciak ASK OFFICE
+48 609 842 932
a.skwarciak@askhome
Więcej ofert na stronie: www.askhome.pl
Wszelkie podane przez Pośrednika informacje nie są ofertą w rozumieniu Kodeksu Cywilnego
Nota prawna
Opis oferty zawarty na stronie internetowej sporządzany jest na podstawie oględzin nieruchomości oraz informacji uzyskanych od właściciela, może podlegać aktualizacji i nie stanowi oferty określonej w art. 66 i następnych K.C.
Formularz kontaktowy