Lokal na wynajem
13 356 zł
212 m2










1 / 10
Szczegóły ogłoszenia
- Symbol oferty ASO-LW-40743
- Typ oferty lokal na wynajem
- Czynsz wynajmu 13 356 zł / miesiąc
- Charakterystyka mieszkania 212 m2
- Budynek biurowiec
- Rozkład mieszkania parter piętro
- Instalacje dobre
- Kaucja do uzgodnienia
- Okna PCV
- Stan lokalu do wprowadzenia
- Winda Tak
Lokalizacja
- Adres dolnośląskie, Wrocław, Stare Miasto
Opis nieruchomości
Prowizje dla biura pokrywa Właściciel Nieruchomości
Kompleks biurowy usytuowany w Ścisłym Centrum
Biurowiec Klasy B+
Parking podziemny na 132 miejsc postojowych
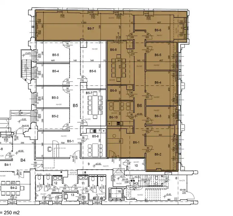
Proponowana powierzchnia 212m2
Wsp. części wspólnych części 15m2
Dostępność: do uzgodnienia
Czynsz najmu powierzchni biurowej – 63,00PLN/ 1m2/m-c
Opłata service charge – 7 PLN/ 1m2 /m-c
Media według zużycia
1 miejsce postojowe 250 PLN / m-c
Proponowana powierzchnia: 212 m2 usytuowana na parterze obiektu.
Sekretariat, sześć pokoi, salka konferencyjna, kuchnia.
Toalety w częściach wspólnych
Fotografie są jedynie poglądowe
INFORMACJE TECHNICZNE
System ochrony budynku
Budynek objęty jest całodobową ochroną osobową, przez siedem dni w tygodniu. Ponadto w budynku funkcjonuje system monitoringu wizyjnego wraz z rejestracją. Na system ten składa się zestaw kamer zainstalowanych w miejscach pozwalających kontrolować ruch osobowy w budynku oraz na parkingu.
Instalacje w budynku
Konstrukcję budynku stanowią mury nośnie wykonane z cegły ceramicznej, na których oparte są stropy żelbetonowe. Budynek posiada pełne uzbrojenie techniczne, tj. przyłącza: wodne, kanalizacyjne, elektryczne oraz grzewcze. Instalacje w budynku: – centralne ogrzewanie, zasilane z miejskiej sieci ciepłowniczej, – cieplej i zimnej wody, – kanalizacji deszczowej i sanitarnej, – instalacja SAP, – instalacja oddymiająca klatki schodowe, – odgromowa, – wewnętrzna sieć hydrantowa, – wentylacja mechaniczna nawiewno – wywiewna i klimatyzacja, – sieć logiczna w każdym wynajmowanym lokalu, – piętra I i III wyposażone są w podłogę techniczną.
Powierzchnie użytkowe
W pięciokondygnacyjnym budynku, od parteru do czwartego piętra przygotowano pomieszczenia biurowe, o łącznej powierzchni ok. 6.000 m2. W piwnicach budynku wydzielono pomieszczenia magazynowe na potrzeby najemców.
Parking
Na terenie ogrodzonego parkingu wydzielono 132 stanowiska do parkowania samochodów osobowych najemców oraz ich klientów. Pomyślano również o osobach dojeżdżających do pracy rowerami, dla których ustawiono odpowiednią ilość stojaków do przypinania rowerów.
Anna Skwarciak ASK OFFICE
+48 609 842 932
a.skwarciak@askhome.pl
Więcej ofert na stronie: www.askhome.pl
Wszelkie podane przez Pośrednika informacje nie są ofertą w rozumieniu Kodeksu Cywilnego
Kompleks biurowy usytuowany w Ścisłym Centrum
Biurowiec Klasy B+
Parking podziemny na 132 miejsc postojowych
Proponowana powierzchnia 212m2
Wsp. części wspólnych części 15m2
Dostępność: do uzgodnienia
Czynsz najmu powierzchni biurowej – 63,00PLN/ 1m2/m-c
Opłata service charge – 7 PLN/ 1m2 /m-c
Media według zużycia
1 miejsce postojowe 250 PLN / m-c
Proponowana powierzchnia: 212 m2 usytuowana na parterze obiektu.
Sekretariat, sześć pokoi, salka konferencyjna, kuchnia.
Toalety w częściach wspólnych
Fotografie są jedynie poglądowe
INFORMACJE TECHNICZNE
System ochrony budynku
Budynek objęty jest całodobową ochroną osobową, przez siedem dni w tygodniu. Ponadto w budynku funkcjonuje system monitoringu wizyjnego wraz z rejestracją. Na system ten składa się zestaw kamer zainstalowanych w miejscach pozwalających kontrolować ruch osobowy w budynku oraz na parkingu.
Instalacje w budynku
Konstrukcję budynku stanowią mury nośnie wykonane z cegły ceramicznej, na których oparte są stropy żelbetonowe. Budynek posiada pełne uzbrojenie techniczne, tj. przyłącza: wodne, kanalizacyjne, elektryczne oraz grzewcze. Instalacje w budynku: – centralne ogrzewanie, zasilane z miejskiej sieci ciepłowniczej, – cieplej i zimnej wody, – kanalizacji deszczowej i sanitarnej, – instalacja SAP, – instalacja oddymiająca klatki schodowe, – odgromowa, – wewnętrzna sieć hydrantowa, – wentylacja mechaniczna nawiewno – wywiewna i klimatyzacja, – sieć logiczna w każdym wynajmowanym lokalu, – piętra I i III wyposażone są w podłogę techniczną.
Powierzchnie użytkowe
W pięciokondygnacyjnym budynku, od parteru do czwartego piętra przygotowano pomieszczenia biurowe, o łącznej powierzchni ok. 6.000 m2. W piwnicach budynku wydzielono pomieszczenia magazynowe na potrzeby najemców.
Parking
Na terenie ogrodzonego parkingu wydzielono 132 stanowiska do parkowania samochodów osobowych najemców oraz ich klientów. Pomyślano również o osobach dojeżdżających do pracy rowerami, dla których ustawiono odpowiednią ilość stojaków do przypinania rowerów.
Anna Skwarciak ASK OFFICE
+48 609 842 932
a.skwarciak@askhome.pl
Więcej ofert na stronie: www.askhome.pl
Wszelkie podane przez Pośrednika informacje nie są ofertą w rozumieniu Kodeksu Cywilnego
Nota prawna
Opis oferty zawarty na stronie internetowej sporządzany jest na podstawie oględzin nieruchomości oraz informacji uzyskanych od właściciela, może podlegać aktualizacji i nie stanowi oferty określonej w art. 66 i następnych K.C.
Formularz kontaktowy