Lokal na wynajem
13 662 zł
253 m2
















1 / 16
Szczegóły ogłoszenia
- Symbol oferty ASO-LW-40907
- Typ oferty lokal na wynajem
- Czynsz wynajmu 13 662 zł / miesiąc
- Charakterystyka mieszkania 253 m2
- Budynek biurowiec
- Rozkład mieszkania 6p piętro
- Kaucja dwumiesięczna
- Stan lokalu do wykończenia
- Winda Tak
Lokalizacja
- Adres dolnośląskie, Wrocław, Krzyki
Opis nieruchomości
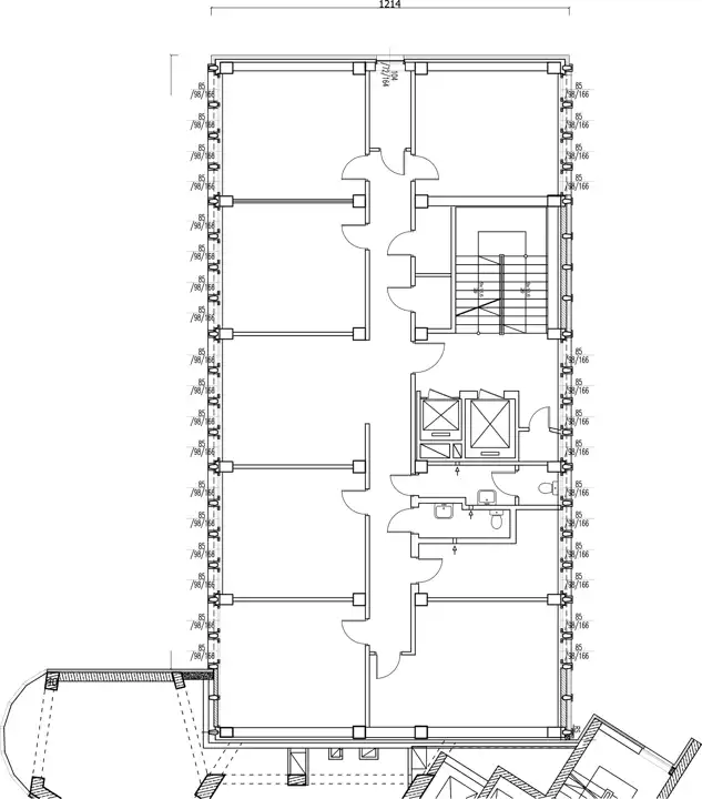
Moduł biurowy o powierzchni 253m2 na VI p. Wymieniona powierzchnia składa się z siedmiu pokoi biurowych, pomieszczenia technicznego, dwóch toalet, kącika socjalnego. Obiekt wyposażony w windę. Zagwarantowane miejsce postojowe w umowie w cenie 400 zł/mc netto. Opłata eksploatacyjna 25 zł/m2+ energia według zużycia.
Zapraszam na prezentacje. ASK OFFICE, Anna Skwarciak, nr tel. 609 842 932
Więcej ofert na stronie:
www.askhome.pl
Wszelkie podane przez Pośrednika informacje nie są ofertą w rozumieniu Kodeksu Cywilnego
Zapraszam na prezentacje. ASK OFFICE, Anna Skwarciak, nr tel. 609 842 932
Więcej ofert na stronie:
www.askhome.pl
Wszelkie podane przez Pośrednika informacje nie są ofertą w rozumieniu Kodeksu Cywilnego
Nota prawna
Opis oferty zawarty na stronie internetowej sporządzany jest na podstawie oględzin nieruchomości oraz informacji uzyskanych od właściciela, może podlegać aktualizacji i nie stanowi oferty określonej w art. 66 i następnych K.C.
Formularz kontaktowy