Lokal na wynajem




Szczegóły ogłoszenia
- Symbol oferty IGM-LW-20634
- Typ oferty lokal na wynajem
- Czynsz wynajmu 18 252 zł / miesiąc
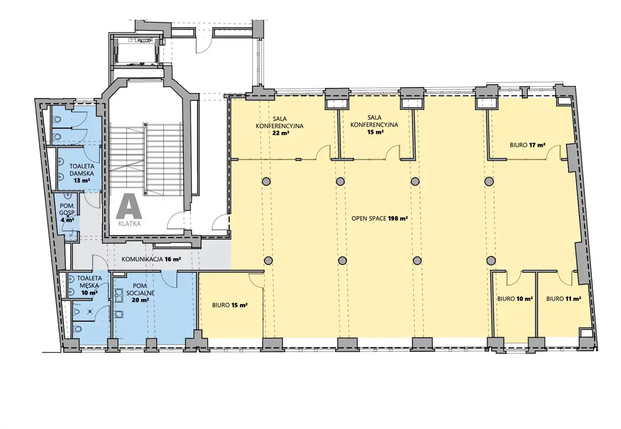
- Charakterystyka mieszkania 351 m2
- Budynek biurowiec; rok budowy: 2011
- Rozkład mieszkania 2p piętro
- Media Ogrzewanie: centralne
- Dojazd asfalt
- Instalacje nowe
- Kaucja do uzgodnienia
- Okna nowe drewniane
- Stan lokalu do wprowadzenia
- Winda Tak
Lokalizacja
- Adres dolnośląskie, Wrocław, Stare Miasto
Opis nieruchomości
Do wynajęcia przestronna powierzchnia biurowa o powierzchni 351 m², usytuowana na 2. piętrze odrestaurowanej kamienicy w sercu miasta. Wysokie sufity, duże okna oraz oryginalne detale architektoniczne tworzą unikalny klimat, który doskonale łączy nowoczesność z historycznym charakterem budynku.
Lokal składa się z otwartej przestrzeni biurowej typu open space o powierzchni 198 m², wydzielonych pomieszczeń biurowych, sali konferencyjnych, przestronnych toalet oraz strefy socjalnej, co zapewnia komfort i funkcjonalność w codziennej pracy. Doskonała aranżacja przestrzeni pozwala na elastyczne dostosowanie powierzchni do potrzeb Twojego biznesu.
Budynek usytuowany jest w centralnej części miasta, zaledwie kilka minut spacerem od głównych punktów komunikacyjnych, co ułatwia dostęp do wszystkich kluczowych instytucji, sklepów, restauracji i innych udogodnień.
Wysoki standard wykończenia, elegancka klatka schodowa oraz starannie zachowane detale kamienicy zapewniają profesjonalne i reprezentacyjne środowisko pracy. To idealne miejsce na biuro, które będzie w pełni odpowiadać potrzebom nowoczesnego przedsiębiorstwa.
Cena najmu: 52 zł netto / m²
Opłata eksploatacyjna: 25 zł netto / m²
Współczynnik części wspólnych: 8 %
Budynek jest gotowy do wynajmu, a przestrzeń dostępna od zaraz. Serdecznie zapraszamy do kontaktu i obejrzenia biura.
Partnerem komercjalizacji jest Iglica Nieruchomości. Wynagrodzenie pośrednika w całości pokrywa właściciel budynku.
Katarzyna Stawieraj
tel. 514 706 686
k.stawieraj@iglica.pl
komercja@iglica.pl