Lokal na wynajem
2 058 zł
42 m2







1 / 7
Szczegóły ogłoszenia
- Symbol oferty ASO-LW-35879
- Typ oferty lokal na wynajem
- Czynsz wynajmu 2 058 zł / miesiąc
- Charakterystyka mieszkania 42 m2
- Budynek biurowiec
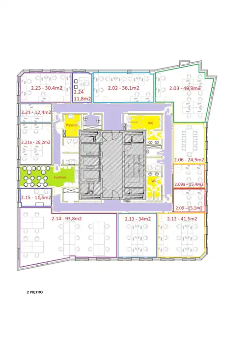
- Rozkład mieszkania 2p piętro
- Kaucja trzymiesięczna
- Okna PCV
- Stan lokalu do odświeżenia
- Winda Tak
Lokalizacja
- Adres dolnośląskie, Wrocław, Fabryczna
Opis nieruchomości
Wynagrodzenie gwarantuje Właściciel nieruchomości
Kompleks biurowy usytuowany jest w zachodniej części Wrocławia.
Biurowiec Klasy A
Całkowita powierzchnia budynku: 7 510m2
Parking Wielopoziomowy na 809 miejsc postojowych
Proponowana powierzchnia 12m2 -600 m2
Dostępność: 1.08.2022r.
Czynsz najmu powierzchni biurowej – 49 PLN/ 1m2/m-c
Opłata service charge - 25 PLN/1m2/m-c
1 miejsce postojowe 180 PLN/ m-c - 250 PLN / m-c
Proponowane pokoje: 30m2, 12m2, 36m2, 49m2, 24m2, 30m2, 41m2, 34m2, 53m2, 25m2, 38m2.
Standard:
- powierzchnia wykończona
- pokoje umeblowane
- w cenie czynszu najmu uwzględnione opłaty za media , Internet
- wysokość pomieszczeń: 3m
- sufity podwieszane rastrowe
- instalacja SAP
- systemy klimatyzacji i wentylacji mechanicznej zabudowane w suficie
podwieszanym
- wentylacja realizowana przez centralę wentylacyjną z rekuperacją i
filtrami klasy 4
- klimatyzacja w każdym pokoju regulowana indywidualnie
- instalacja elektryczna z pełnym osprzętem elektroinstalacyjnym i
rozdzielnią na każdym piętrze
- instalacja teletechniczna CAT 5
- ogrzewanie: system klimatyzacji z funkcja ogrzewania
- 3 windy
- system BMS
Dostęp do powierzchni 24 h na dobę, 7 dni w tygodniu
Anna Skwarciak ASK OFFICE
+48 609 842 932
a.skwarciak@askhome.pl
Kompleks biurowy usytuowany jest w zachodniej części Wrocławia.
Biurowiec Klasy A
Całkowita powierzchnia budynku: 7 510m2
Parking Wielopoziomowy na 809 miejsc postojowych
Proponowana powierzchnia 12m2 -600 m2
Dostępność: 1.08.2022r.
Czynsz najmu powierzchni biurowej – 49 PLN/ 1m2/m-c
Opłata service charge - 25 PLN/1m2/m-c
1 miejsce postojowe 180 PLN/ m-c - 250 PLN / m-c
Proponowane pokoje: 30m2, 12m2, 36m2, 49m2, 24m2, 30m2, 41m2, 34m2, 53m2, 25m2, 38m2.
Standard:
- powierzchnia wykończona
- pokoje umeblowane
- w cenie czynszu najmu uwzględnione opłaty za media , Internet
- wysokość pomieszczeń: 3m
- sufity podwieszane rastrowe
- instalacja SAP
- systemy klimatyzacji i wentylacji mechanicznej zabudowane w suficie
podwieszanym
- wentylacja realizowana przez centralę wentylacyjną z rekuperacją i
filtrami klasy 4
- klimatyzacja w każdym pokoju regulowana indywidualnie
- instalacja elektryczna z pełnym osprzętem elektroinstalacyjnym i
rozdzielnią na każdym piętrze
- instalacja teletechniczna CAT 5
- ogrzewanie: system klimatyzacji z funkcja ogrzewania
- 3 windy
- system BMS
Dostęp do powierzchni 24 h na dobę, 7 dni w tygodniu
Anna Skwarciak ASK OFFICE
+48 609 842 932
a.skwarciak@askhome.pl
Nota prawna
Opis oferty zawarty na stronie internetowej sporządzany jest na podstawie oględzin nieruchomości oraz informacji uzyskanych od właściciela, może podlegać aktualizacji i nie stanowi oferty określonej w art. 66 i następnych K.C.
Formularz kontaktowy