Lokal na wynajem

















Szczegóły ogłoszenia
- Symbol oferty IGM-LW-20817
- Typ oferty lokal na wynajem
- Czynsz wynajmu 22 088 zł / miesiąc
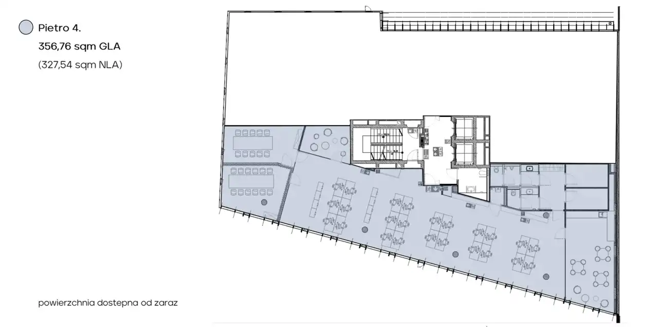
- Charakterystyka mieszkania 356.76 m2
- Budynek biurowiec; rok budowy: 2017
- Rozkład mieszkania 4p piętro
- Media Ogrzewanie: miejskie
- Dojazd asfalt
- Stan lokalu bardzo dobry
- Winda Tak
Lokalizacja
- Adres dolnośląskie, Wrocław, Krzyki
Opis nieruchomości
Nowoczesna powierzchnia biurowa w prestiżowej lokalizacji
Oferujemy do wynajęcia przestronną powierzchnię biurową o łącznej powierzchni brutto 356,76 m² (netto 327,54 m²) w nowoczesnym budynku klasy A, zlokalizowanym w sercu Wrocławia. Budynek wyróżnia się nowoczesną architekturą i wysokim standardem wykończenia, zapewniając komfortowe warunki pracy.
Układ i funkcjonalność
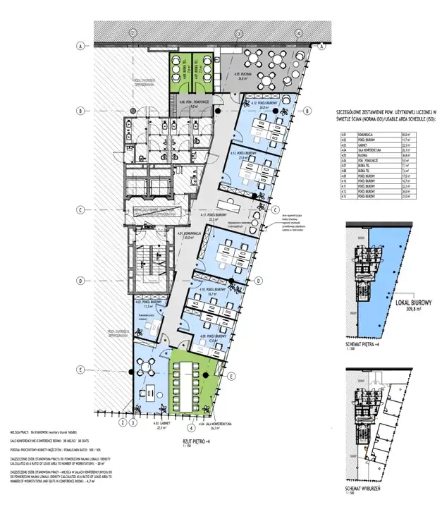
Powierzchnia składa się z dużej, przestronnej powierzchni open space oraz wydzielonych trzech osobnych pomieszczeń, które idealnie nadają się na gabinety. Dodatkowo, w obrębie biura znajduje się kuchnia, co zwiększa komfort codziennego użytkowania, serwerownia, pomieszczenie magazynowe oraz toalety.
Korzyści z użytkowania biura
-
Wysoki standard wykończenia: Budynek wyposażony jest w nowoczesne instalacje, klimatyzację oraz okablowanie strukturalne, co zapewnia komfort i efektywność pracy.
-
Certyfikat LEED Gold: Obiekt posiada prestiżowy certyfikat ekologiczny LEED na poziomie złotym, co świadczy o zastosowaniu energooszczędnych i przyjaznych środowisku rozwiązań.
-
Dostępność komunikacyjna: Lokalizacja zapewnia doskonały dostęp do komunikacji miejskiej oraz głównych arterii komunikacyjnych miasta, co ułatwia dojazd pracownikom i klientom.
-
Otoczenie biznesowe: W sąsiedztwie znajdują się liczne biura, instytucje finansowe oraz obiekty handlowe i usługowe, co sprzyja rozwojowi działalności gospodarczej.
-
Elastyczność aranżacji: Dzięki przemyślanemu układowi przestrzeni, istnieje możliwość dostosowania biura do indywidualnych potrzeb najemcy.
Koszty:
- Czynsz najmu: 14,50 €/mkw GLA
- Minimalny okres najmu: 3 lata
- service charge: 31 PLN
Przestrzeń może być dostosowana do potrzeb najemcy.
Zapraszam serdecznie do kontaktu.
Katarzyna Stawieraj
514-706-686
Iglica Nieruchomości
Zaolziańska 1 Wrocław