Lokal na wynajem












Szczegóły ogłoszenia
- Symbol oferty IGM-LW-21187
- Typ oferty lokal na wynajem
- Czynsz wynajmu 22 826 zł / miesiąc
- Charakterystyka mieszkania 385 m2
- Budynek biurowiec; rok budowy: 2016
- Rozkład mieszkania 2p piętro
- Dojazd asfaltowa/kostka
- Stan lokalu do wprowadzenia
- Umeblowanie puste
- Winda Tak
Lokalizacja
- Adres dolnośląskie, Wrocław, Stare Miasto
Opis nieruchomości
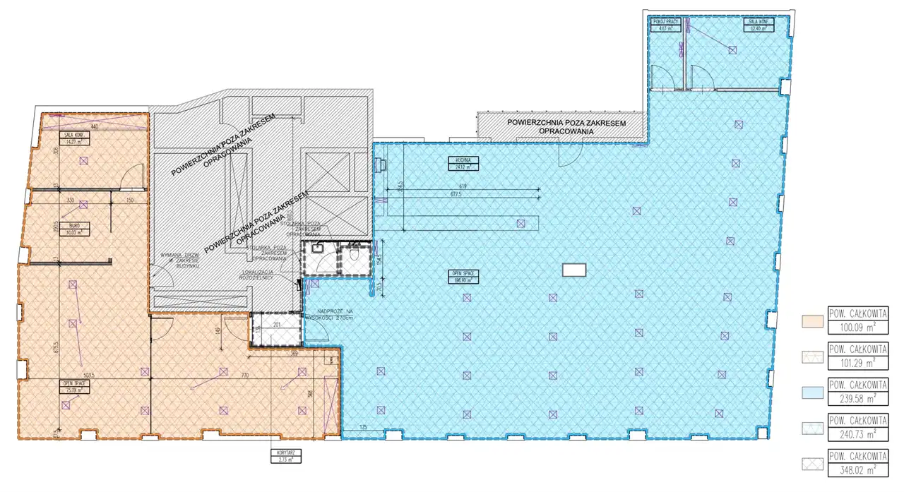
Do wynajęcia funkcjonalna powierzchnia biurowa o metrażu 385 m² (brutto), zlokalizowana na 3. piętrze nowoczesnego biurowca premium — w samym sercu Wrocławia.
To doskonała propozycja dla firm poszukujących reprezentacyjnego adresu, komfortowych warunków pracy oraz dostępu do pełnej infrastruktury centrum miasta.
Najważniejsze informacje
-
Lokalizacja: Stare Miasto – tuż przy wrocławskim Rynku
-
Powierzchnia: 385 m² (brutto, z uwzględnieniem współczynników budynkowych i powierzchni wspólnych)
-
Piętro: 2
-
Czynsz najmu: 14 EUR netto/m²
-
Opłaty eksploatacyjne: 29 PLN netto/m²
-
Dodatkowe opłaty: media wg zużycia
* Powyższe warunki stanowią punkt wyjściowy i mogą podlegać negocjacji — w zależności od zakresu potrzeb Najemcy oraz długości okresu najmu.
Atuty biura
-
Wyjątkowa lokalizacja — zaledwie kilka kroków od Rynku, w bezpośrednim sąsiedztwie głównych tras komunikacyjnych oraz bogatej oferty gastronomiczno-usługowej.
-
Reprezentacyjny budynek — nowoczesny biurowiec z eleganckim lobby, cichobieżną windą i wysokim standardem wykończenia.
-
Komfortowa i elastyczna przestrzeń — przestrzeń typu open space oraz z wydzielonymi dwiema przeszklonymi salkami konferencyjnymi oraz jednym gabinetem
-
Świetna dostępność komunikacyjna — w pobliżu liczne przystanki tramwajowe i autobusowe.
-
Gotowe do wejścia — biuro dostępne od zaraz z możliwością dostosowania aranżacji do potrzeb najemcy.
Możliwość wydzielenia mniejszej powierzchni, zgodnie z potrzebami najemcy
Serdecznie zapraszam do kontaktu