Lokal na wynajem
2 530 zł
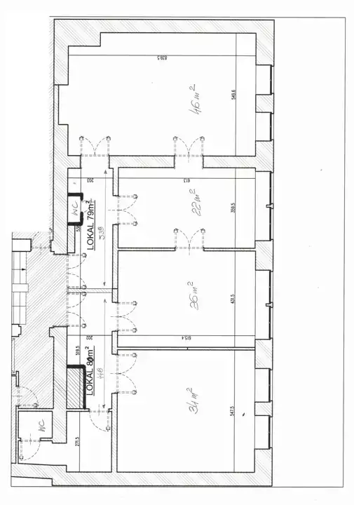
46 m2




1 / 4
Szczegóły ogłoszenia
- Symbol oferty ASO-LW-38092
- Typ oferty lokal na wynajem
- Czynsz wynajmu 2 530 zł / miesiąc
- Charakterystyka mieszkania 46 m2
- Budynek biurowiec
- Rozkład mieszkania 2p piętro
- Media Ogrzewanie: miejskie
- Kaucja jednomiesięczna, 2530 zł
- Okna częściowo wymienione
- Stan lokalu dobry
- Winda Tak
Lokalizacja
- Adres dolnośląskie, Wrocław, Stare Miasto
Opis nieruchomości
Kompleks biurowy usytuowany na wrocławskiej Starówce
Biurowiec Klasy B+
Proponowana powierzchnia 60-400 m2
Współczynnik części wspólnych -0 %
Dostępność: 1.10.2024r.
Czynsz najmu powierzchni biurowej – 50-55,00 PLN/ 1m2/m-c
Opłata service charge – 20,00 PLN/ 1m2 /m-c
Opłata za energię elektryczną według zużycia
Prezentowana powierzchnia to lokal o powierzchni 46 m2 + współczynnik części wspólnych 7m2.
Hol, kącik socjalny, toaleta do współdzielenia z lokalem sąsiednim
W obiekcie dostępne lokale:
-55m2
-60 m2
- 90m2
-110 m2
-150m2
Standard:
- powierzchnia wykończona
- wysokość pomieszczeń: 3m
- sztukateria
-stylowe żyrandole
- klimatyzacja
- instalacja elektryczna
- Internet światłowodowy
- ogrzewanie miejskie Fortum
Dostęp do powierzchni 24 h na dobę, 7 dni w tygodniu
Anna Skwarciak ASK OFFICE
+48 609 842 932
a.skwarciak@askhome
Więcej ofert na stronie: www.askhome.pl
Wszelkie podane przez Pośrednika informacje nie są ofertą w rozumieniu Kodeksu Cywilnego
Biurowiec Klasy B+
Proponowana powierzchnia 60-400 m2
Współczynnik części wspólnych -0 %
Dostępność: 1.10.2024r.
Czynsz najmu powierzchni biurowej – 50-55,00 PLN/ 1m2/m-c
Opłata service charge – 20,00 PLN/ 1m2 /m-c
Opłata za energię elektryczną według zużycia
Prezentowana powierzchnia to lokal o powierzchni 46 m2 + współczynnik części wspólnych 7m2.
Hol, kącik socjalny, toaleta do współdzielenia z lokalem sąsiednim
W obiekcie dostępne lokale:
-55m2
-60 m2
- 90m2
-110 m2
-150m2
Standard:
- powierzchnia wykończona
- wysokość pomieszczeń: 3m
- sztukateria
-stylowe żyrandole
- klimatyzacja
- instalacja elektryczna
- Internet światłowodowy
- ogrzewanie miejskie Fortum
Dostęp do powierzchni 24 h na dobę, 7 dni w tygodniu
Anna Skwarciak ASK OFFICE
+48 609 842 932
a.skwarciak@askhome
Więcej ofert na stronie: www.askhome.pl
Wszelkie podane przez Pośrednika informacje nie są ofertą w rozumieniu Kodeksu Cywilnego
Nota prawna
Opis oferty zawarty na stronie internetowej sporządzany jest na podstawie oględzin nieruchomości oraz informacji uzyskanych od właściciela, może podlegać aktualizacji i nie stanowi oferty określonej w art. 66 i następnych K.C.
Formularz kontaktowy