Lokal na wynajem
31 850 zł
455 m2



















1 / 19
Szczegóły ogłoszenia
- Symbol oferty ASO-LW-40720
- Typ oferty lokal na wynajem
- Czynsz wynajmu 31 850 zł / miesiąc
- Charakterystyka mieszkania 455 m2
- Budynek biurowiec
- Rozkład mieszkania 3p piętro
- Media Ogrzewanie: miejskie
- Instalacje wymienione
- Kaucja do uzgodnienia
- Okna nowe drewniane
- Stan lokalu luksusowy
- Winda Tak
Lokalizacja
- Adres dolnośląskie, Wrocław, Stare Miasto
Opis nieruchomości
Prowizje pokrywa Właściciel nieruchomości
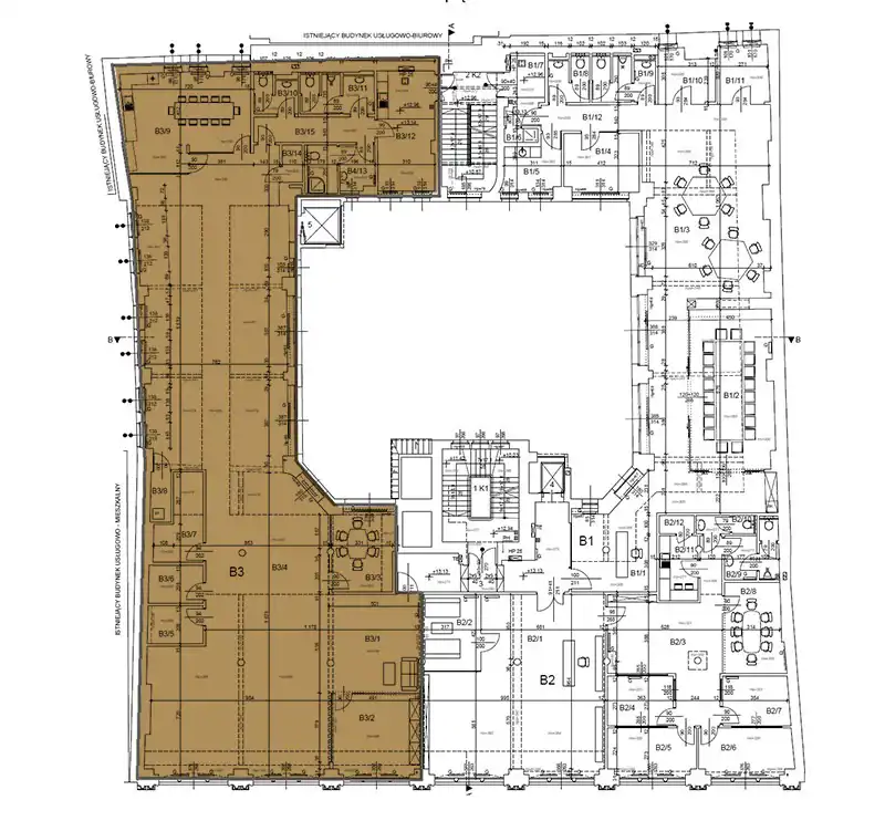
Przedmiotem oferty jest lokal usytuowany na III piętrze luksusowej kamienicy biurowej posadowionej w bliskim sąsiedztwie wrocławskiego Rynku. Lokal o powierzchni 455 m2. Wymieniona powierzchnia składa się z powierzchni typu open space, trzech salek konferencyjnych, dwóch gabinetów, kuchni, toalety i łazienki Lokal posiada okablowanie strukturalne, instalacje wentylacyjno-klimatyzacyjną. Stylowy obiekt wyposażony w windę. Na parterze recepcja. Oferta skierowana do wymagających klientów. Współczynnik części wspólnych 11%. Opłata eksploatacyjna 7,00 zł/ m2 + opłaty za media. Zapraszam na prezentacje. ASK OFFICE, Anna Skwarciak, nr tel. 609 842 932,
Wszelkie podane przez Pośrednika informacje nie są ofertą w rozumieniu Kodeksu Cywilnego
Przedmiotem oferty jest lokal usytuowany na III piętrze luksusowej kamienicy biurowej posadowionej w bliskim sąsiedztwie wrocławskiego Rynku. Lokal o powierzchni 455 m2. Wymieniona powierzchnia składa się z powierzchni typu open space, trzech salek konferencyjnych, dwóch gabinetów, kuchni, toalety i łazienki Lokal posiada okablowanie strukturalne, instalacje wentylacyjno-klimatyzacyjną. Stylowy obiekt wyposażony w windę. Na parterze recepcja. Oferta skierowana do wymagających klientów. Współczynnik części wspólnych 11%. Opłata eksploatacyjna 7,00 zł/ m2 + opłaty za media. Zapraszam na prezentacje. ASK OFFICE, Anna Skwarciak, nr tel. 609 842 932,
Wszelkie podane przez Pośrednika informacje nie są ofertą w rozumieniu Kodeksu Cywilnego
Nota prawna
Opis oferty zawarty na stronie internetowej sporządzany jest na podstawie oględzin nieruchomości oraz informacji uzyskanych od właściciela, może podlegać aktualizacji i nie stanowi oferty określonej w art. 66 i następnych K.C.
Formularz kontaktowy