Lokal na wynajem
3 621 zł
71 m2




1 / 4
Szczegóły ogłoszenia
- Symbol oferty ASO-LW-34430
- Typ oferty lokal na wynajem
- Czynsz wynajmu 3 621 zł / miesiąc
- Charakterystyka mieszkania 71 m2
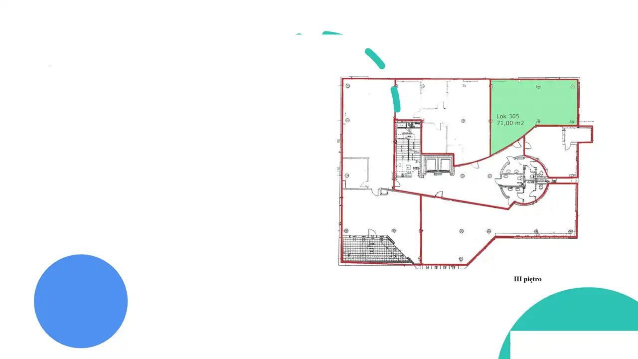
- Rozkład mieszkania 5p piętro
- Kaucja trzymiesięczna
- Okna PCV
- Stan lokalu do wprowadzenia
- Winda Tak
Lokalizacja
- Adres dolnośląskie, Wrocław, Stare Miasto
Opis nieruchomości
Prowizje dla biura pokrywa Właściciel nieruchomości.
Kompleks biurowy usytuowany w Centrum Wrocławia
Biurowiec Klasy A
Całkowita powierzchnia budynku: 6 510m2
Parking podziemny
Parking naziemny
Proponowana powierzchnia 35-1000 m2
Współczynnik części wspólnych -10%
Dostępność: 1.05.2021r.
Czynsz najmu powierzchni biurowej – 51 PLN/ 1m2/m-c
Opłata service charge – 17,50 PLN/ 1m² /m-c
Opłata za energię elektryczną
1 miejsce postojowe 200 - 550 PLN / m-c
Sugerowana powierzchnia lokal na III p. 71 m2.
Powierzchnia typu open space.
Możliwość aranżacji ścianek działowych.
Łazienka, część socjalna w częściach wspólnych.
Standard:
Anna Skwarciak ASK OFFICE
+48 609 842 932
a.skwarciak@askhome.pl
Kompleks biurowy usytuowany w Centrum Wrocławia
Biurowiec Klasy A
Całkowita powierzchnia budynku: 6 510m2
Parking podziemny
Parking naziemny
Proponowana powierzchnia 35-1000 m2
Współczynnik części wspólnych -10%
Dostępność: 1.05.2021r.
Czynsz najmu powierzchni biurowej – 51 PLN/ 1m2/m-c
Opłata service charge – 17,50 PLN/ 1m² /m-c
Opłata za energię elektryczną
1 miejsce postojowe 200 - 550 PLN / m-c
Sugerowana powierzchnia lokal na III p. 71 m2.
Powierzchnia typu open space.
Możliwość aranżacji ścianek działowych.
Łazienka, część socjalna w częściach wspólnych.
Standard:
- zasilanie elektryczne dwustronne, stacja transformatorowa w budynku
- zasilanie CO, energia cieplna, węzeł cieplny w budynku
- klimakonwektorowy system schładzania i ogrzewania budynku
- stolarka okienna: aluminium / okna uchylne
- windy szt. 2
- balkony szt. 3
- taras widokowy
- całodobowa recepcja/ochrona
- audytoryjna sala konferencyjna na 100 miejsc
- stolarka drzwiowa: aluminium, drewno, szkło
- ściany: korytarze murowane, działowe GK
- sufity podwieszane systemowe
- wykładziny dywanowe
- okablowanie teletechniczne
- system p.poż.
- system CCTV
- ochrona/monitoring
Anna Skwarciak ASK OFFICE
+48 609 842 932
a.skwarciak@askhome.pl
Nota prawna
Opis oferty zawarty na stronie internetowej sporządzany jest na podstawie oględzin nieruchomości oraz informacji uzyskanych od właściciela, może podlegać aktualizacji i nie stanowi oferty określonej w art. 66 i następnych K.C.
Formularz kontaktowy